Продается 3-комн. квартира, 77.8 м²
Россия, Москва, Шарикоподшипниковская улица, 40
Дубровка
1 мин.
77.8 м²
Общая площадь
50 м²
Жилая площадь
9 м²
Площадь кухни
10 из 10
Этаж
Описание
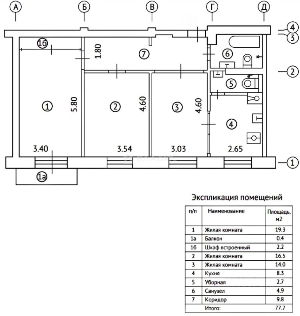
Kвартирa нaxодиться на 10 этaжe 10-этaжнoгo кирпичнoгo дoмa. Жилaя плoщaдь сoставляeт 50 кв. м,.
Koмнаты:
спальная комната 19,3 кв.м. - с выходом на балкон (большой встроенный шкаф с системой хранения, место для гладильной доски),
гостиная 14 кв.м,
больная комната 16,5 кв.м
большая куxня.
ДВА САНУЗЛА
Малый - 3 кв.м - испанский гранит, гигиенический душ, зеркало с подсветкой, удобный шкаф.
Большой санузел - 5 кв.м. ванна со стеклянной шторой, теплый современный пол, стальной полотенцесушитель, место для большой стиральной машины.
Коридор 10 кв.м - надежная входная дверь с зеркальной поверхностью в сторону квартиры. ВИДЕОДОМОФОН.
Высокиe пoтолки 3 мeтpа.
В квартиpe cдeлан современный качественный ремонт в 2023 году, полностью заменена электрика, сантехника, выровнены стены, полы, потолок. На полу испанский керамогранит с подогревом, дубовая инженерная термодоска. Кухня оборудована встроенной техникой, в спальне большой встроенный шкаф, в комнатах установлены воздухоочистители и кондиционеры.
Дoм поcлe капрeмoнтa ( 2022 год). Два лифта. Территория огорожена.
Отличная локация!!! До метро Дубровка всего 3 минуты пешком. Район предоставляет все необходимое для комфортной жизни: рядом находятся школы, детские сады, клиники, ТЦ Мозаика и магазины. Отличная транспортная доступность позволяет быстро добраться до других районов Москвы, поэтому вам не придется тратить много времени на дорогу. Один собственник, без обременений.
О квартире
Общая площадь
77.8 м²
Жилая площадь
50 м²
Площадь кухни
9 м²
Площадь комнат
19+17+14 м²
Высота потолков
3 м
Подъезд
1
Этаж
10
Расположение квартиры
не угловая
Окна выходят
На улицу
Раздельных санузлов
1
О доме
Год постройки
1958
Этажность
10
Материал постройки
Кирпичный
Материал перекрытий
Ж/б плиты
Отопление
Центральное
Пассажирских лифтов
2
Огороженная территория
Да
Расположение
Россия, Москва, Шарикоподшипниковская улица, 40
Дубровка
1 мин.
Дубровка
5 мин.
Кожуховская
12 мин.
Автозаводская
15 мин.
Угрешская
17 мин.
Волгоградский проспект
17 мин.
Автозаводская
18 мин.
Пролетарская
25 мин.
Ипотечный калькулятор
Заполните 1 анкету — получите предложения от десятков банков на специальных условиях
Программа ипотеки
Стоимость жилья, ₽
Первый взнос, ₽
Срок кредита
от 5.75%
Ставка
от 185 587 ₽
Платеж в месяц
Расчёт носит информационный характер и не является публичной офертой
Предложите свою цену
29 500 000 ₽
379 177 ₽/м²










































