Продается 2-комн. квартира, 53.6 м²
Россия, Москва, улица Шолохова, 10
Новопеределкино
1 мин.
53.6 м²
Общая площадь
32.3 м²
Жилая площадь
9.2 м²
Площадь кухни
5 из 17
Этаж
Описание
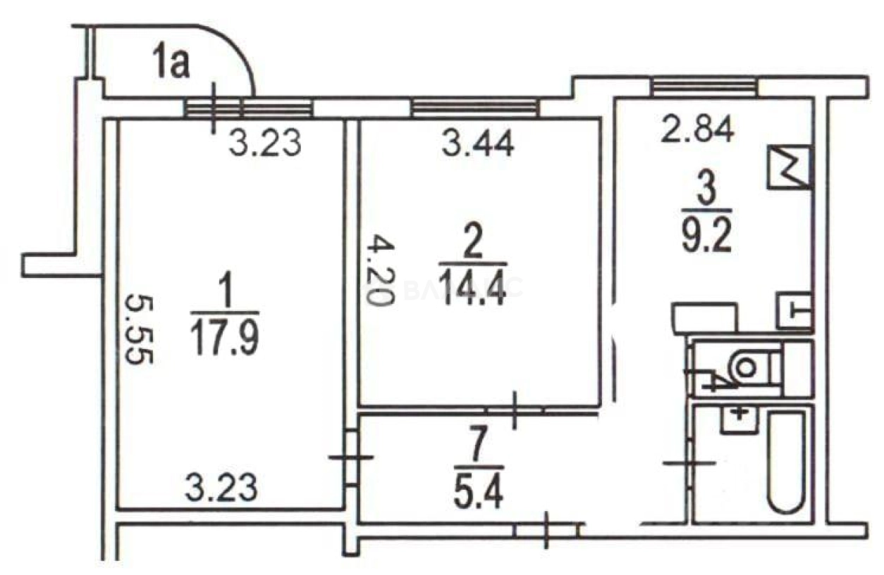
Продаётся двухкомнатная квартира площадью 53,6 кв. м на улице Шолохова, 10. Дом построен в 1988 году, квартира находится на 5 этаже 17-этажного панельного дома. Жилая площадь составляет 32,3 кв. м, кухня — 9,2 кв. м. Комнаты изолированы, окна выходят на улицу.
Особое внимание заслуживает дизайнерский ремонт, который позволит вам сразу заселиться и наслаждаться комфортом. Квартира не угловая.
Расположение квартиры также является её преимуществом. Вы сможете быстро добраться до любой точки города благодаря развитой транспортной инфраструктуре.
Станция метро Ново-переделкино рядом с домом. До аэропорта Внуково - 9 км. МКАД 6 км. 2 ж/д станции - Ново-переделкино и Переделкино (20 минут до ст.м. Киевская). Прямой выезд на Боровское шоссе. Прямой выезд на Боровское шоссе.
Документы: Один взрослый собственник, более 18 лет в собственности. Без каких либо обременений. Маткапитал не использовался. Ипотеку не брали. История прозрачная. Прямая продажа, без подбора альтернативы.
Полная стоимость в договоре.
Мы гарантируем безопасную сделку и юридическую поддержку нашим Клиентам. Поможем одобрить ипотеку с сниженной ставкой. Не упустите шанс стать обладателем этой прекрасной квартиры! Звоните нам прямо сейчас, чтобы узнать больше и записаться на просмотр.
О квартире
Общая площадь
53.6 м²
Жилая площадь
32.3 м²
Площадь кухни
9.2 м²
Этаж
5
Расположение квартиры
не угловая
Окна выходят
На улицу
Раздельных санузлов
1
Ремонт
Дизайнерский
Комнаты изолированныe
Да
О доме
Год постройки
1988
Этажность
17
Материал постройки
Панельный
Материал перекрытий
Ж/б плиты
Отопление
Центральное
Расположение
Россия, Москва, улица Шолохова, 10
Новопеределкино
1 мин.
Боровское шоссе
17 мин.
Рассказовка
19 мин.
Солнцево
4 мин.
Ипотечный калькулятор
Заполните 1 анкету — получите предложения от десятков банков на специальных условиях
Программа ипотеки
Стоимость жилья, ₽
Первый взнос, ₽
Срок кредита
от 5.75%
Ставка
от 96 883 ₽
Платеж в месяц
Расчёт носит информационный характер и не является публичной офертой
Предложите свою цену
15 400 000 ₽
287 313 ₽/м²



















































