Продается 3-комн. квартира, 64.8 м²
Россия, Москва, Южный административный округ, район Москворечье-Сабурово, жилой комплекс Лайф Варшавская
Каширская
15 мин.
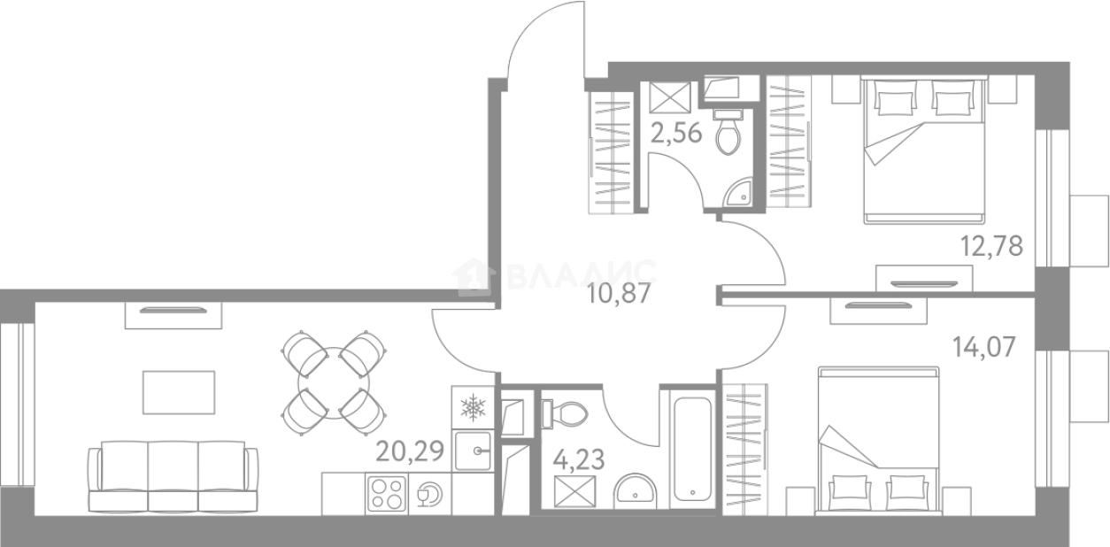
64.8 м²
Общая площадь
26.85 м²
Жилая площадь
20.29 м²
Площадь кухни
9 из 15
Этаж
Описание
В жилом комплексе «LIFE-Варшавская» предложено множество планировочных решений: в наличии квартиры, как классического типа, так и европланировки.
В «LIFE-Варшавская» детально продумана внутренняя инфраструктура: в квартале предусмотрено 3 детских сада, 1 школа, 3 многоуровневых наземных паркинга, все первые этажи отданы под коммерческие помещения. В проекте «LIFE-Варшавская» прекрасное благоустройство, собственный бульвар и сквер, а также крупнейшие парки и лесные массивы в окружении.
ЖК «LIFE-Варшавская» возводится на юге Москвы в 5 пешком от станции метро «Варшавская». Недалеко от комплекса проходят два скоростных шоссе – Варшавское и Каширское. В пешей доступности располагается железнодорожная станция «Коломенское» Павелецкого направления, откуда можно удобно добраться до центра столицы или за город.
О квартире
Общая площадь
64.8 м²
Жилая площадь
26.85 м²
Площадь кухни
20.29 м²
Площадь комнат
12.78+14.07 м²
Подъезд
5
Этаж
9
Окна выходят
На улицу
О доме
Год постройки
2024
Этажность
15
Количество подъездов
5
Материал постройки
Монолитный
Материал перекрытий
Ж/б плиты
Отопление
Центральное
Пассажирских лифтов
1
Грузовых лифтов
1
Парковка
Подземная
Расположение
Россия, Москва, Южный административный округ, район Москворечье-Сабурово, жилой комплекс Лайф Варшавская
Каширская
15 мин.
Чертановская
24 мин.
Нахимовский проспект
25 мин.
Каховская
26 мин.
Севастопольская
26 мин.
Кантемировская
28 мин.
Ипотечный калькулятор
Заполните 1 анкету — получите предложения от десятков банков на специальных условиях
Программа ипотеки
Стоимость жилья, ₽
Первый взнос, ₽
Срок кредита
от 5.75%
Ставка
от 150 201 ₽
Платеж в месяц
Расчёт носит информационный характер и не является публичной офертой
Похожие объекты
Консультант по новостройкам
23 875 274 ₽
368 446 ₽/м²



































