Продается 3-комн. квартира, 110.6 м²
Россия, Москва, Северо-Восточный административный округ, Останкинский район, жилой комплекс АйЛав
Алексеевская
10 мин.
110.6 м²
Общая площадь
48.35 м²
Жилая площадь
18.39 м²
Площадь кухни
3 из 32
Этаж
Описание
В ЖК «ILOVE» предложено множество планировочных решений: в наличии квартиры, как классического типа, так и европланировки. В них предусмотрено панорамное остекление, высота потолков — 3,1 метра и виды на Останкинскую башню и ВДНХ. Квартиры оснащены системой «Умный дом». Она позволяет дистанционно регулировать освещение, климат, контролировать работу бытовой техники, инженерных сетей и оплачивать коммунальные услуги.
В состав внутренней инфраструктуры комплекса «ILOVE» входит детский сад на 250 мест и школа на 560 мест. Территория комплекса закрыта от машин и случайных прохожих. Дворы благоустроены игровыми и спортивными площадками, клумбами, газонами и прогулочными дорожками. Для владельцев автомобилей предусмотрен паркинг с лифтом.
ЖК «ILOVE» расположен на улице Бочкова в СВАО Москвы. В шаговой доступности от комплекса находится Звездный бульвар, знаменитая усадьба «Останкино», магазины, кафе, рынок фермерских продуктов, оборудованные места для пикника. Метро «Алексеевская» находится в 10 минутах пешком.
О квартире
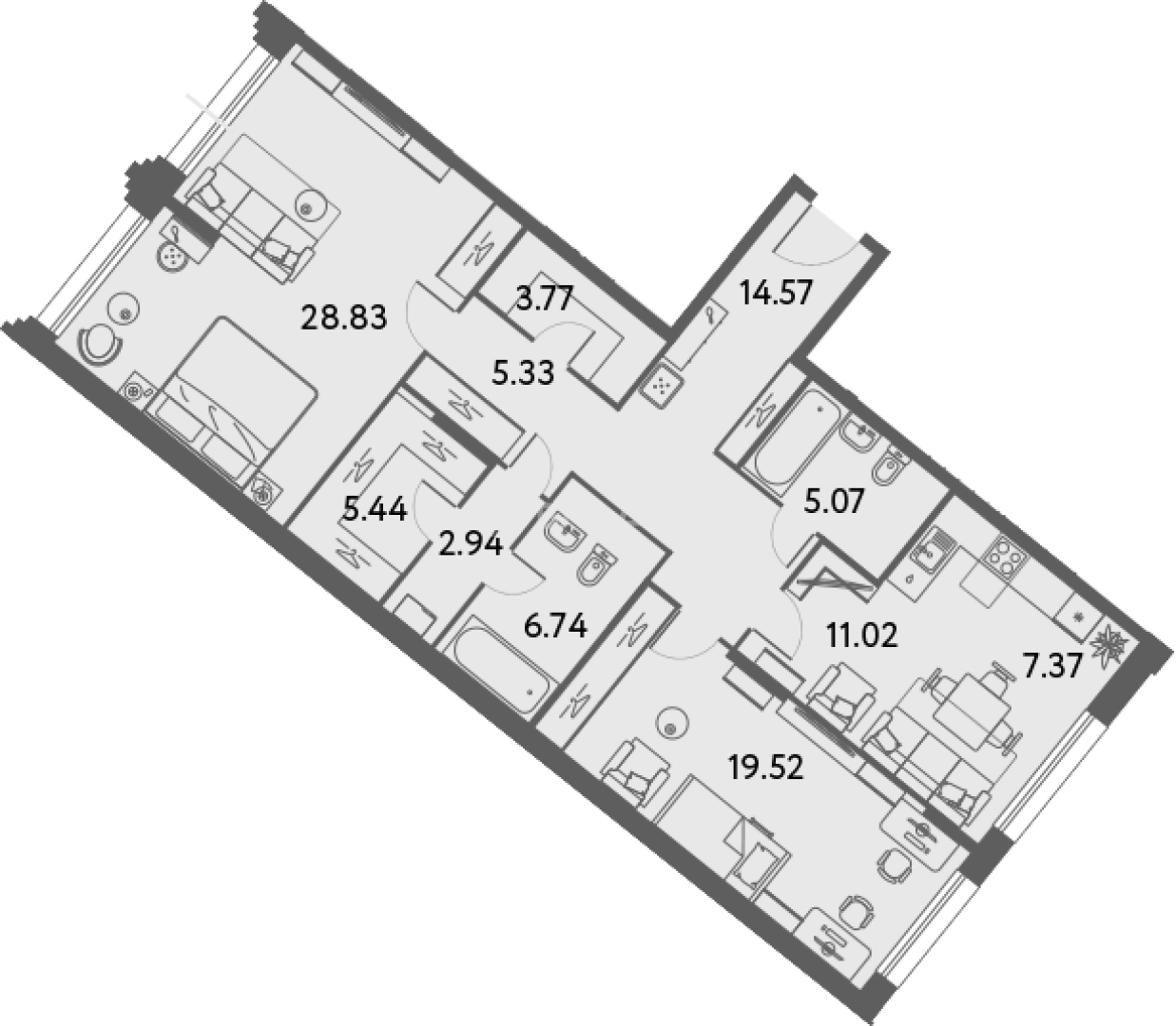
Общая площадь
110.6 м²
Жилая площадь
48.35 м²
Площадь кухни
18.39 м²
Площадь комнат
28.83+19.52 м²
Высота потолков
3.1 м
Подъезд
6
Этаж
3
Окна выходят
На улицу
О доме
Год постройки
2023
Этажность
32
Количество подъездов
9
Материал постройки
Кирпично-монолитный
Материал перекрытий
Ж/б плиты
Отопление
Центральное
Пассажирских лифтов
1
Грузовых лифтов
1
Парковка
Подземная
Расположение
Россия, Москва, Северо-Восточный административный округ, Останкинский район, жилой комплекс АйЛав
Алексеевская
10 мин.
ВДНХ
18 мин.
Бутырская
18 мин.
Марьина Роща
23 мин.
Рижская
25 мин.
Рижская
25 мин.
Дмитровская
4 мин.
Ипотечный калькулятор
Заполните 1 анкету — получите предложения от десятков банков на специальных условиях
Программа ипотеки
Стоимость жилья, ₽
Первый взнос, ₽
Срок кредита
от 5.75%
Ставка
от 241 736 ₽
Платеж в месяц
Расчёт носит информационный характер и не является публичной офертой
Похожие объекты








4-комн. квартира, 97,7 м², 6/24 эт.
Алексеевская
10 мин.










3-комн. квартира, 107 м², 2/32 эт.
Алексеевская
10 мин.








3-комн. квартира, 96,6 м², 11/35 эт.
Алексеевская
10 мин.










3-комн. квартира, 111,6 м², 9/32 эт.
Алексеевская
10 мин.
Консультант по новостройкам
38 425 200 ₽
347 425 ₽/м²











