Продается 2-комн. квартира, 48.77 м²
Россия, Москва, Автомобильный проезд
Волгоградский проспект
10 мин.
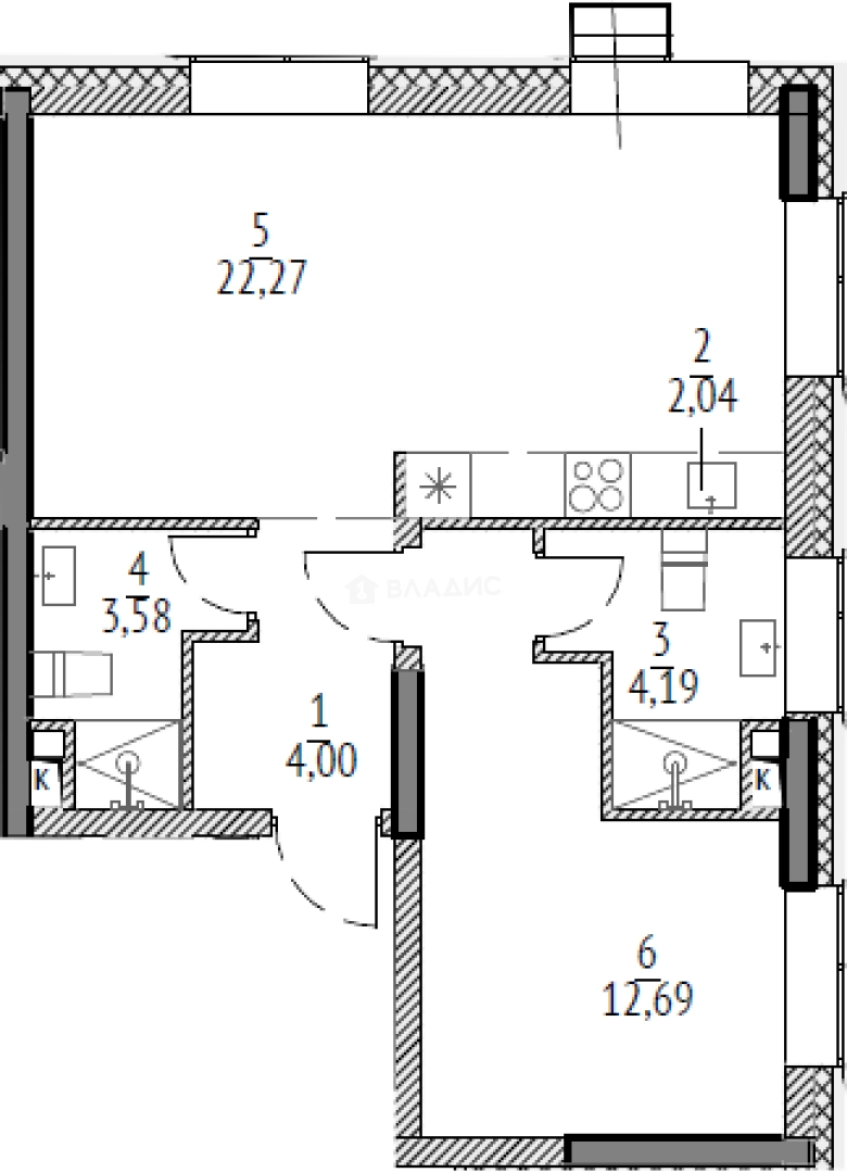
48.77 м²
Общая площадь
12.69 м²
Жилая площадь
24.31 м²
Площадь кухни
10 из 16
Этаж
Описание
В проекте «N’ICE LOFT» предложено множество планировочных решений: в наличии квартиры как классического типа, так и европланировки. Апартаменты площадью от 17 до 105 кв.м. спроектированы с высокими потолками до 3.3 метров и панорамными трехметровыми окнами, сдаются они с подчистовой отделкой или без отделки. В комплексе есть варианты с террасами или патио, большими кухнями, постирочными, гардеробными комнатами.
На благоустроенной территории проекта «N’ICE LOFT» располагаются современные здания для проживания, общедоступный спортивный-центр и развитый физкультурно-оздоровительный комплекс общей площадью более 14 000 кв. м, включающий две ледовые арены. Ухоженное внутреннее пространство разделено на зоны активности и релаксации. Компактные площадки для йоги и небольшие игровые зоны соседствуют с тихими зонами, созданными для работы на воздухе или отдыха. Газоны украшены декоративными кустарниками и малыми архитектурными формами, между которыми проложены мощеные дорожки. Для владельцев автомобилей предусмотрен подземный паркинг.
Проект «N’ICE LOFT» находится в Нижегородском районе. Внешняя инфраструктура развита, в пешей доступности: магазины, детские сады, школы, медицинские учреждения, кафе. До метро «Волгоградский проспект» и «Калитники» — 10 минут пешком.
О квартире
Общая площадь
48.77 м²
Жилая площадь
12.69 м²
Площадь кухни
24.31 м²
Площадь комнат
12.69 м²
Высота потолков
3 м
Подъезд
1
Этаж
10
Окна выходят
На улицу
О доме
Год постройки
2024
Этажность
16
Количество подъездов
1
Материал постройки
Монолитный
Материал перекрытий
Ж/б плиты
Отопление
Центральное
Пассажирских лифтов
1
Грузовых лифтов
1
Парковка
Наземная
Расположение
Россия, Москва, Автомобильный проезд
Волгоградский проспект
10 мин.
Угрешская
16 мин.
Новохохловская
18 мин.
Пролетарская
22 мин.
Дубровка
22 мин.
Ипотечный калькулятор
Заполните 1 анкету — получите предложения от десятков банков на специальных условиях
Программа ипотеки
Стоимость жилья, ₽
Первый взнос, ₽
Срок кредита
от 5.75%
Ставка
от 94 479 ₽
Платеж в месяц
Расчёт носит информационный характер и не является публичной офертой
Похожие объекты








2-комн. квартира, 52,1 м², 15/16 эт.
Волгоградский проспект
10 мин.








2-комн. квартира, 48,8 м², 14/16 эт.
Волгоградский проспект
10 мин.








2-комн. квартира, 46,9 м², 2/16 эт.
Волгоградский проспект
10 мин.
Консультант по новостройкам
15 017 882 ₽
307 933 ₽/м²

























