Продается 4-комн. квартира, 106 м²
Россия, Москва, Студенческая улица, 19к1
Деловой центр
12 мин.
106 м²
Общая площадь
65 м²
Жилая площадь
25 м²
Площадь кухни
4 из 5
Этаж
Описание
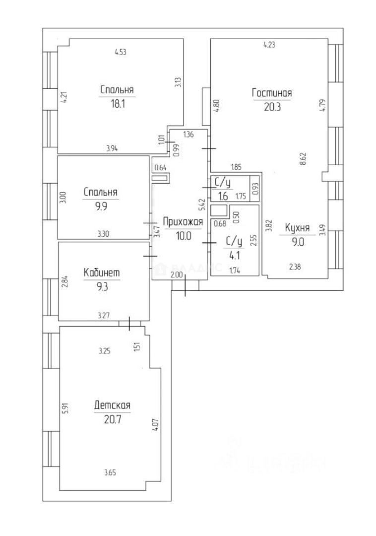
Квартира расположена на четвёртом этаже пятиэтажного дома 1929 года постройки. Высокие потолки (3 метра) создают дополнительное ощущение простора, а большие окна обеспечивают отличное естественное освещение. Дизайнерский ремонт выполнен с учётом последних тенденций, что позволит вам сразу заселиться и наслаждаться уютом без дополнительных вложений.
Общая площадь квартиры составляет 106 кв. м, из которых 65 кв. м — жилая площадь. Кухня площадью 25 кв. м станет настоящим местом для кулинарных экспериментов. Изолированные комнаты обеспечат комфорт и уединение для каждого члена семьи.
Не упустите возможность стать владельцем этой прекрасной квартиры! Позвоните нам прямо сейчас, чтобы узнать больше и записаться на просмотр.
Мы гарантируем безопасную сделку и юридическую поддержку нашим Клиентам. Поможем одобрить ипотеку с сниженной ставкой.
О квартире
Общая площадь
106 м²
Жилая площадь
65 м²
Площадь кухни
25 м²
Высота потолков
3 м
Этаж
4
Расположение квартиры
не угловая
Окна выходят
На улицу
Раздельных санузлов
1
Ремонт
Дизайнерский
Комнаты изолированныe
Да
О доме
Год постройки
1929
Этажность
5
Материал постройки
Кирпичный
Материал перекрытий
Деревянные
Отопление
Центральное
Расположение
Россия, Москва, Студенческая улица, 19к1
Деловой центр
12 мин.
Деловой центр
12 мин.
Кутузовская
12 мин.
Ипотечный калькулятор
Заполните 1 анкету — получите предложения от десятков банков на специальных условиях
Программа ипотеки
Стоимость жилья, ₽
Первый взнос, ₽
Срок кредита
от 5.75%
Ставка
от 267 371 ₽
Платеж в месяц
Расчёт носит информационный характер и не является публичной офертой
Похожие объекты
Предложите свою цену
42 500 000 ₽
400 943 ₽/м²







































































































































