Продается 2-комн. квартира, 37.3 м²
Россия, Москва, Новомосковский административный округ, район Коммунарка, жилой комплекс Дзен-кварталы, 1.3
Новомосковская (Коммунарка)
10 мин.
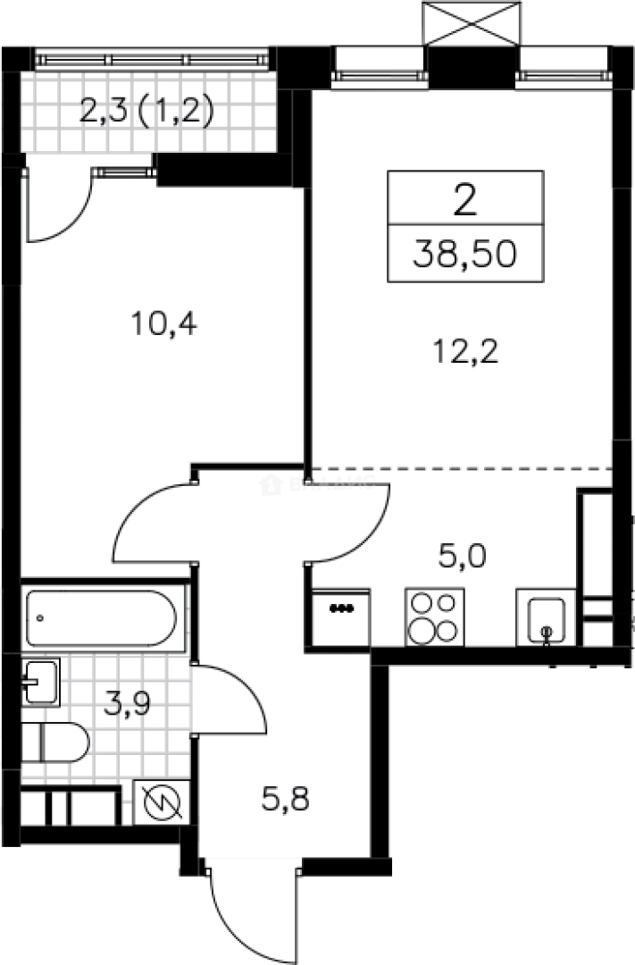
37.3 м²
Общая площадь
10.4 м²
Жилая площадь
17.2 м²
Площадь кухни
17 из 18
Этаж
Описание
В жилом комплексе «Дзен-кварталы» предложено множество планировочных решений: в наличии квартиры, как классического типа, так и европланировки. Сдаются они с без отделки и с подчистовой отделкой, высотой потолков 2,95 метра и увеличенными окнами. Есть возможность дозаказать чистовую отделку.
В проекте «Дзен-кварталы» предусмотрены коммерческие помещения. Во дворе выполнено благоустройство от бюро GAFA: спроектированы детские и спортивные площадки, обустроены места для отдыха. В районе предусмотрены собственная набережная, прогулочная территория в лесу, закрытые и охраняемые дворы, площади, зеленые скверы и пешеходные улицы. Проектом предусмотрено 2 детских сада и школа. Для владельцев автомобилей спроектированы стоянка и подземный паркинг.
Проект «Дзен-кварталы» возводится на юго-западе столицы — вдоль береговой линии живописного Ивановского пруда и реки Варварки. До метро Коммунарка 5 минут пешком.
О квартире
Общая площадь
37.3 м²
Жилая площадь
10.4 м²
Площадь кухни
17.2 м²
Площадь комнат
10.4 м²
Высота потолков
2.95 м
Подъезд
1
Этаж
17
Окна выходят
На улицу
О доме
Год постройки
2024
Этажность
18
Количество подъездов
1
Материал постройки
Кирпично-монолитный
Материал перекрытий
Монолитные
Отопление
Центральное
Грузовых лифтов
1
Парковка
Подземная
Расположение
Россия, Москва, Новомосковский административный округ, район Коммунарка, жилой комплекс Дзен-кварталы, 1.3
Новомосковская (Коммунарка)
10 мин.
Потапово
11 мин.
Ольховая
25 мин.
Бунинская аллея
4 мин.
Улица Горчакова
5 мин.
Ипотечный калькулятор
Заполните 1 анкету — получите предложения от десятков банков на специальных условиях
Программа ипотеки
Стоимость жилья, ₽
Первый взнос, ₽
Срок кредита
от 5.75%
Ставка
от 70 333 ₽
Платеж в месяц
Расчёт носит информационный характер и не является публичной офертой
Похожие объекты












2-комн. квартира, 36,3 м², 3/24 эт.
Новомосковская (Коммунарка)
9 мин.












1-комн. квартира, 35,5 м², 2/18 эт.
Потапово
13 мин.











1-комн. квартира, 36,2 м², 9/10 эт.
Коммунарка
12 мин.












1-комн. квартира, 35,7 м², 7/14 эт.
Новомосковская (Коммунарка)
11 мин.
Консультант по новостройкам
11 179 823 ₽
299 728 ₽/м²
































