Продается 1-комн. квартира, 36.2 м²
Россия, Москва, Новомосковский административный округ, район Коммунарка, ЖК Дзен-кварталы, 2.4
Коммунарка
12 мин.
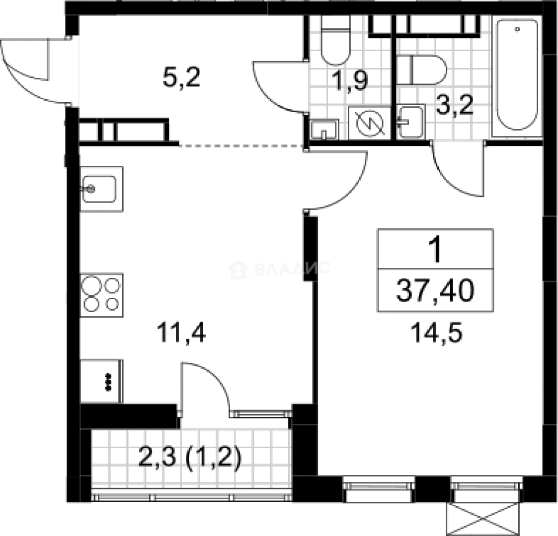
36.2 м²
Общая площадь
14.5 м²
Жилая площадь
11.4 м²
Площадь кухни
9 из 10
Этаж
Описание
В жилом комплексе «Дзен-кварталы» предложено множество планировочных решений: в наличии квартиры, как классического типа, так и европланировки. Сдаются они с без отделки и с подчистовой отделкой, высотой потолков 2,95 метра и увеличенными окнами. Есть возможность дозаказать чистовую отделку.
В проекте «Дзен-кварталы» предусмотрены коммерческие помещения. Во дворе выполнено благоустройство от бюро GAFA: спроектированы детские и спортивные площадки, обустроены места для отдыха. В районе предусмотрены собственная набережная, прогулочная территория в лесу, закрытые и охраняемые дворы, площади, зеленые скверы и пешеходные улицы. Проектом предусмотрено 2 детских сада и школа. Для владельцев автомобилей спроектированы стоянка и подземный паркинг.
Проект «Дзен-кварталы» возводится на юго-западе столицы — вдоль береговой линии живописного Ивановского пруда и реки Варварки. До метро Коммунарка 5 минут пешком.
О квартире
Общая площадь
36.2 м²
Жилая площадь
14.5 м²
Площадь кухни
11.4 м²
Площадь комнат
14.5 м²
Высота потолков
2.95 м
Подъезд
4
Этаж
9
Окна выходят
На улицу
О доме
Год постройки
2025
Этажность
10
Количество подъездов
5
Материал постройки
Кирпично-монолитный
Материал перекрытий
Монолитные
Отопление
Центральное
Пассажирских лифтов
1
Грузовых лифтов
1
Парковка
Подземная
Расположение
Россия, Москва, Новомосковский административный округ, район Коммунарка, ЖК Дзен-кварталы, 2.4
Коммунарка
12 мин.
Ольховая
27 мин.
Бунинская аллея
4 мин.
Улица Горчакова
5 мин.
Ипотечный калькулятор
Заполните 1 анкету — получите предложения от десятков банков на специальных условиях
Программа ипотеки
Стоимость жилья, ₽
Первый взнос, ₽
Срок кредита
от 5.75%
Ставка
от 71 498 ₽
Платеж в месяц
Расчёт носит информационный характер и не является публичной офертой
Похожие объекты















1-комн. квартира, 33,9 м², 10/23 эт.
Коммунарка
27 мин.















1-комн. квартира, 40,9 м², 3/16 эт.
Коммунарка
28 мин.














1-комн. квартира, 34,4 м², 10/23 эт.
Новомосковская
27 мин.















1-комн. квартира, 34,7 м², 17/23 эт.
Коммунарка
27 мин.
Консультант по новостройкам
11 364 888 ₽
313 948 ₽/м²


























