Продается 1-комн. квартира, 32.1 м²
Россия, Москва, Новомосковский административный округ, район Коммунарка, ЖК Дзен-кварталы, 2.4
Коммунарка
12 мин.
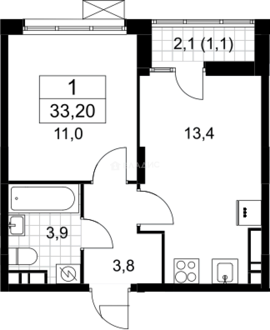
32.1 м²
Общая площадь
11 м²
Жилая площадь
13.4 м²
Площадь кухни
9 из 10
Этаж
Описание
В жилом комплексе «Дзен-кварталы» предложено множество планировочных решений: в наличии квартиры, как классического типа, так и европланировки. Сдаются они с без отделки и с подчистовой отделкой, высотой потолков 2,95 метра и увеличенными окнами. Есть возможность дозаказать чистовую отделку.
В проекте «Дзен-кварталы» предусмотрены коммерческие помещения. Во дворе выполнено благоустройство от бюро GAFA: спроектированы детские и спортивные площадки, обустроены места для отдыха. В районе предусмотрены собственная набережная, прогулочная территория в лесу, закрытые и охраняемые дворы, площади, зеленые скверы и пешеходные улицы. Проектом предусмотрено 2 детских сада и школа. Для владельцев автомобилей спроектированы стоянка и подземный паркинг.
Проект «Дзен-кварталы» возводится на юго-западе столицы — вдоль береговой линии живописного Ивановского пруда и реки Варварки. До метро Коммунарка 5 минут пешком.
О квартире
Общая площадь
32.1 м²
Жилая площадь
11 м²
Площадь кухни
13.4 м²
Площадь комнат
11 м²
Высота потолков
2.95 м
Подъезд
5
Этаж
9
Окна выходят
На улицу
О доме
Год постройки
2025
Этажность
10
Количество подъездов
5
Материал постройки
Кирпично-монолитный
Материал перекрытий
Монолитные
Отопление
Центральное
Пассажирских лифтов
1
Грузовых лифтов
1
Парковка
Подземная
Расположение
Россия, Москва, Новомосковский административный округ, район Коммунарка, ЖК Дзен-кварталы, 2.4
Коммунарка
12 мин.
Ольховая
27 мин.
Бунинская аллея
4 мин.
Улица Горчакова
5 мин.
Ипотечный калькулятор
Заполните 1 анкету — получите предложения от десятков банков на специальных условиях
Программа ипотеки
Стоимость жилья, ₽
Первый взнос, ₽
Срок кредита
от 5.75%
Ставка
от 66 905 ₽
Платеж в месяц
Расчёт носит информационный характер и не является публичной офертой
Похожие объекты












2-комн. квартира, 36,9 м², 7/17 эт.
Потапово
14 мин.












2-комн. квартира, 36,7 м², 6/17 эт.
Потапово
14 мин.












2-комн. квартира, 36,8 м², 9/17 эт.
Потапово
14 мин.












2-комн. квартира, 36,7 м², 9/17 эт.
Потапово
14 мин.
Консультант по новостройкам
10 634 890 ₽
331 305 ₽/м²

























