Продается 3-комн. квартира, 93.7 м²
Россия, Москва, Западный административный округ, Можайский район, 107-110-й кварталы Кунцева, жилой комплекс Кутузов Град 2
Рабочий Посёлок
19 мин.
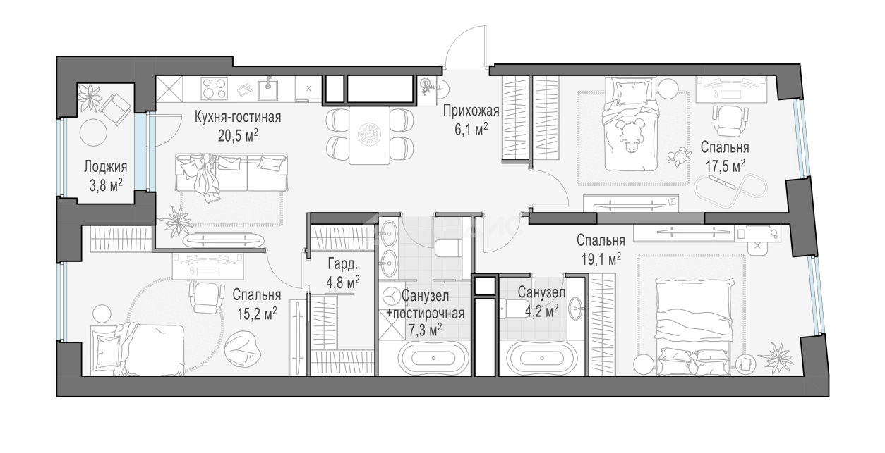
93.7 м²
Общая площадь
56.4 м²
Жилая площадь
13.6 м²
Площадь кухни
29 из 30
Этаж
Описание
Проектом запланированы квартиры различных площадей и планировок от небольших студий до просторных двухуровневых квартир. Кроме того, будут представлены квартиры с каминами, террасами и окнами в ванных комнатах. Лоджии с панорамным остеклением обеспечат повышенную освещенность. Квартиры передаются дольщикам с чистовой отделкой и без отделки.
Для автовладельцев предусмотрен подземный паркинг на 479 мест с возможностью установки системы Klaus. Также запроектированы кладовые помещения для хранения колясок и велосипедов. Проектом предусмотрено создание уютных закрытых дворов, свободных от автомобилей. Все придомовые территории благоустроены и озеленены по авторскому проекту бюро «iCube», предусмотрены пешеходные аллеи, игровые площадки и уличные гимнастические комплексы.
Жилой комплекс расположен на западе Москвы, в 20 минутах пешком от метро «Давыдково», рядом с Кутузовским проспектом и Поклонной горой. Развитая собственная инфраструктура с кафе и магазинами на первых этажах дополняется шаговой доступностью крупнейшего природного заказника «Долина реки Сетунь».
О квартире
Общая площадь
93.7 м²
Жилая площадь
56.4 м²
Площадь кухни
13.6 м²
Площадь комнат
22.55+17.34+17.69 м²
Высота потолков
3.21 м
Подъезд
4
Этаж
29
Окна выходят
На улицу
О доме
Год постройки
2022
Этажность
30
Количество подъездов
4
Материал постройки
Монолитный
Материал перекрытий
Монолитные
Отопление
Центральное
Пассажирских лифтов
1
Грузовых лифтов
1
Парковка
Подземная
Расположение
Россия, Москва, Западный административный округ, Можайский район, 107-110-й кварталы Кунцева, жилой комплекс Кутузов Град 2
Рабочий Посёлок
19 мин.
Кунцевская
23 мин.
Кунцевская
24 мин.
Сетунь
28 мин.
Славянский бульвар
4 мин.
Молодежная
4 мин.
Ипотечный калькулятор
Заполните 1 анкету — получите предложения от десятков банков на специальных условиях
Программа ипотеки
Стоимость жилья, ₽
Первый взнос, ₽
Срок кредита
от 5.75%
Ставка
от 276 619 ₽
Платеж в месяц
Расчёт носит информационный характер и не является публичной офертой
Похожие объекты







2-комн. квартира, 80,4 м², 8/13 эт.
Рабочий Посёлок
25 мин.







3-комн. квартира, 92,3 м², 1/13 эт.
Давыдково
18 мин.







3-комн. квартира, 80,8 м², 3/14 эт.
Давыдково
18 мин.







3-комн. квартира, 80,8 м², 5/14 эт.
Давыдково
18 мин.
Консультант по новостройкам
43 970 000 ₽
469 264 ₽/м²






















