Продается 4-комн. квартира, 125.97 м²
Россия, Москва, Южный административный округ, Даниловский район, жилой комплекс Форивер, 8
Автозаводская
12 мин.
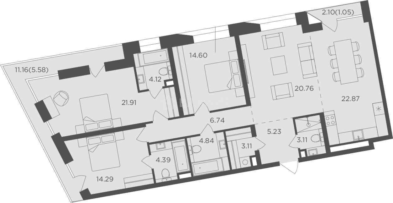
125.97 м²
Общая площадь
71.56 м²
Жилая площадь
22.87 м²
Площадь кухни
11 из 16
Этаж
Описание
В комплексе предложено множество планировочных решений: в наличии квартиры, как классического типа, так и европланировки. Среди них есть квартиры с патио, каминами, мастер-спальнями, окнами в ванной и угловым остеклением. На последних этажах размещены пентхаусы. Высота потолков на типовом этаже составляет 3 метра. Квартиры сдаются без отделки и с чистовой отделкой. Здания расположены вдоль береговой линии, поэтому большинство квартир имеют видовые характеристики.
В состав комплекса входит 3 детских сада. Для автовладельцев предусмотрен подземный паркинг на 1450 мест с келлерами, автомойкой и местами для электрокаров. Закрытый двор комплекса поднят на стилобат и благоустроен.Также проект благоустройства территории включает создание собственной набережной с прогулочными и велодорожками.
ЖК «FORIVER» находится на Симоновской набережной, в Даниловском районе Москвы. В 300 метрах расположен детский парк Липки. Метро «Автозаводская» находится в 10 минутах пешком, а ТТК — в 1,5 км.
О квартире
Общая площадь
125.97 м²
Жилая площадь
71.56 м²
Площадь кухни
22.87 м²
Площадь комнат
14.29+21.91+14.6+20.76 м²
Высота потолков
3 м
Подъезд
2
Этаж
11
Окна выходят
На улицу
О доме
Год постройки
2023
Этажность
16
Количество подъездов
2
Материал постройки
Монолитный
Материал перекрытий
Монолитные
Отопление
Центральное
Пассажирских лифтов
1
Грузовых лифтов
1
Парковка
Подземная
Расположение
Россия, Москва, Южный административный округ, Даниловский район, жилой комплекс Форивер, 8
Автозаводская
12 мин.
Автозаводская
15 мин.
Дубровка
20 мин.
Дубровка
21 мин.
Павелецкая
22 мин.
Тульская
23 мин.
ЗИЛ
23 мин.
Павелецкая
25 мин.
Ипотечный калькулятор
Заполните 1 анкету — получите предложения от десятков банков на специальных условиях
Программа ипотеки
Стоимость жилья, ₽
Первый взнос, ₽
Срок кредита
от 5.75%
Ставка
от 430 445 ₽
Платеж в месяц
Расчёт носит информационный характер и не является публичной офертой
Похожие объекты





















5-комн. квартира, 126,2 м², 36/42 эт.
Тульская
15 мин.















4-комн. квартира, 118,1 м², 16/17 эт.
ЗИЛ
14 мин.










3-комн. квартира, 119,4 м², 9/22 эт.
Серпуховская
13 мин.
Консультант по новостройкам
68 421 600 ₽
543 158 ₽/м²
























