Продается 4-комн. квартира, 78.7 м²
Россия, Москва, Волгоградский проспект, 32к6
Волгоградский проспект
7 мин.
78.7 м²
Общая площадь
38.2 м²
Жилая площадь
24.3 м²
Площадь кухни
18 из 30
Этаж
Описание
В проекте предложено множество планировочных решений: в наличии квартиры преимущественно евроформата. В них предусмотрены потолки высотой 3,15м, панорамные окна, из которых открываются живописные виды на окрестности, компактные прихожие и гардеробные комнаты. Квартиры передаются покупателям без отделки.
Архитектура корпусов образует закрытые дворы с системой контроля доступа и видеонаблюдением. На придомовой территории расположены пешеходные дорожки и тротуары, зеленые зоны с ландшафтным дизайном, места для отдыха, детские и спортивные площадки с безопасным резиновым покрытием. Для автовладельцев предусмотрен подземный паркинг на 930 места. В состав комплекса входят коммерческие помещения на первых этажах, где разместятся магазины продуктов и бытовых товаров, сервисные организации, офисы, стоматологические клиники и заведения общепита.
Жилой комплекс возводится в Южнопортовом районе ЮВАО Москвы. В пешей доступности от новостройки есть благоустроенная набережная, работают супермаркеты и образовательные учреждения, спортивные объекты, библиотека и поликлиника. Метро «Угрешская» находится в пяти минутах пешком.
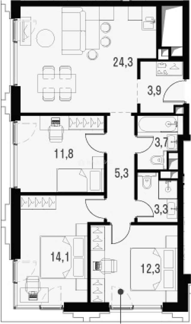
О квартире
Общая площадь
78.7 м²
Жилая площадь
38.2 м²
Площадь кухни
24.3 м²
Площадь комнат
11.8+14.1+12.3 м²
Подъезд
1
Этаж
18
Окна выходят
На улицу
О доме
Год постройки
2024
Этажность
30
Количество подъездов
1
Материал постройки
Монолитный
Материал перекрытий
Монолитные
Отопление
Центральное
Пассажирских лифтов
1
Грузовых лифтов
1
Парковка
Подземная
Расположение
Россия, Москва, Волгоградский проспект, 32к6
Волгоградский проспект
7 мин.
Угрешская
8 мин.
Дубровка
9 мин.
Дубровка
13 мин.
Кожуховская
20 мин.
Калитники
21 мин.
Пролетарская
22 мин.
Новохохловская
24 мин.
Ипотечный калькулятор
Заполните 1 анкету — получите предложения от десятков банков на специальных условиях
Программа ипотеки
Стоимость жилья, ₽
Первый взнос, ₽
Срок кредита
от 5.75%
Ставка
от 210 612 ₽
Платеж в месяц
Расчёт носит информационный характер и не является публичной офертой
Похожие объекты










4-комн. квартира, 78,7 м², 22/30 эт.
Волгоградский проспект
7 мин.











4-комн. квартира, 82,2 м², 25/30 эт.
Волгоградский проспект
6 мин.











4-комн. квартира, 79,2 м², 29/30 эт.
Волгоградский проспект
7 мин.



3-комн. квартира, 71,5 м², 23/33 эт.
Новохохловская
8 мин.
Консультант по новостройкам
33 477 871 ₽
425 386 ₽/м²












