Продается 3-комн. квартира, 98.5 м²
Россия, Москва, улица Виктора Маслова, 2
Автозаводская
16 мин.
98.5 м²
Общая площадь
52.9 м²
Жилая площадь
15.3 м²
Площадь кухни
12 из 16
Этаж
Описание
Проектом запланированы квартиры различных площадей и планировок от небольших студий до просторных двухуровневых квартир и таунхаусов. Кроме того, будут представлены квартиры с каминами, террасами и окнами в ванных комнатах. Лоджии с панорамным остеклением обеспечат повышенную освещенность. Квартиры передаются дольщикам с дизайнерской отделкой и без отделки.
В состав комплекса входит детский сад на 80 мест. Для автовладельцев предусмотрен двухуровневый паркинг на 1017 мест с келлерами и мойкой. Проектом предусмотрено создание уютных закрытых дворов, свободных от автомобилей. Все придомовые территории благоустроены и озеленены по авторскому проекту бюро «WOWHAUS», предусмотрены пешеходные аллеи, игровые площадки и уличные гимнастические комплексы.
Жилой комплекс находится в Даниловском районе Москвы. Здесь расположены здания 18 века, дома в стиле советского монументального классицизма, современные офисные и коммерческие площадки. В пешей доступности находятся магазины, торговые центры, медицинские учреждения, кафе и рестораны. Метро «Автозаводская» расположено в 15 минутах пешком.
О квартире
Общая площадь
98.5 м²
Жилая площадь
52.9 м²
Площадь кухни
15.3 м²
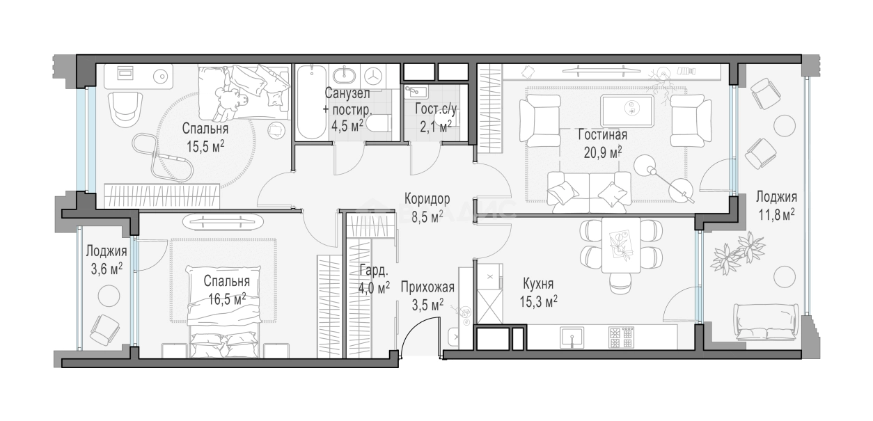
Площадь комнат
16.44+15.99+20.87 м²
Высота потолков
3 м
Этаж
12
Окна выходят
На улицу
О доме
Год постройки
2021
Этажность
16
Количество подъездов
5
Материал постройки
Монолитный
Материал перекрытий
Монолитные
Отопление
Центральное
Пассажирских лифтов
1
Грузовых лифтов
1
Парковка
Подземная
Расположение
Россия, Москва, улица Виктора Маслова, 2
Автозаводская
16 мин.
Дубровка
16 мин.
Автозаводская
18 мин.
Павелецкая
19 мин.
Дубровка
20 мин.
Пролетарская
20 мин.
Крестьянская застава
20 мин.
Павелецкая
22 мин.
Ипотечный калькулятор
Заполните 1 анкету — получите предложения от десятков банков на специальных условиях
Программа ипотеки
Стоимость жилья, ₽
Первый взнос, ₽
Срок кредита
от 5.75%
Ставка
от 416 595 ₽
Платеж в месяц
Расчёт носит информационный характер и не является публичной офертой
Похожие объекты








4-комн. квартира, 103,4 м², 7/16 эт.
Тульская
10 мин.





















3-комн. квартира, 98 м², 27/27 эт.
Серпуховская
14 мин.








5-комн. квартира, 108,5 м², 68/69 эт.
Кожуховская
6 мин.










4-комн. квартира, 106,9 м², 4/22 эт.
Серпуховская
13 мин.
Консультант по новостройкам
66 220 000 ₽
672 285 ₽/м²


















