Продается Студия, 27.34 м²
Россия, Москва, Северный административный округ, Хорошёвский район, жилой комплекс Зорге 9
Зорге
10 мин.
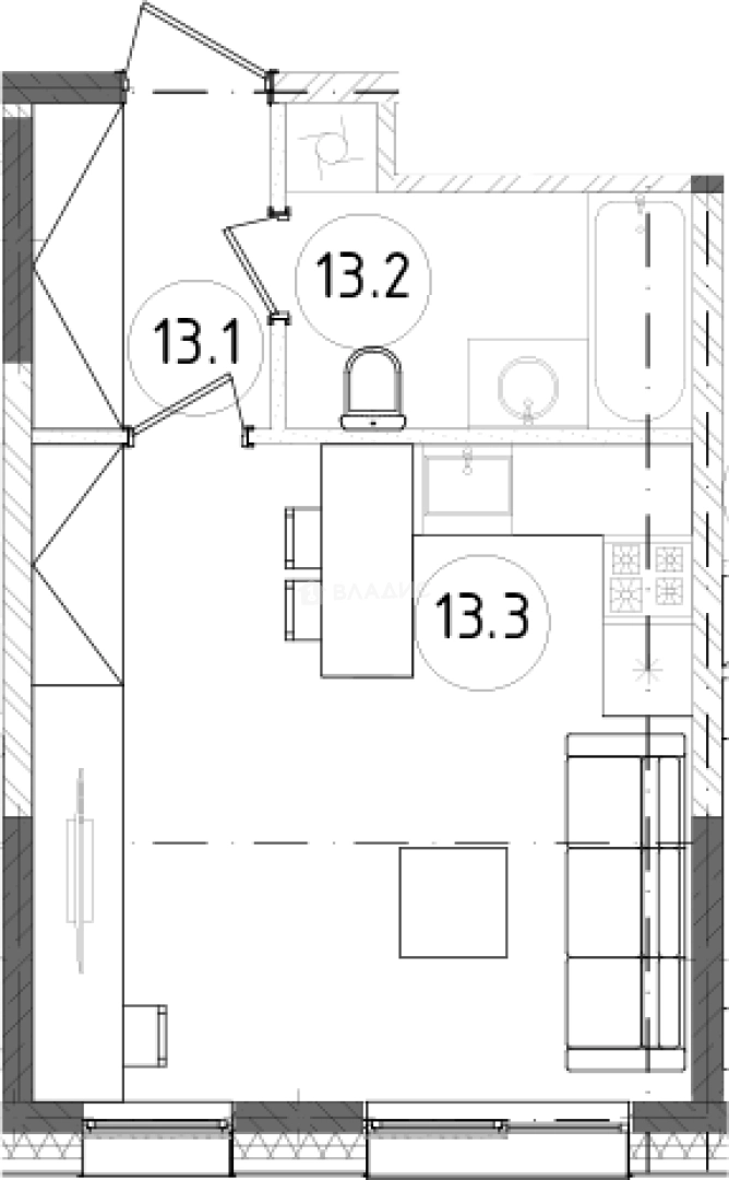
27.34 м²
Общая площадь
19.26 м²
Жилая площадь
19 из 21
Этаж
Описание
Покупателям апартаментов в ЖК «Зорге, 9» предложено множество планировочных решений: в наличии апарты, как классического типа, так и европланировки. Они передаются дольщикам без отделки.
В холлах установлены камеры видеонаблюдения. Гостей и жителей дома будет встречать консьерж. Предусмотрен клининг-сервис и мелкие коммерческие объекты на первом этаже. Территория по периметру огорожена. Во дворе предусмотрены игровые площадки, спортивные зоны и места для отдыха. Застройщик благоустроит парк, откроет площадь искусств и музей национальных ремесел. Под двором запроектирован охраняемый паркинг с доступом по пропускной электронной системе.
Комплекс расположен в одном из самых тихих, живописных и экологически чистых мест столицы, в окружении многочисленных парков и крупных зеленых массивов. Метро «Зорге» находится в 10 минутах пешком.
О квартире
Общая площадь
27.34 м²
Жилая площадь
19.26 м²
Площадь комнат
19.26 м²
Высота потолков
3.15 м
Подъезд
1
Этаж
19
Окна выходят
На улицу
О доме
Год постройки
2022
Этажность
21
Количество подъездов
1
Материал постройки
Монолитный
Материал перекрытий
Монолитные
Отопление
Центральное
Пассажирских лифтов
1
Грузовых лифтов
1
Парковка
Подземная
Расположение
Россия, Москва, Северный административный округ, Хорошёвский район, жилой комплекс Зорге 9
Зорге
10 мин.
Хорошево
8 мин.
Полежаевская
10 мин.
Хорошевская
12 мин.
Октябрьское поле
18 мин.
ЦСКА
21 мин.
Панфиловская
23 мин.
Ипотечный калькулятор
Заполните 1 анкету — получите предложения от десятков банков на специальных условиях
Программа ипотеки
Стоимость жилья, ₽
Первый взнос, ₽
Срок кредита
от 5.75%
Ставка
от 113 934 ₽
Платеж в месяц
Расчёт носит информационный характер и не является публичной офертой
Похожие объекты








Студия, 28,4 м², 18/21 эт.
Зорге
6 мин.








Студия, 26,8 м², 19/21 эт.
Зорге
6 мин.








Студия, 28,1 м², 16/21 эт.
Зорге
10 мин.
Консультант по новостройкам
18 110 330 ₽
662 412 ₽/м²
















