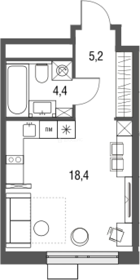
Продается Студия, 28 м²
Россия, Москва, Тагильская улица, 4к1
Бульвар Рокоссовского
9 мин.
28 м²
Общая площадь
18.4 м²
Жилая площадь
23 из 25
Этаж
Описание
В проекте предусмотрены три детских сада, школа, фитнес-центр, магазины, аптеки, отделения банков и службы быта. Внутри квартала имеются просторный пешеходный бульвар с велосипедными дорожками, места для отдыха, специализированая площадка для воркаута.
В ЖК «Сиреневый парк» предусмотрен отапливаемый подземный паркинг, к которому можно попасть на скоростных и бесшумных лифтах, не выходя из дома. Для гостей предусмотрен специально оборудованный паркинг на 208 машиномест. Дворы жилого комплекса свободны от личного транспорта. Безопасность проживания и отдыха внутри всего квартала обеспечивается двухступенчатой системой контроля доступа жильцов и системой видеонаблюдения.
ЖК «Сиреневый парк» расположен в 200 метрах от национального парка «Лосиный остров». Недалёко находится зона отдыха Бабаевского пруда с мостиками и детской площадкой и живописный Гольяновский пруд. До метро «Бульвар Рокоссовского» пешком 15 минут.
О квартире
Общая площадь
28 м²
Жилая площадь
18.4 м²
Площадь комнат
18.4 м²
Высота потолков
2.9 м
Этаж
23
Окна выходят
На улицу
О доме
Год постройки
2024
Этажность
25
Количество подъездов
3
Материал постройки
Монолитный
Материал перекрытий
Монолитные
Отопление
Центральное
Пассажирских лифтов
1
Грузовых лифтов
1
Парковка
Подземная
Расположение
Россия, Москва, Тагильская улица, 4к1
Бульвар Рокоссовского
9 мин.
Бульвар Рокоссовского
13 мин.
Локомотив
20 мин.
Черкизовская
21 мин.
Щелковская
5 мин.
Ипотечный калькулятор
Заполните 1 анкету — получите предложения от десятков банков на специальных условиях
Программа ипотеки
Стоимость жилья, ₽
Первый взнос, ₽
Срок кредита
от 5.75%
Ставка
от 77 632 ₽
Платеж в месяц
Расчёт носит информационный характер и не является публичной офертой
Похожие объекты










1-комн. квартира, 28,6 м², 5/25 эт.
Щелковская
20 мин.





1-комн. квартира, 26,6 м², 14/25 эт.
Щелковская
19 мин.










Студия, 28,9 м², 24/25 эт.
Бульвар Рокоссовского
15 мин.
Консультант по новостройкам
12 340 000 ₽
440 715 ₽/м²



















