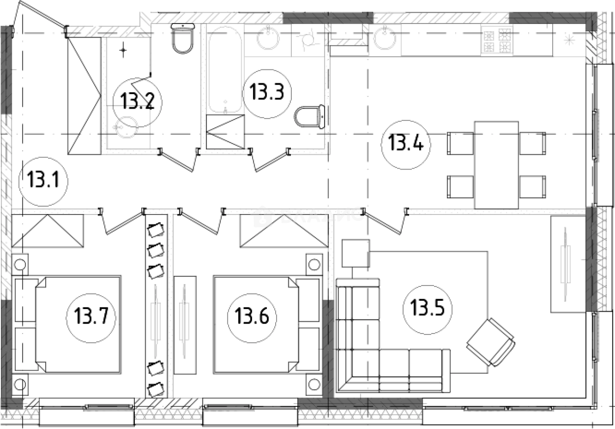
Продается 4-комн. квартира, 68.49 м²
Россия, Москва, Северный административный округ, Хорошёвский район, жилой комплекс Зорге 9
Зорге
6 мин.
68.49 м²
Общая площадь
34.67 м²
Жилая площадь
15.71 м²
Площадь кухни
18 из 21
Этаж
Описание
Покупателям апартаментов в ЖК «Зорге, 9» предложено множество планировочных решений: в наличии апарты, как классического типа, так и европланировки. Они передаются дольщикам без отделки.
В холлах установлены камеры видеонаблюдения. Гостей и жителей дома будет встречать консьерж. Предусмотрен клининг-сервис и мелкие коммерческие объекты на первом этаже. Территория по периметру огорожена. Во дворе предусмотрены игровые площадки, спортивные зоны и места для отдыха. Застройщик благоустроит парк, откроет площадь искусств и музей национальных ремесел. Под двором запроектирован охраняемый паркинг с доступом по пропускной электронной системе.
Комплекс расположен в одном из самых тихих, живописных и экологически чистых мест столицы, в окружении многочисленных парков и крупных зеленых массивов. Метро «Зорге» находится в 10 минутах пешком.
О квартире
Общая площадь
68.49 м²
Жилая площадь
34.67 м²
Площадь кухни
15.71 м²
Площадь комнат
9.62+9.44+15.61 м²
Высота потолков
3.15 м
Подъезд
1
Этаж
18
Окна выходят
На улицу
О доме
Год постройки
2022
Этажность
21
Количество подъездов
1
Материал постройки
Монолитный
Материал перекрытий
Монолитные
Отопление
Центральное
Пассажирских лифтов
1
Грузовых лифтов
1
Парковка
Подземная
Расположение
Россия, Москва, Северный административный округ, Хорошёвский район, жилой комплекс Зорге 9
Зорге
6 мин.
Хорошево
8 мин.
Полежаевская
11 мин.
Хорошевская
13 мин.
Октябрьское поле
18 мин.
ЦСКА
22 мин.
Ипотечный калькулятор
Заполните 1 анкету — получите предложения от десятков банков на специальных условиях
Программа ипотеки
Стоимость жилья, ₽
Первый взнос, ₽
Срок кредита
от 5.75%
Ставка
от 206 316 ₽
Платеж в месяц
Расчёт носит информационный характер и не является публичной офертой
Похожие объекты








3-комн. квартира, 77,1 м², 12/21 эт.
Зорге
6 мин.







4-комн. квартира, 77,8 м², 6/21 эт.
Зорге
10 мин.








3-комн. квартира, 77,1 м², 14/21 эт.
Зорге
6 мин.
Консультант по новостройкам
32 795 000 ₽
478 830 ₽/м²

















