Продается 2-комн. квартира, 37.48 м²
Россия, Москва, Северный административный округ, Хорошёвский район, жилой комплекс Зорге 9
Зорге
6 мин.
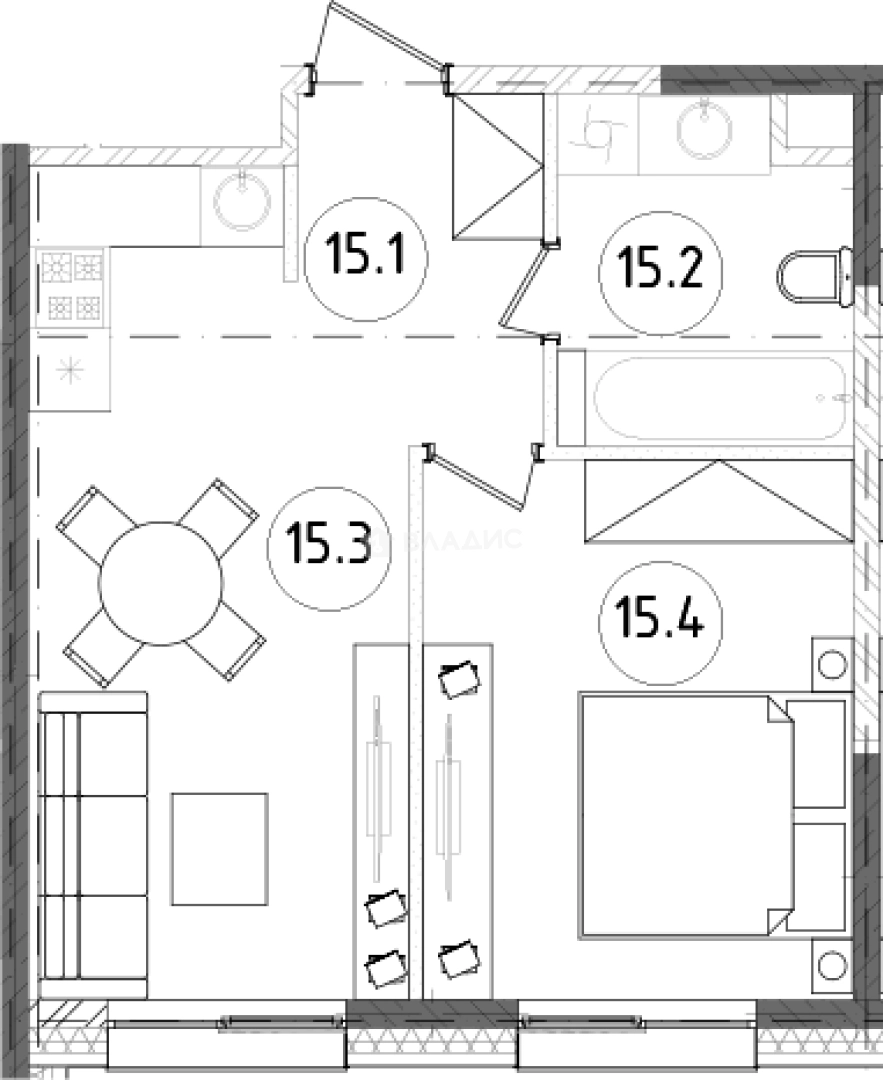
37.48 м²
Общая площадь
12.41 м²
Жилая площадь
15.06 м²
Площадь кухни
19 из 21
Этаж
Описание
Покупателям апартаментов в ЖК «Зорге, 9» предложено множество планировочных решений: в наличии апарты, как классического типа, так и европланировки. Они передаются дольщикам без отделки.
В холлах установлены камеры видеонаблюдения. Гостей и жителей дома будет встречать консьерж. Предусмотрен клининг-сервис и мелкие коммерческие объекты на первом этаже. Территория по периметру огорожена. Во дворе предусмотрены игровые площадки, спортивные зоны и места для отдыха. Застройщик благоустроит парк, откроет площадь искусств и музей национальных ремесел. Под двором запроектирован охраняемый паркинг с доступом по пропускной электронной системе.
Комплекс расположен в одном из самых тихих, живописных и экологически чистых мест столицы, в окружении многочисленных парков и крупных зеленых массивов. Метро «Зорге» находится в 10 минутах пешком.
О квартире
Общая площадь
37.48 м²
Жилая площадь
12.41 м²
Площадь кухни
15.06 м²
Площадь комнат
12.41 м²
Высота потолков
3.15 м
Этаж
19
Окна выходят
На улицу
О доме
Год постройки
2022
Этажность
21
Количество подъездов
1
Материал постройки
Монолитный
Материал перекрытий
Монолитные
Отопление
Центральное
Пассажирских лифтов
1
Грузовых лифтов
1
Парковка
Подземная
Расположение
Россия, Москва, Северный административный округ, Хорошёвский район, жилой комплекс Зорге 9
Зорге
6 мин.
Хорошево
8 мин.
Полежаевская
11 мин.
Хорошевская
13 мин.
Октябрьское поле
18 мин.
ЦСКА
22 мин.
Ипотечный калькулятор
Заполните 1 анкету — получите предложения от десятков банков на специальных условиях
Программа ипотеки
Стоимость жилья, ₽
Первый взнос, ₽
Срок кредита
от 5.75%
Ставка
от 139 484 ₽
Платеж в месяц
Расчёт носит информационный характер и не является публичной офертой
Консультант по новостройкам
22 171 660 ₽
591 560 ₽/м²



























