Продается Студия, 23.46 м²
Россия, Москва, жилой комплекс Аквилон Бисайд 2.0
Нижегородская
9 мин.
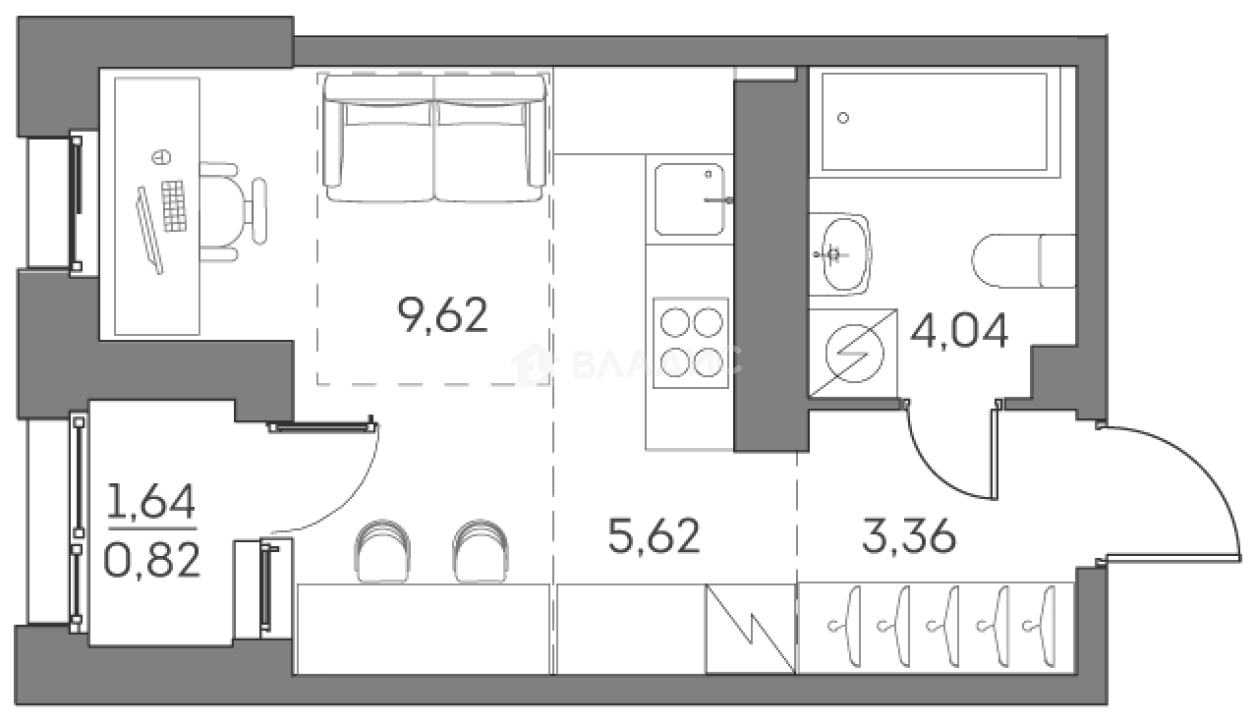
23.46 м²
Общая площадь
9.62 м²
Жилая площадь
5.62 м²
Площадь кухни
18 из 28
Этаж
Описание
В проекте представлены разнообразные типы планировок классических и евро-форматов: от компактных студий до просторных квартир с несколькими спальнями. Есть квартиры с видовыми террасами. Квартиры сдаются с подчистовой отделкой White Box и увеличенными оконными проемами LIGHT-IN.
В закрытом от машин дворе размещены: событийная площадь с амфитеатром, зоны тихого отдыха, разновозрастные детские площадки с эко-инвентарем, спортивные площадки, шаговые тропы, зоны отдыха с качелями и теневые навесы. Во дворе также оборудованы удобные рабочие места с розетками. В рамках жилого комплекса спроектирован современный образовательный комплекс на 825 учеников, в который войдут: современные учебные кабинеты, IT-полигон и робоклассы, 2 многосветных актовых зала, медицинский блок, многофункциональная спортивная площадка на свежем воздухе, уличное пространство для практических занятий биологией, экологическая образовательная тропа. На первом этаже жилого комплекса расположено пространство для детей Akvilon Kids, это место для встреч маленьких соседей, игр и проведения семейных праздников с участием аниматоров. Для владельцев автомобилей в комплексе предусмотрен подземный паркинг.
Комплекс расположен в Нижегородском районе, на Рязанском проспекте. Рядом с жилым комплексом есть множество небольших магазинов, кафе, ресторанов, а также крупные торговые центры и строительный центр «Леруа Мерлен». Для спорта и активного отдыха рядом есть фитнес-клуб, бассейны, теннисные корты и даже конная школа. В шаговой доступности расположено 8 масштабных зеленых зон. В пешей доступности метро «Нижегородская» и «Стахановская».
О квартире
Общая площадь
23.46 м²
Жилая площадь
9.62 м²
Площадь кухни
5.62 м²
Площадь комнат
15.24 м²
Высота потолков
2.8 м
Подъезд
5
Этаж
18
Окна выходят
На улицу
Совмещенных санузлов
1
Ремонт
White box
О доме
Год постройки
2027
Этажность
28
Количество подъездов
9
Материал постройки
Кирпично-монолитный
Материал перекрытий
Монолитные
Отопление
Центральное
Пассажирских лифтов
1
Грузовых лифтов
1
Парковка
Подземная
Расположение
Россия, Москва, жилой комплекс Аквилон Бисайд 2.0
Нижегородская
9 мин.
Нижегородская
11 мин.
Нижегородская
11 мин.
Стахановская
14 мин.
Новохохловская
21 мин.
Ипотечный калькулятор
Заполните 1 анкету — получите предложения от десятков банков на специальных условиях
Программа ипотеки
Стоимость жилья, ₽
Первый взнос, ₽
Срок кредита
от 5.75%
Ставка
от 81 175 ₽
Платеж в месяц
Расчёт носит информационный характер и не является публичной офертой
Похожие объекты








Студия, 23,8 м², 11/28 эт.
Нижегородская
9 мин.








Студия, 23,5 м², 24/28 эт.
Нижегородская
9 мин.








Студия, 23,5 м², 22/28 эт.
Нижегородская
9 мин.








Студия, 23,5 м², 23/28 эт.
Нижегородская
9 мин.
Консультант по новостройкам
12 903 164 ₽
550 007 ₽/м²









