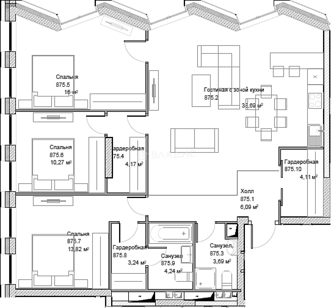
Продается 4-комн. квартира, 103.66 м²
Россия, Москва, комплекс апартаментов Инсайдер
Тульская
10 мин.
103.66 м²
Общая площадь
40.09 м²
Жилая площадь
38.69 м²
Площадь кухни
6 из 16
Этаж
Описание
В проекте «Insider» площади планировок варьируются от студий 20 кв. метров до просторных трехкомнатных апартаментов площадью более 100 кв. метров. Представлены варианты с мастер-спальней и выходом на собственную большую террасу. Благодаря высоким потолкам и большим панорамным окнам апартаменты наполнены светом и воздухом. Отделка представлена в трех стилистических решениях — Minimal, Culture и Nature. Все апартаменты сдаются с системой «Умный дом», а собственное мобильное приложение позволяет заказать услугу консьержа, настроить взаимодействие с управляющей компанией, проконтролировать коммунальные платежи или разместить заявку на ремонт.
В проекте «Insider» предусмотрены фитнес-студия с инфракрасной сауной, кафе с летней террасой, детский центр, дизайнерская лаунж-зона с лобби-баром и служба ресепшен. Для бизнеса спроектированы 2 коворкинга и пространство деловых встреч. В лобби работают аптека и стоматология. Минимаркет, химчистка и пункт бытовых услуг удовлетворяют большинство повседневных потребностей. Во дворе расположены зоны отдыха и фонтан. Для владельцев автомобилей предусмотрен подземный паркинг с въездом по рампе через систему распознавания номеров. Здесь же находятся келлеры площадью от 1,4 до 7,7 кв. метров. Паркинг оборудован настенной системой хранения велосипедов и розетками для электромобилей.
Проект «Insider» расположен на Симоновской набережной в непосредственной близости к воде. Внешняя инфраструктура развита, в пешей доступности детские сады, школы, кафе, магазины, медицинские учреждения и фитнес центр. Метро «Тульская» находится в 15 минутах пешком, а Кремль в 7 км от проекта.
О квартире
Общая площадь
103.66 м²
Жилая площадь
40.09 м²
Площадь кухни
38.69 м²
Площадь комнат
16+10.27+13.82 м²
Высота потолков
2.95 м
Этаж
6
Окна выходят
На улицу
О доме
Год постройки
2025
Этажность
16
Количество подъездов
1
Материал постройки
Монолитный
Материал перекрытий
Монолитные
Отопление
Центральное
Пассажирских лифтов
1
Грузовых лифтов
1
Парковка
Подземная
Расположение
Россия, Москва, комплекс апартаментов Инсайдер
Тульская
10 мин.
ЗИЛ
15 мин.
Автозаводская
17 мин.
Автозаводская
22 мин.
Верхние Котлы
25 мин.
Шаболовская
27 мин.
Технопарк
27 мин.
Серпуховская
29 мин.
Ипотечный калькулятор
Заполните 1 анкету — получите предложения от десятков банков на специальных условиях
Программа ипотеки
Стоимость жилья, ₽
Первый взнос, ₽
Срок кредита
от 5.75%
Ставка
от 306 502 ₽
Платеж в месяц
Расчёт носит информационный характер и не является публичной офертой
Похожие объекты












4-комн. квартира, 92 м², 18/40 эт.
Тульская
4 мин.












4-комн. квартира, 117 м², 14/19 эт.
Технопарк
5 мин.












4-комн. квартира, 117 м², 10/19 эт.
Технопарк
5 мин.
Консультант по новостройкам
48 720 200 ₽
470 000 ₽/м²























