Продается 2-комн. квартира, 70.6 м²
Россия, Москва, проспект Мира, 222
Ростокино
3 мин.
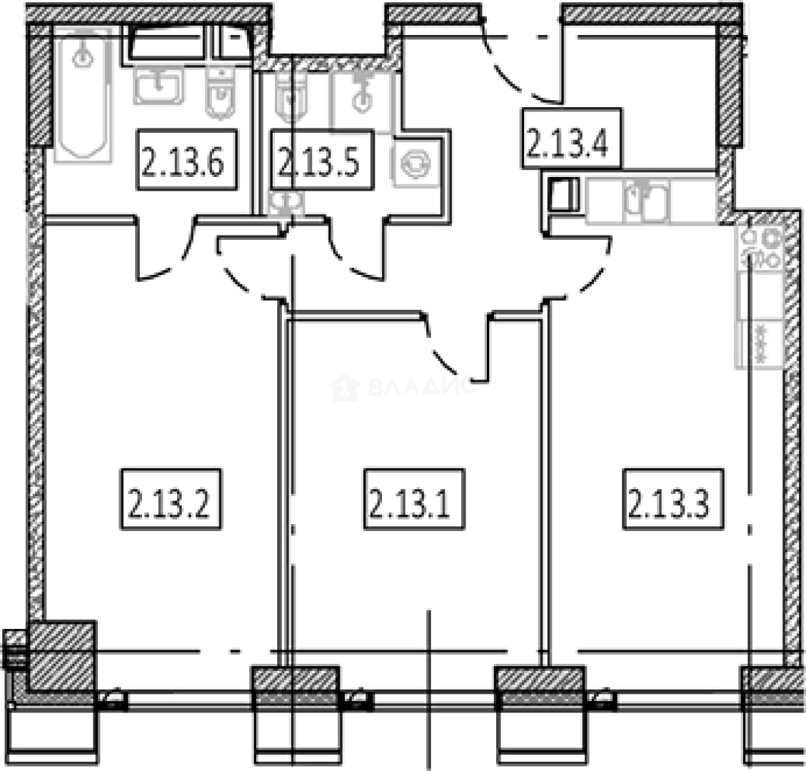
70.6 м²
Общая площадь
31.7 м²
Жилая площадь
18.4 м²
Площадь кухни
17 из 35
Этаж
Описание
В проекте «Мираполис» доступен большой выбор планировочных решений: от студий до пятикомнатных апартаментов с высокими потолками, панорамными окнами и системой кондиционирования для каждого лота. Проект оснащен системой «Умный дом».
Под открытым небом расположится Lounge-rooftop. Озеленение и благоустройство периметра и внутренней территории создают дополнительные возможности для прогулок, детских игр и занятий спортом на свежем воздухе. Уникальная концепция проекта предлагает все преимущества современного бизнес-класса: круглосуточный консьерж-сервис, подземный паркинг, торговые и деловые центры, фитнес, бассейн и спа.
Квартал «Мираполис» расположен на Проспекте мира, в 500 метрах от национального парка «Лосиный остров». Развитая инфраструктура, близость к крупным торговым и бизнес-центрам, вузам и медицинским клиникам создает особенный комфорт. Удобная локация в 400 метров от МЦК «Ростокино» и быстрый выезд на главные транспортные магистрали позволяет всего за 30 минут добраться до центра Москвы.
О квартире
Общая площадь
70.6 м²
Жилая площадь
31.7 м²
Площадь кухни
18.4 м²
Площадь комнат
14.7+17 м²
Высота потолков
3 м
Подъезд
1
Этаж
17
Окна выходят
На улицу
О доме
Год постройки
2026
Этажность
35
Количество подъездов
1
Материал постройки
Монолитный
Материал перекрытий
Монолитные
Отопление
Центральное
Пассажирских лифтов
1
Грузовых лифтов
1
Парковка
Подземная
Расположение
Россия, Москва, проспект Мира, 222
Ростокино
3 мин.
Ботанический сад
21 мин.
Свиблово
21 мин.
Ботанический сад
23 мин.
Белокаменная
3 мин.
ВДНХ
4 мин.
Бабушкинская
5 мин.
Алексеевская
6 мин.
Ипотечный калькулятор
Заполните 1 анкету — получите предложения от десятков банков на специальных условиях
Программа ипотеки
Стоимость жилья, ₽
Первый взнос, ₽
Срок кредита
от 5.75%
Ставка
от 129 248 ₽
Платеж в месяц
Расчёт носит информационный характер и не является публичной офертой
Похожие объекты
Консультант по новостройкам
20 544 600 ₽
291 000 ₽/м²





































