Продается 2-комн. квартира, 75.68 м²
Россия, Москва, Южный административный округ, район Нагатино-Садовники, ЖК 1-й Нагатинский, 1.3
Нагатинская
5 мин.
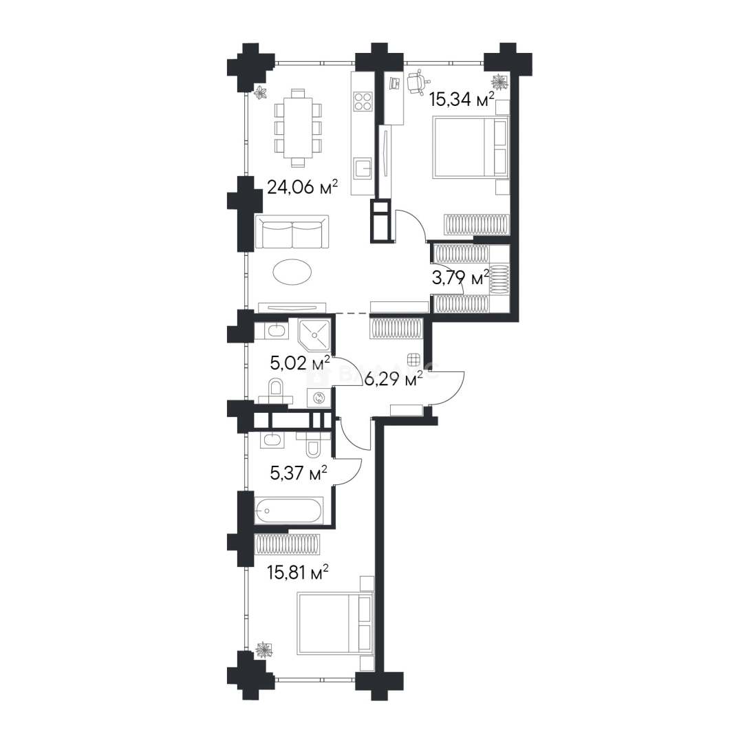
75.68 м²
Общая площадь
31.15 м²
Жилая площадь
24.06 м²
Площадь кухни
23 из 25
Этаж
Описание
В проекте «1-й Нагатинский» предложено множество планировочных решений, в наличии студии и европланировки. Всего разработано более, чем 100 планировочных решений. Сдаются они с подчистовой отделкой, высотой потолков 3,15 метров и панорамными окнами. Из части квартир открывается прекрасный вид на реку.
По всей территории жилого комплекса «1-й Нагатинский» есть Wi-fi. В закрытом дворе предусмотрена круглосуточная охрана, сделан ландшафтный дизайн, установлены детские и спортивные площадки, организованы места для отдыха. На территории проекта находятся детский сад и школа. Для владельцев автомобилей предусмотрен подземный паркинг, в котором спроектированы кладовые помещения.
Жилой комплекс «1-й Нагатинский» находится в районе Нагатино-Садовники. В двух минутах пешком расположены благоустроенные набережные: Нагатинская, Новоданиловская и Набережная Марка Шагала. Напротив ЖК спроектирован новый мультифункциональный ТРЦ с бассейном и кинотеатрами. Рядом с комплексом находятся магазины, кафе, салоны красоты, детские сады, школы, медицинские учреждения, батутный парк, скейт-парк, всесезонный горнолыжный комплекс и картинг. До метро «Нагатинская» 5 минут пешком.
О квартире
Общая площадь
75.68 м²
Жилая площадь
31.15 м²
Площадь кухни
24.06 м²
Подъезд
1
Этаж
23
Окна выходят
На улицу
О доме
Год постройки
2025
Этажность
25
Количество подъездов
2
Материал постройки
Кирпично-монолитный
Материал перекрытий
Монолитные
Отопление
Центральное
Парковка
Подземная
Расположение
Россия, Москва, Южный административный округ, район Нагатино-Садовники, ЖК 1-й Нагатинский, 1.3
Нагатинская
5 мин.
Верхние Котлы
12 мин.
Нагорная
19 мин.
Крымская
20 мин.
ЗИЛ
27 мин.
Коломенская
28 мин.
Ипотечный калькулятор
Заполните 1 анкету — получите предложения от десятков банков на специальных условиях
Программа ипотеки
Стоимость жилья, ₽
Первый взнос, ₽
Срок кредита
от 5.75%
Ставка
от 325 467 ₽
Платеж в месяц
Расчёт носит информационный характер и не является публичной офертой
Похожие объекты












3-комн. квартира, 79 м², 36/40 эт.
Тульская
4 мин.







4-комн. квартира, 82,8 м², 13/16 эт.
Тульская
10 мин.







4-комн. квартира, 82,8 м², 15/16 эт.
Тульская
11 мин.
Консультант по новостройкам
51 734 683 ₽
683 598 ₽/м²






























