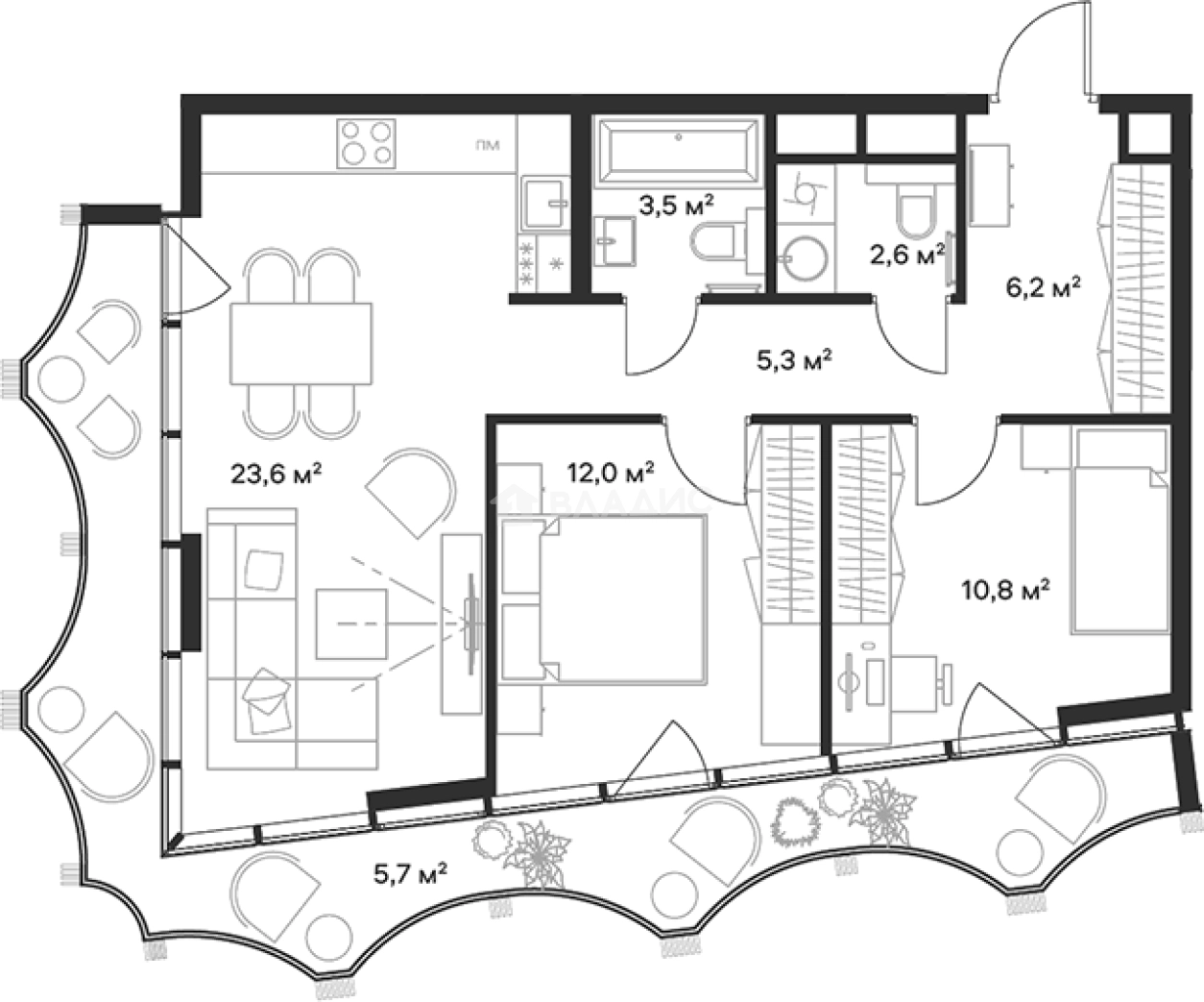
Продается 2-комн. квартира, 64.4 м²
Россия, Москва, Сельскохозяйственная улица, 24Ак1
Ботанический сад
9 мин.
64.4 м²
Общая площадь
22.8 м²
Жилая площадь
23.6 м²
Площадь кухни
9 из 23
Этаж
Описание
Тихий спальный район, огромная терраса, в пешей доступности огромный ботанический сад
Квартира:
2 изолированные комнаты
Кухня-гостинная
2 санузла
Терраса
1 собственник, без обременений, возможна ипотека
Звоните, пишите, покупайте!
О квартире
Общая площадь
64.4 м²
Жилая площадь
22.8 м²
Площадь кухни
23.6 м²
Площадь комнат
10,8+12 м²
Высота потолков
3.08 м
Подъезд
2
Этаж
9
Расположение квартиры
не угловая
Окна выходят
На улицу
Совмещенных санузлов
2
О доме
Год постройки
2025
Этажность
23
Количество подъездов
2
Материал постройки
Кирпично-монолитный
Материал перекрытий
Ж/б плиты
Отопление
Центральное
Пассажирских лифтов
1
Грузовых лифтов
1
Парковка
Подземная
Огороженная территория
Да
Расположение
Россия, Москва, Сельскохозяйственная улица, 24Ак1
Ботанический сад
9 мин.
Ботанический сад
10 мин.
Ростокино
20 мин.
ВДНХ
25 мин.
Свиблово
26 мин.
Владыкино
5 мин.
Алексеевская
5 мин.
Ипотечный калькулятор
Заполните 1 анкету — получите предложения от десятков банков на специальных условиях
Программа ипотеки
Стоимость жилья, ₽
Первый взнос, ₽
Срок кредита
от 5.75%
Ставка
от 222 704 ₽
Платеж в месяц
Расчёт носит информационный характер и не является публичной офертой
Предложите свою цену
35 400 000 ₽
549 689 ₽/м²















