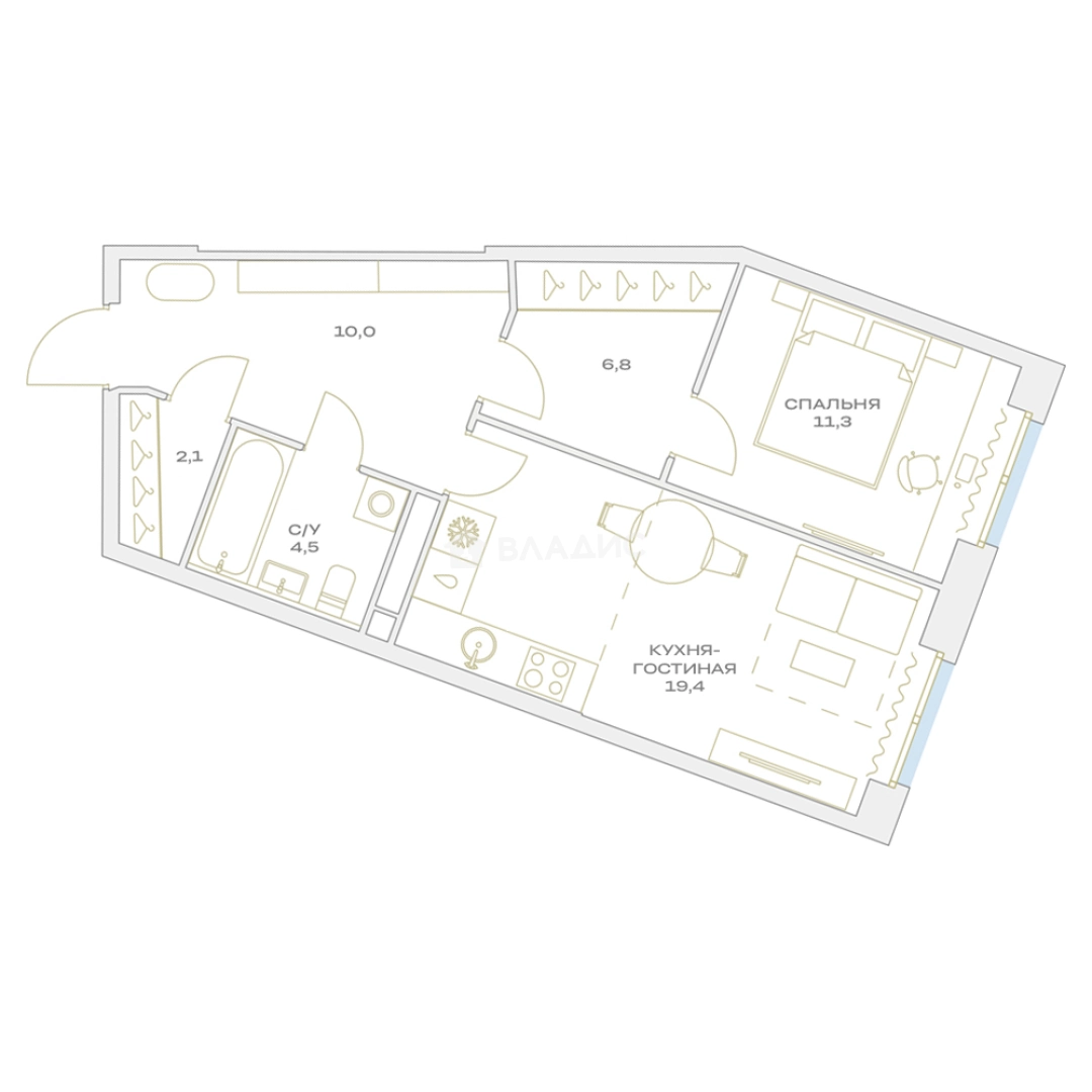
Продается 2-комн. квартира, 54.1 м²
Россия, Москва, Новомосковский административный округ, Филимонковский район, посёлок Марьино, жилой комплекс Детали
Аэропорт Внуково
10 мин.
54.1 м²
Общая площадь
23 м²
Жилая площадь
7.7 м²
Площадь кухни
5 из 22
Этаж
Описание
В ЖК «Детали» предложено множество планировочных решений — от компактных студий до просторных трехкомнатных квартир, в том числе эксклюзивные форматы с угловым остеклением, окном в ванной или квартиры с окном в кухне над столешницей. Сдаются они без отделки и с высотой потолков от 2,7 метра.
Благоустройство территории комплекса выполнено по индивидуальному проекту от бюро VIEWGA с использованием натуральных материалов и озеленения. Приватный внутренний двор жилого комплекса образует разноуровневое пространство, на котором размещены детские игровые зоны, спортивные площадки, прогулочные зоны и зоны отдыха с гамаками и шезлонгами. Во дворе предусмотрен бесплатный Wi-Fi для жителей комплекса. Территория ЖК огорожена, по периметру ведется видеонаблюдение. В рамках проекта построены 2 детских сада, в шаговой доступности работает школа №1392 имени Д. В. Рябинкина.
ЖК «Детали» находится в поселке Марьино, в 15 км от МКАД. В пешей доступности расположен парк Марьино и Валуевский лесопарк. В районе есть вся необходимая инфраструктура: магазины и супермаркеты, кафе, рестораны, салоны красоты. До метро «Филатов луг» — 15 минут транспортом.
О квартире
Общая площадь
54.1 м²
Жилая площадь
23 м²
Площадь кухни
7.7 м²
Высота потолков
2.7 м
Подъезд
3
Этаж
5
Окна выходят
На улицу
Ремонт
White box
О доме
Год постройки
2026
Этажность
22
Количество подъездов
2
Материал постройки
Кирпично-монолитный
Материал перекрытий
Ж/б плиты
Отопление
Центральное
Парковка
Подземная
Расположение
Россия, Москва, Новомосковский административный округ, Филимонковский район, посёлок Марьино, жилой комплекс Детали
Аэропорт Внуково
10 мин.
Филатов луг
12 мин.
Пыхтино
13 мин.
Прокшино
13 мин.
Ольховая
14 мин.
Рассказовка
14 мин.
Новомосковская
15 мин.
Ипотечный калькулятор
Заполните 1 анкету — получите предложения от десятков банков на специальных условиях
Программа ипотеки
Стоимость жилья, ₽
Первый взнос, ₽
Срок кредита
от 5.75%
Ставка
от 101 970 ₽
Платеж в месяц
Расчёт носит информационный характер и не является публичной офертой
Похожие объекты
















2-комн. квартира, 54,1 м², 10/22 эт.
Аэропорт Внуково
10 мин.


















3-комн. квартира, 62,1 м², 6/17 эт.
Аэропорт Внуково
10 мин.


















3-комн. квартира, 59,7 м², 5/17 эт.
Аэропорт Внуково
10 мин.


















2-комн. квартира, 47,6 м², 7/22 эт.
Аэропорт Внуково
10 мин.
Консультант по новостройкам
16 208 557 ₽
299 604 ₽/м²


















