Продается 1-комн. квартира, 34.5 м²
Россия, Москва, Тагильская улица, 4к1
Бульвар Рокоссовского
9 мин.
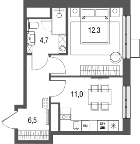
34.5 м²
Общая площадь
12.3 м²
Жилая площадь
11 м²
Площадь кухни
24 из 25
Этаж
Описание
В проекте предусмотрены три детских сада, школа, фитнес-центр, магазины, аптеки, отделения банков и службы быта. Внутри квартала имеются просторный пешеходный бульвар с велосипедными дорожками, места для отдыха, специализированая площадка для воркаута.
В ЖК «Сиреневый парк» предусмотрен отапливаемый подземный паркинг, к которому можно попасть на скоростных и бесшумных лифтах, не выходя из дома. Для гостей предусмотрен специально оборудованный паркинг на 208 машиномест. Дворы жилого комплекса свободны от личного транспорта. Безопасность проживания и отдыха внутри всего квартала обеспечивается двухступенчатой системой контроля доступа жильцов и системой видеонаблюдения.
ЖК «Сиреневый парк» расположен в 200 метрах от национального парка «Лосиный остров». Недалёко находится зона отдыха Бабаевского пруда с мостиками и детской площадкой и живописный Гольяновский пруд. До метро «Бульвар Рокоссовского» пешком 15 минут.
О квартире
Общая площадь
34.5 м²
Жилая площадь
12.3 м²
Площадь кухни
11 м²
Площадь комнат
12.3 м²
Высота потолков
2.9 м
Этаж
24
Окна выходят
На улицу
О доме
Год постройки
2024
Этажность
25
Количество подъездов
3
Материал постройки
Монолитный
Материал перекрытий
Монолитные
Отопление
Центральное
Пассажирских лифтов
1
Грузовых лифтов
1
Парковка
Подземная
Расположение
Россия, Москва, Тагильская улица, 4к1
Бульвар Рокоссовского
9 мин.
Бульвар Рокоссовского
13 мин.
Локомотив
20 мин.
Черкизовская
21 мин.
Щелковская
5 мин.
Ипотечный калькулятор
Заполните 1 анкету — получите предложения от десятков банков на специальных условиях
Программа ипотеки
Стоимость жилья, ₽
Первый взнос, ₽
Срок кредита
от 5.75%
Ставка
от 96 069 ₽
Платеж в месяц
Расчёт носит информационный характер и не является публичной офертой
Похожие объекты











1-комн. квартира, 35,8 м², 27/28 эт.
Черкизовская
3 мин.









1-комн. квартира, 34,5 м², 22/25 эт.
Бульвар Рокоссовского
9 мин.










1-комн. квартира, 39,4 м², 13/25 эт.
Бульвар Рокоссовского
9 мин.










1-комн. квартира, 34,5 м², 15/25 эт.
Бульвар Рокоссовского
9 мин.
Консультант по новостройкам
15 270 654 ₽
442 628 ₽/м²











