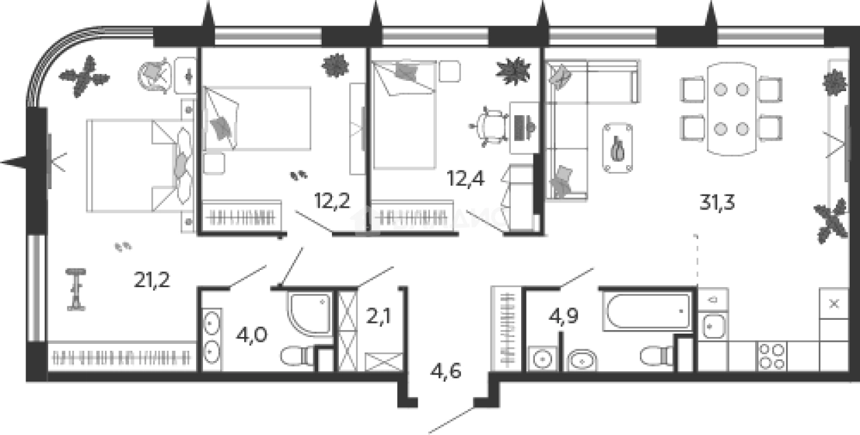
Продается 3-комн. квартира, 100.9 м²
Россия, Москва, жилой комплекс Шагал, 2-я очередь, к7.1
ЗИЛ
14 мин.
100.9 м²
Общая площадь
45.8 м²
Жилая площадь
31.3 м²
Площадь кухни
2 из 17
Этаж
Описание
Покупателям в ЖК предложено множество планировочных решений: в наличии квартиры, как классического типа, так и европланировки. Из большинства квартир открывается вид на Москву-реку.
На первых этажах предусмотрены коммерческие помещения. В подземной части зданий находятся паркинги и кладовые помещения. Также проектом предусмотрено благоустройство набережной и создание 4-километровой парковой зоны и первого в столице водного парка.
Комплекс расположен вдоль Москвы-реки и набережной Марка Шагала. Отличную транспортную доступность обеспечивает прямой выезд на ТТК и развитая сеть общественного транспорта. В 2 км расположена платформа МЦК «ЗИЛ» и станция метро «Технопарк».
О квартире
Общая площадь
100.9 м²
Жилая площадь
45.8 м²
Площадь кухни
31.3 м²
Высота потолков
3.12 м
Подъезд
1
Этаж
2
Окна выходят
На улицу
Ремонт
Без отделки
О доме
Год постройки
2025
Этажность
17
Количество подъездов
2
Материал постройки
Кирпично-монолитный
Материал перекрытий
Монолитные
Отопление
Центральное
Парковка
Подземная
Расположение
Россия, Москва, жилой комплекс Шагал, 2-я очередь, к7.1
ЗИЛ
14 мин.
Технопарк
18 мин.
Верхние Котлы
20 мин.
Нагатинская
20 мин.
Коломенская
21 мин.
Ипотечный калькулятор
Заполните 1 анкету — получите предложения от десятков банков на специальных условиях
Программа ипотеки
Стоимость жилья, ₽
Первый взнос, ₽
Срок кредита
от 5.75%
Ставка
от 318 018 ₽
Платеж в месяц
Расчёт носит информационный характер и не является публичной офертой
Похожие объекты












4-комн. квартира, 92 м², 18/40 эт.
Тульская
4 мин.







4-комн. квартира, 103,7 м², 6/16 эт.
Тульская
10 мин.







4-комн. квартира, 89,5 м², 10/16 эт.
Тульская
10 мин.
Консультант по новостройкам
50 550 597 ₽
500 997 ₽/м²


























