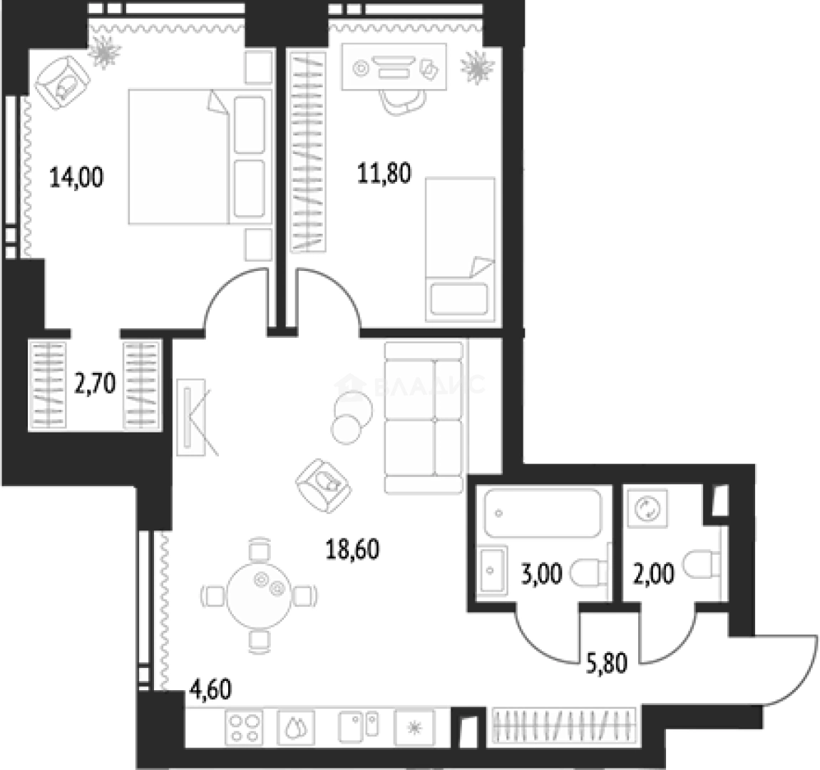
Продается 2-комн. квартира, 64.3 м²
Россия, Москва, Огородный проезд, 4/2
Бутырская
3 мин.
64.3 м²
Общая площадь
31 из 54
Этаж
Описание
В проекте «Upside Towers» предложены эргономичные планировки от студий до роскошных пентхаусов. Высота потолков в квартирах достигает 3,4 метров, что усиливает эффект от панорамных окон с обзором Москвы. Сдаются квартиры с подчистовой отделкой.
Концепция благоустройства объединяет территорию комплекса «Upside Towers» в единую композицию с прогулочным бульваром, природным комплексом и ландшафтным парком. Башни соединяются галереей, формирующей общественную жизнь внутри и снаружи. В проекте предусмотрены пятиступенчатая очистка воды с сохранением полезных минералов, централизованные кондиционирование chiller-fan coil, интегрированные системы безопасности, система «умный дом» в квартирах и на территории, современные системы мониторинга микроклимата, высокоскоростной интернет на всей территории. На территории комплекса есть кафе и рестораны, городская школа и детский сад, комьюнити-центр, водные виды спорта, фитнес-клуб и SPA-комплекс. В башнях предусмотрены смотровые площадки.
Проект «Upside Towers» находится в Бутырском районе. В пешей доступности есть Гончаровский парк. Метро Бутырское всего в 5 минутах пешком.
О квартире
Общая площадь
64.3 м²
Площадь комнат
14+11.8 м²
Высота потолков
2.95 м
Этаж
31
Окна выходят
На улицу
О доме
Год постройки
2026
Этажность
54
Количество подъездов
1
Материал постройки
Монолитный
Материал перекрытий
Монолитные
Отопление
Центральное
Пассажирских лифтов
1
Грузовых лифтов
1
Парковка
Многоуровневая
Расположение
Россия, Москва, Огородный проезд, 4/2
Бутырская
3 мин.
Бутырская
3 мин.
Дмитровская
20 мин.
Марьина Роща
20 мин.
Фонвизинская
20 мин.
Ипотечный калькулятор
Заполните 1 анкету — получите предложения от десятков банков на специальных условиях
Программа ипотеки
Стоимость жилья, ₽
Первый взнос, ₽
Срок кредита
от 5.75%
Ставка
от 232 903 ₽
Платеж в месяц
Расчёт носит информационный характер и не является публичной офертой
Консультант по новостройкам
37 021 212 ₽
575 758 ₽/м²













































