Продается 3-комн. квартира, 137.6 м²
Россия, Москва, Дубининская улица, 59Б
Тульская
15 мин.
137.6 м²
Общая площадь
48.7 м²
Жилая площадь
41 из 42
Этаж
Описание
В комплексе предложено множество планировочных решений: в наличии квартиры, как классического типа, так и европланировки. На последних этажах расположены пентхаусы. Из окон квартир открывается вид на «Москва-Сити», исторический центр Москвы и Москва-реку. Они сдаются с подчистовой отделкой, панорамным остеклением и высотой потолков 3 м.
Первые этажи отведены под коммерческие помещения. Для автовладельцев предусмотрен подземный паркинг на 372 места с автомойкой. Внутренний двор благоустроен и закрыт от автомобилей и случайных прохожих.
Жилой комплекс «Павелецкая Сити» расположится в Даниловском районе Москвы. Рядом расположены Данилов монастырь, Даниловский рынок, «Павелецкая Плаза», «Вивальди Плаза», театры и Нескучный сад. До Садового кольца на автомобиле можно добраться за 5 минуты. Метро «Павелецкая», «Добрынинская» и «Серпуховская» находится в 15 минутах пешком.
О квартире
Общая площадь
137.6 м²
Жилая площадь
48.7 м²
Площадь комнат
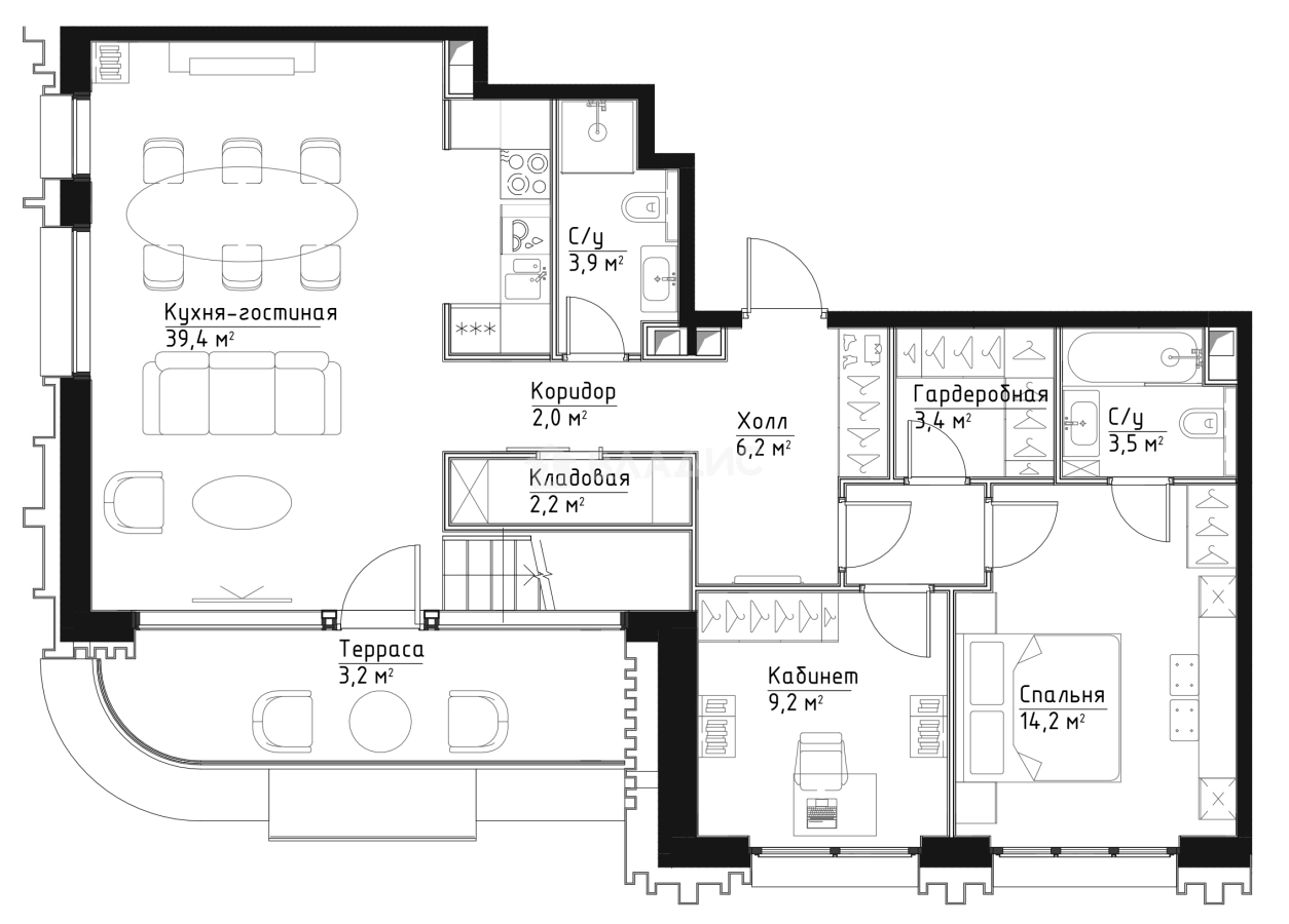
9.2+14.2+10.7+14.6 м²
Высота потолков
3 м
Подъезд
1
Этаж
41
Окна выходят
На улицу
О доме
Год постройки
2023
Этажность
42
Количество подъездов
1
Материал постройки
Монолитный
Материал перекрытий
Монолитные
Отопление
Центральное
Пассажирских лифтов
1
Грузовых лифтов
1
Парковка
Подземная
Расположение
Россия, Москва, Дубининская улица, 59Б
Тульская
15 мин.
Серпуховская
15 мин.
Павелецкая
17 мин.
Павелецкая
19 мин.
Павелецкая
19 мин.
Добрынинская
19 мин.
Добрынинская
19 мин.
Автозаводская
21 мин.
Ипотечный калькулятор
Заполните 1 анкету — получите предложения от десятков банков на специальных условиях
Программа ипотеки
Стоимость жилья, ₽
Первый взнос, ₽
Срок кредита
от 5.75%
Ставка
от 695 197 ₽
Платеж в месяц
Расчёт носит информационный характер и не является публичной офертой
Похожие объекты





















5-комн. квартира, 134 м², 41/42 эт.
Тульская
15 мин.





















5-комн. квартира, 141,2 м², 32/39 эт.
Тульская
14 мин.





















4-комн. квартира, 139,7 м², 32/39 эт.
Тульская
14 мин.





















5-комн. квартира, 134,4 м², 41/42 эт.
Тульская
15 мин.
Консультант по новостройкам
110 505 374 ₽
803 092 ₽/м²



































































