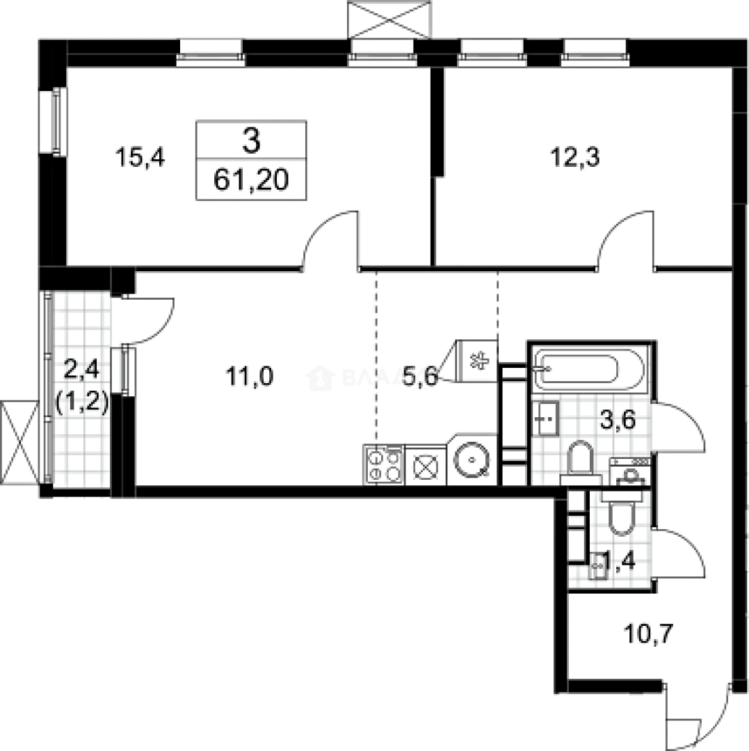
Продается 3-комн. квартира, 60 м²
Россия, Москва, Новомосковский административный округ, район Коммунарка, жилой комплекс Скандинавия, 37.2.3
Потапово
6 мин.
60 м²
Общая площадь
27.7 м²
Жилая площадь
16.6 м²
Площадь кухни
12 из 18
Этаж
Описание
Из окон открываются виды на зеленые зоны. Квартиры передаются дольщикам без отделки, также в некоторых корпусах застройщик предлагает чистовую отделку на выбор в трех вариантах: «Скандинавское утро», «Классический стиль», «Вечер в Скандинавии».
В состав объекта входят детский сад и школа, а также подземный паркинг. На территории жилого комплекса находится собственный парк для отдыха и спорта с 20 многовековыми дубами. Во дворе расположены прогулочная аллея и выезд на велосипедную дорожку длиной в 15 км. Напротив дома находятся благоустроенные зоны отдыха у ручьев и пруда. Также в составе объекта есть торгово-общественный комплекс, собственная баня у леса и SPA-центр.
Жилой квартал окружен лесными массивами, для жителей предусмотрен собственный выход в Бутовский лесопарк. В пешей доступности находятся продуктовые магазины, спортивные и медицинские центры. В 10 минутах транспортом расположен ТРЦ «МЕГА Тёплый стан», где работают «Ашан» и «Икеа». Выезд на МКАД, а также метро «Тёплый Стан» и «Коммунарка» находится в 20 минутах транспортом. В 2024 году в 5 минутах пешком от комплекса будет открыто метро «Потапово».
О квартире
Общая площадь
60 м²
Жилая площадь
27.7 м²
Площадь кухни
16.6 м²
Площадь комнат
15.4+12.3 м²
Высота потолков
2.99 м
Подъезд
1
Этаж
12
Окна выходят
На улицу
О доме
Год постройки
2025
Этажность
18
Количество подъездов
1
Материал постройки
Кирпично-монолитный
Материал перекрытий
Монолитные
Отопление
Центральное
Пассажирских лифтов
1
Грузовых лифтов
1
Парковка
Подземная
Расположение
Россия, Москва, Новомосковский административный округ, район Коммунарка, жилой комплекс Скандинавия, 37.2.3
Потапово
6 мин.
Новомосковская (Коммунарка)
23 мин.
Бунинская аллея
27 мин.
Улица Горчакова
4 мин.
Ольховая
4 мин.
Ипотечный калькулятор
Заполните 1 анкету — получите предложения от десятков банков на специальных условиях
Программа ипотеки
Стоимость жилья, ₽
Первый взнос, ₽
Срок кредита
от 5.75%
Ставка
от 100 504 ₽
Платеж в месяц
Расчёт носит информационный характер и не является публичной офертой
Похожие объекты















2-комн. квартира, 51 м², 17/23 эт.
Коммунарка
27 мин.















2-комн. квартира, 64,9 м², 14/16 эт.
Коммунарка
28 мин.















2-комн. квартира, 68,8 м², 6/16 эт.
Коммунарка
28 мин.















2-комн. квартира, 63,8 м², 11/23 эт.
Новомосковская
27 мин.
Консультант по новостройкам
15 975 587 ₽
266 260 ₽/м²













