Продается 4-комн. квартира, 64.9 м²
Россия, Москва, Новомосковский административный округ, район Коммунарка, жилой комплекс Скандинавия, 37.2.1
Потапово
6 мин.
64.9 м²
Общая площадь
28.6 м²
Жилая площадь
16.5 м²
Площадь кухни
13 из 18
Этаж
Описание
Из окон открываются виды на зеленые зоны. Квартиры передаются дольщикам без отделки, также в некоторых корпусах застройщик предлагает чистовую отделку на выбор в трех вариантах: «Скандинавское утро», «Классический стиль», «Вечер в Скандинавии».
В состав объекта входят детский сад и школа, а также подземный паркинг. На территории жилого комплекса находится собственный парк для отдыха и спорта с 20 многовековыми дубами. Во дворе расположены прогулочная аллея и выезд на велосипедную дорожку длиной в 15 км. Напротив дома находятся благоустроенные зоны отдыха у ручьев и пруда. Также в составе объекта есть торгово-общественный комплекс, собственная баня у леса и SPA-центр.
Жилой квартал окружен лесными массивами, для жителей предусмотрен собственный выход в Бутовский лесопарк. В пешей доступности находятся продуктовые магазины, спортивные и медицинские центры. В 10 минутах транспортом расположен ТРЦ «МЕГА Тёплый стан», где работают «Ашан» и «Икеа». Выезд на МКАД, а также метро «Тёплый Стан» и «Коммунарка» находится в 20 минутах транспортом. В 2024 году в 5 минутах пешком от комплекса будет открыто метро «Потапово».
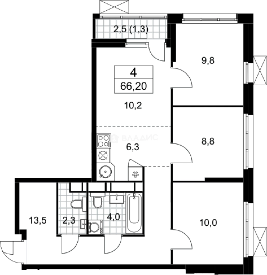
О квартире
Общая площадь
64.9 м²
Жилая площадь
28.6 м²
Площадь кухни
16.5 м²
Площадь комнат
9.8+8.8+10 м²
Высота потолков
2.99 м
Подъезд
1
Этаж
13
Окна выходят
На улицу
О доме
Год постройки
2025
Этажность
18
Количество подъездов
1
Материал постройки
Кирпично-монолитный
Материал перекрытий
Монолитные
Отопление
Центральное
Пассажирских лифтов
1
Грузовых лифтов
1
Парковка
Подземная
Расположение
Россия, Москва, Новомосковский административный округ, район Коммунарка, жилой комплекс Скандинавия, 37.2.1
Потапово
6 мин.
Новомосковская (Коммунарка)
24 мин.
Бунинская аллея
27 мин.
Улица Горчакова
4 мин.
Ольховая
4 мин.
Ипотечный калькулятор
Заполните 1 анкету — получите предложения от десятков банков на специальных условиях
Программа ипотеки
Стоимость жилья, ₽
Первый взнос, ₽
Срок кредита
от 5.75%
Ставка
от 111 231 ₽
Платеж в месяц
Расчёт носит информационный характер и не является публичной офертой
Похожие объекты












2-комн. квартира, 55,5 м², 2/17 эт.
Потапово
14 мин.












3-комн. квартира, 66,9 м², 15/18 эт.
Потапово
5 мин.











4-комн. квартира, 65 м², 11/18 эт.
Потапово
6 мин.












4-комн. квартира, 64,9 м², 15/18 эт.
Потапово
6 мин.
Консультант по новостройкам
17 680 763 ₽
272 431 ₽/м²













