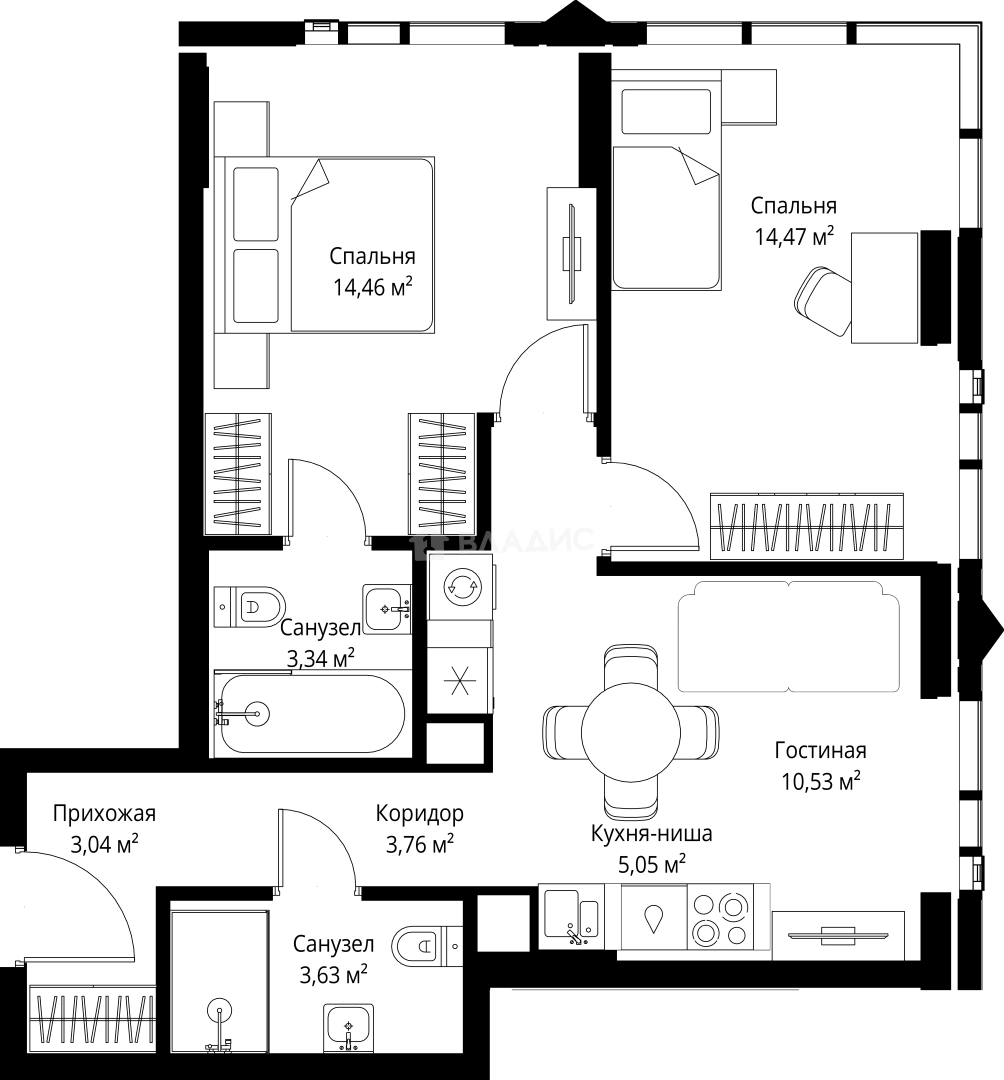
Продается 2-комн. квартира, 58.28 м²
Россия, Москва, 3-й Силикатный проезд, 10
Хорошево
4 мин.
58.28 м²
Общая площадь
28.93 м²
Жилая площадь
36 из 57
Этаж
Описание
В ЖК «Jois» предложено множество планировочных решений от студий до 3-комнатных квартир европейского формата с просторной кухней-гостиной. Доступны также эксклюзивные лоты: двухуровневые пентхаусы со вторым светом и сауной, квартиры с мастер-спальней, квартиры с открытыми террасами с зоной для камина, джакузи или барбекю. На террасах выполнено озеленение. Квартиры сдаются с подчистовой отделкой, панорамным остеклением и высокими потолками от 2,9 до 6 метров.
В проекте разработано многоуровневое благоустройство территории с всесезонным озеленением и грамотным зонированием. Оборудованы зоны отдыха, детские площадки, зоны для пикника, площадка для выгула собак, есть променад у воды и парящий мост со смотровой площадкой. На территории есть все для занятий спортом на открытом воздухе. Во внутреннем пространстве комплекса расположены площадки для футбола, баскетбола, волейбола, зона со столами для игры в настольный теннис, современные спортивные тренажеры. Также есть собственный фитнес-центр с панорамным бассейном и джакузи под открытым небом.
В ЖК «Jois» расположен перспективном районе Хорошево-Мневники, между деловым центром города и природными зонами. В пешей доступности от комплекса работают продовольственные магазины, ТРЦ, кафе, рестораны, фитнес-центры, дошкольные учреждения, школы и ВУЗы. Рядом несколько крупных парков: Филевский парк, Серебряный бор, Березовая роща. Метро «Хорошево» в 5 минутах пешком.
О квартире
Общая площадь
58.28 м²
Жилая площадь
28.93 м²
Подъезд
1
Этаж
36
Окна выходят
На улицу
О доме
Год постройки
2027
Этажность
57
Количество подъездов
1
Материал постройки
Монолитный
Материал перекрытий
Монолитные
Отопление
Центральное
Парковка
Подземная
Расположение
Россия, Москва, 3-й Силикатный проезд, 10
Хорошево
4 мин.
Полежаевская
9 мин.
Хорошевская
10 мин.
Зорге
19 мин.
Шелепиха
26 мин.
ЦСКА
27 мин.
Беговая
29 мин.
Ипотечный калькулятор
Заполните 1 анкету — получите предложения от десятков банков на специальных условиях
Программа ипотеки
Стоимость жилья, ₽
Первый взнос, ₽
Срок кредита
от 5.75%
Ставка
от 242 792 ₽
Платеж в месяц
Расчёт носит информационный характер и не является публичной офертой
Консультант по новостройкам
38 593 016 ₽
662 200 ₽/м²











































