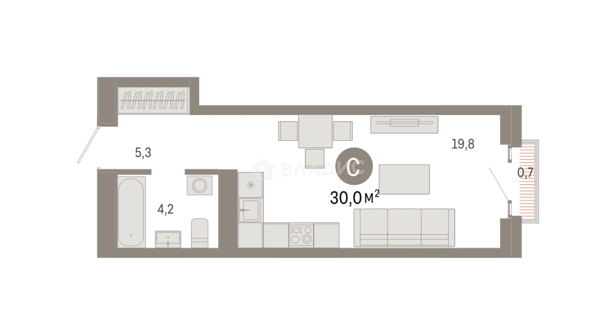
Продается Студия, 30 м²
Россия, Москва, Тагильская улица, 6/1
Бульвар Рокоссовского
15 мин.
30 м²
Общая площадь
20.2 м²
Жилая площадь
4.9 м²
Площадь кухни
28 из 31
Этаж
Описание
В проекте представлено множество планировочных решений — от студий до просторных 4-х комнатных квартир. Все лоты сдаются с подчистовой отделкой, высотой потолков до 2,7 метров и увеличенными окнами.
Территория комплекса благоустроена и озеленена: имеется система контроля доступа, открытые террасы на крышах, для автовладельцев предусмотрен подземный паркинг.
Жилой комплекс расположен в районе с хорошо развитой инфраструктурой. В пешей доступности имеется все необходимое: продовольственные магазины, медицинские и образовательные учреждения, аптеки, кафе и рестораны.
О квартире
Общая площадь
30 м²
Жилая площадь
20.2 м²
Площадь кухни
4.9 м²
Площадь комнат
20.1 м²
Высота потолков
2.7 м
Подъезд
3
Этаж
28
Окна выходят
На улицу
О доме
Год постройки
2027
Этажность
31
Количество подъездов
7
Материал постройки
Кирпично-монолитный
Материал перекрытий
Ж/б плиты
Отопление
Центральное
Пассажирских лифтов
1
Грузовых лифтов
1
Парковка
Подземная
Расположение
Россия, Москва, Тагильская улица, 6/1
Бульвар Рокоссовского
15 мин.
Локомотив
18 мин.
Бульвар Рокоссовского
18 мин.
Черкизовская
19 мин.
Щелковская
4 мин.
Партизанская
4 мин.
Измайлово
4 мин.
Преображенская площадь
5 мин.
Ипотечный калькулятор
Заполните 1 анкету — получите предложения от десятков банков на специальных условиях
Программа ипотеки
Стоимость жилья, ₽
Первый взнос, ₽
Срок кредита
от 5.75%
Ставка
от 92 102 ₽
Платеж в месяц
Расчёт носит информационный характер и не является публичной офертой
Консультант по новостройкам
14 640 000 ₽
488 000 ₽/м²
































