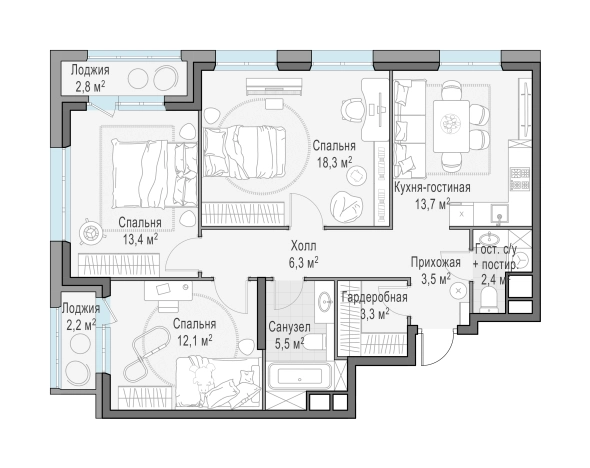
Продается 3-комн. квартира, 70.4 м²
Россия, Москва, Новомосковский административный округ, район Коммунарка, квартал № 70, жилой комплекс 1-й Саларьевский
Саларьево
8 мин.
70.4 м²
Общая площадь
32.7 м²
Жилая площадь
15.6 м²
Площадь кухни
13 из 21
Этаж
Описание
В жилом комплексе представлены квартиры различных планировок: от студий до 4‑х комнатных квартир. Отделка может быть выполнена в подчистовом варианте или с чистовой отделкой. В каждой квартире предусмотрены просторные балконы и стандартные окна, обеспечивающие хорошее естественное освещение. Высота потолков от 2,84 м. Оснащение квартир включает современные инженерные системы и качественные строительные материалы.
Внутренняя инфраструктура комплекса включает школы и детские сады на территории, детские игровые площадки, спортивные зоны и места для отдыха. В проекте также предусмотрены магазины, аптеки и другие объекты коммерческой инфраструктуры. Для безопасности жителей территория комплекса огорожена и оборудована системами видеонаблюдения и круглосуточной охраной. Для автовладельцев предусмотрены подземные и открытые паркинги.
Жилой комплекс расположен в районе с хорошо развитой инфраструктурой. В непосредственной близости от комплекса находятся ТРЦ «Саларис», гипермаркет «Глобус», школы и детские сады. Также удобная транспортная доступность обеспечивается близостью к основным магистралям, таким как Киевское шоссе и МКАД. Жители комплекса имеют доступ к многочисленным паркам и лесопарковым зонам, таким как Мещерский парк и Ульяновский лесопарк. Метро «Саларьево» в 10 минутах ходьбы.
О квартире
Общая площадь
70.4 м²
Жилая площадь
32.7 м²
Площадь кухни
15.6 м²
Подъезд
4
Этаж
13
Окна выходят
На улицу
Ремонт
Без отделки
Балкон
Есть
О доме
Год постройки
2027
Этажность
21
Количество подъездов
1
Материал постройки
Монолитный
Материал перекрытий
Монолитные
Отопление
Центральное
Парковка
Подземная
Расположение
Россия, Москва, Новомосковский административный округ, район Коммунарка, квартал № 70, жилой комплекс 1-й Саларьевский
Саларьево
8 мин.
Румянцево
11 мин.
Тютчевская
5 мин.
Тропарево
5 мин.
Филатов луг
5 мин.
Генерала Тюленева
5 мин.
Солнцево
5 мин.
Ипотечный калькулятор
Заполните 1 анкету — получите предложения от десятков банков на специальных условиях
Программа ипотеки
Стоимость жилья, ₽
Первый взнос, ₽
Срок кредита
от 5.75%
Ставка
от 149 963 ₽
Платеж в месяц
Расчёт носит информационный характер и не является публичной офертой
Похожие объекты










3-комн. квартира, 80,7 м², 17/22 эт.
Филатов луг
23 мин.










3-комн. квартира, 80,7 м², 16/22 эт.
Филатов луг
23 мин.










3-комн. квартира, 80,7 м², 18/22 эт.
Филатов луг
23 мин.










3-комн. квартира, 80,9 м², 10/22 эт.
Филатов луг
23 мин.
Консультант по новостройкам
23 837 440 ₽
338 600 ₽/м²





