Продается 2-комн. квартира, 62.9 м²
Россия, Москва, Новомосковский административный округ, район Коммунарка, жилой комплекс 1-й Ясеневский, 1
Корниловская
9 мин.
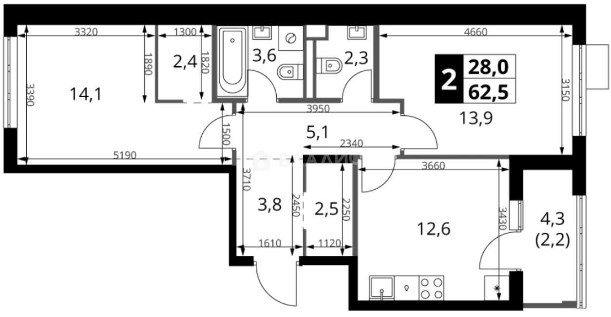
62.9 м²
Общая площадь
28.1 м²
Жилая площадь
12.7 м²
Площадь кухни
3 из 18
Этаж
Описание
В ЖК «1-й Ясеневский» предложено множество планировочных решений: от компактных студий до 3-комнатных квартир. В том числе уникальные форматы: с окном в гардеробной, мастер-спальней и высокими потолками до 3,12 метра. Все квартиры сдаются с чистовой отделкой или отделкой White box.
На закрытой территории «1-го Ясеневского» размещены: зеленый освещенный бульвар со спортивными и игровыми площадками, зоны отдыха, система велодорожек, маленькая городская площадь, кафе, пекарни и кофе поинты. Изюминкой благоустройства являются фруктовые деревья во дворах и городские сады. Для владельцев автомобилей предусмотрен наземный многоуровневый паркинг.
ЖК «1-й Ясеневский» расположен на на территории Новой Москвы, на улице Адмирала Корнилова, в 1 км от МКАД и в 500 метрах от Калужского шоссе. Рядом с комплексом работают современная школа IT-кластером и бассейном и 2 детских сада. В пешей доступности расположены Троицкий лесопарк и парк-усадьба Троицкое.
О квартире
Общая площадь
62.9 м²
Жилая площадь
28.1 м²
Площадь кухни
12.7 м²
Площадь комнат
14.1+13.9 м²
Высота потолков
2.7199999999999998 м
Подъезд
5
Этаж
3
Окна выходят
На улицу
Ремонт
White box
Балкон
Есть
О доме
Год постройки
2025
Этажность
18
Количество подъездов
8
Материал постройки
Панельный
Материал перекрытий
Ж/б плиты
Отопление
Центральное
Парковка
Многоуровневая
Расположение
Россия, Москва, Новомосковский административный округ, район Коммунарка, жилой комплекс 1-й Ясеневский, 1
Корниловская
9 мин.
Тютчевская
19 мин.
Генерала Тюленева
30 мин.
Теплый Стан
4 мин.
Прокшино
5 мин.
Коммунарка
5 мин.
Саларьево
5 мин.
Румянцево
5 мин.
Ипотечный калькулятор
Заполните 1 анкету — получите предложения от десятков банков на специальных условиях
Программа ипотеки
Стоимость жилья, ₽
Первый взнос, ₽
Срок кредита
от 5.75%
Ставка
от 146 531 ₽
Платеж в месяц
Расчёт носит информационный характер и не является публичной офертой
Похожие объекты







2-комн. квартира, 68,3 м², 11/24 эт.
Саларьево
4 мин.







2-комн. квартира, 68,4 м², 16/24 эт.
Саларьево
4 мин.







2-комн. квартира, 55,3 м², 11/24 эт.
Саларьево
4 мин.







2-комн. квартира, 68,3 м², 6/24 эт.
Саларьево
4 мин.
Консультант по новостройкам
23 291 870 ₽
370 300 ₽/м²








