Продается 2-комн. квартира, 57.8 м²
Россия, Москва, Волоколамское шоссе, 95/1к7
Мякинино
18 мин.
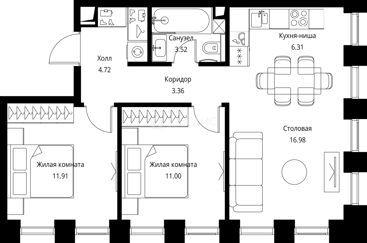
57.8 м²
Общая площадь
22.91 м²
Жилая площадь
19 из 26
Этаж
Описание
В комплексе предложено множество планировочных решений: в наличии квартиры, как классического типа, так и европланировки. Квартиры сдаются с подчистовой отделкой, высотой потолков 3 м и панорамным остеклением в пол.
Дворы закрыты от автомобилей и случайных прохожих. Для автовладельцев предусмотрен подземный паркинг на 710 мест. Территория комплекса благоустроена: собственная набережная, прогулочная зона, зеленый двор. На первых этажах зданий разместятся кафе, салон красоты, аптека, магазины.
ЖК «City Bay» находится на пересечении МКАД и Волоколамского шоссе. Выезд на МКАД в 5 минутах транспортом, метро «Трикотажная» — 10 минут пешком.
О квартире
Общая площадь
57.8 м²
Жилая площадь
22.91 м²
Площадь комнат
11+11.91 м²
Высота потолков
3.15 м
Подъезд
1
Этаж
19
Окна выходят
На улицу
О доме
Год постройки
2027
Этажность
26
Количество подъездов
1
Материал постройки
Монолитный
Материал перекрытий
Монолитные
Отопление
Центральное
Пассажирских лифтов
1
Грузовых лифтов
1
Парковка
Подземная
Расположение
Россия, Москва, Волоколамское шоссе, 95/1к7
Мякинино
18 мин.
Волоколамская
19 мин.
Тушинская
25 мин.
Спартак
28 мин.
Ипотечный калькулятор
Заполните 1 анкету — получите предложения от десятков банков на специальных условиях
Программа ипотеки
Стоимость жилья, ₽
Первый взнос, ₽
Срок кредита
от 5.75%
Ставка
от 175 692 ₽
Платеж в месяц
Расчёт носит информационный характер и не является публичной офертой
Похожие объекты






2-комн. квартира, 51,6 м², 28/44 эт.
Тушинская
17 мин.









2-комн. квартира, 56,5 м², 31/44 эт.
Тушинская
17 мин.






2-комн. квартира, 51,6 м², 14/44 эт.
Тушинская
17 мин.




2-комн. квартира, 54,7 м², 34/44 эт.
Тушинская
17 мин.
Консультант по новостройкам
27 927 110 ₽
483 168 ₽/м²











