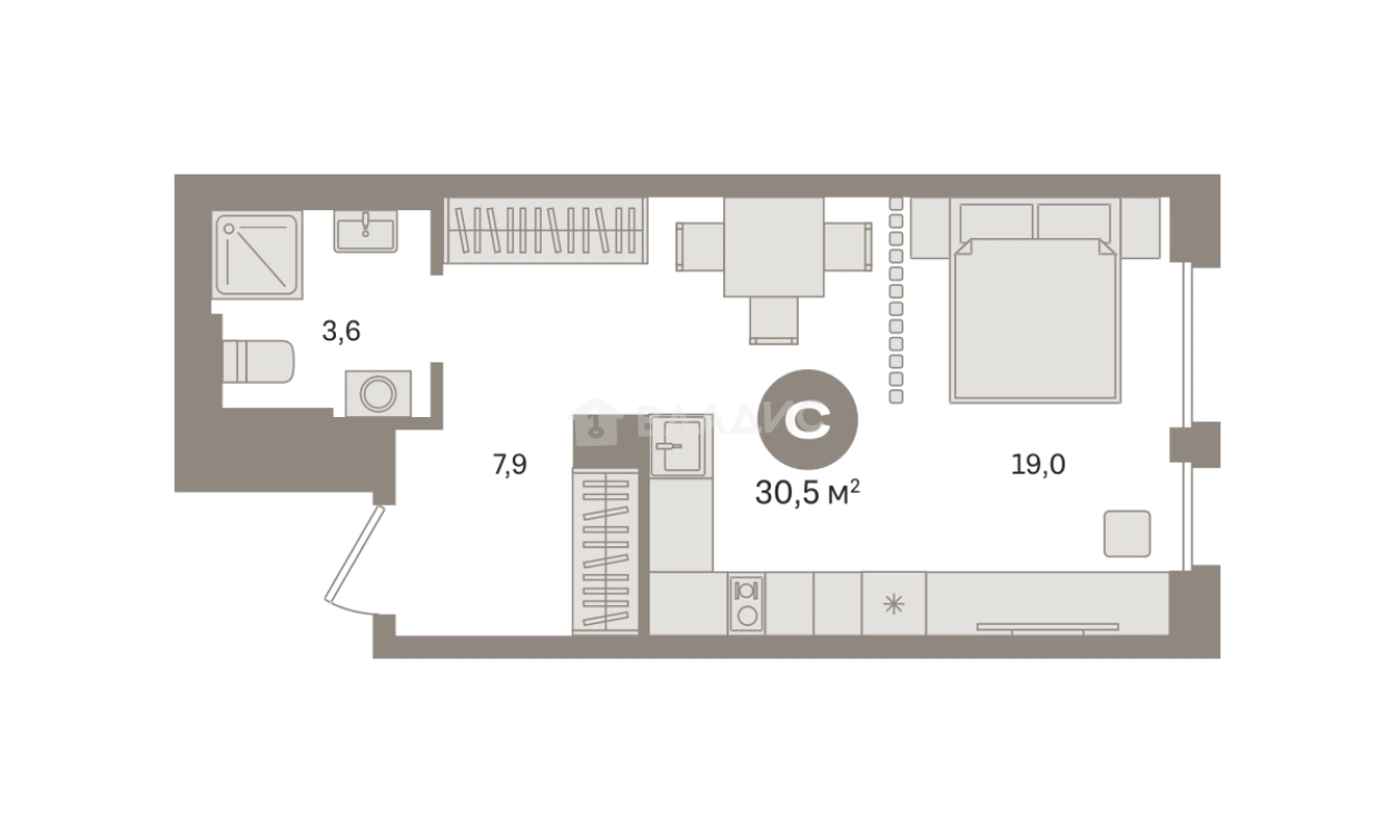
Продается Студия, 30.47 м²
Россия, Москва, жилой комплекс Квартал Герцена
Домодедовская
4 мин.
30.47 м²
Общая площадь
21.76 м²
Жилая площадь
5.08 м²
Площадь кухни
16 из 23
Этаж
Описание
В ЖК «Квартал Герцена» предложено множество планировочных решений: от компактных студий до четырехкомнатных квартир европейского формата. Есть варианты с гардеробными, угловым остеклением, а также квартиры с просторными террасами на вторых и последних этажах. Все квартиры сдаются с готовой чистовой отделкой в светлых и нейтральных тонах, есть возможность заказать кухню, мебель, текстиль и аксессуары. Все лоты — с увеличенными окнами и высокими потолками от 3,15 метра.
Комплекс имеет собственную инфраструктуру, которая включает: школу на 1075 учеников, 2 детских сада на 200 и 350 мест и поликлинику. Первые этажи корпусов занимают коммерческие помещения. Для владельцев автомобилей предусмотрен подземный паркинг на 333 места.
ЖК «Квартал Герцена» находится в Районе Восточное Бирюлево с развитой социальной инфраструктурой: рядом есть магазины, рестораны, аптеки, супермаркет «Лента», торговые центры «Брендсити», «Конструктор», «Vegas». Рядом с комплексом находятся Бирюлевский лесопарк, Герценский парк и пруд с благоустроенной пляжной зоной. Расстояние от жилого комплекса до МКАД менее 1 километра. В 10 минутах пути на автомобиле распложена ж/д станция «Бирюлево пассажирская». До международного аэропорта «Домодедово» — 30 минут езды, до ближайшего метро «Царицыно» — 15 минут. В 2025-2026 году в пешей доступности от комплекса планируется открытие новой станции метро «Лебедянская».
О квартире
Общая площадь
30.47 м²
Жилая площадь
21.76 м²
Площадь кухни
5.08 м²
Площадь комнат
18.99 м²
Высота потолков
3.15 м
Подъезд
2
Этаж
16
Окна выходят
На улицу
О доме
Год постройки
2026
Этажность
23
Количество подъездов
5
Материал постройки
Кирпично-монолитный
Материал перекрытий
Ж/б плиты
Отопление
Центральное
Пассажирских лифтов
1
Грузовых лифтов
1
Парковка
Подземная
Расположение
Россия, Москва, жилой комплекс Квартал Герцена
Домодедовская
4 мин.
Орехово
5 мин.
Зябликово
6 мин.
Красногвардейская
6 мин.
Царицыно
7 мин.
Шипиловская
7 мин.
Ипотечный калькулятор
Заполните 1 анкету — получите предложения от десятков банков на специальных условиях
Программа ипотеки
Стоимость жилья, ₽
Первый взнос, ₽
Срок кредита
от 5.75%
Ставка
от 71 656 ₽
Платеж в месяц
Расчёт носит информационный характер и не является публичной офертой
Похожие объекты







Студия, 30,5 м², 4/23 эт.
Домодедовская
4 мин.







Студия, 30,5 м², 5/23 эт.
Домодедовская
4 мин.






Студия, 26,1 м², 7/23 эт.
Домодедовская
4 мин.







Студия, 26,1 м², 15/23 эт.
Домодедовская
4 мин.
Консультант по новостройкам
11 390 000 ₽
373 811 ₽/м²








