ЖК Ювента в Ленинградской области
Россия, Ленинградская область, Всеволожский район, Бугры, Нижняя улица, 5к3
Девяткино
10 мин.
4 кв. 2023
Срок сдачи
Описание
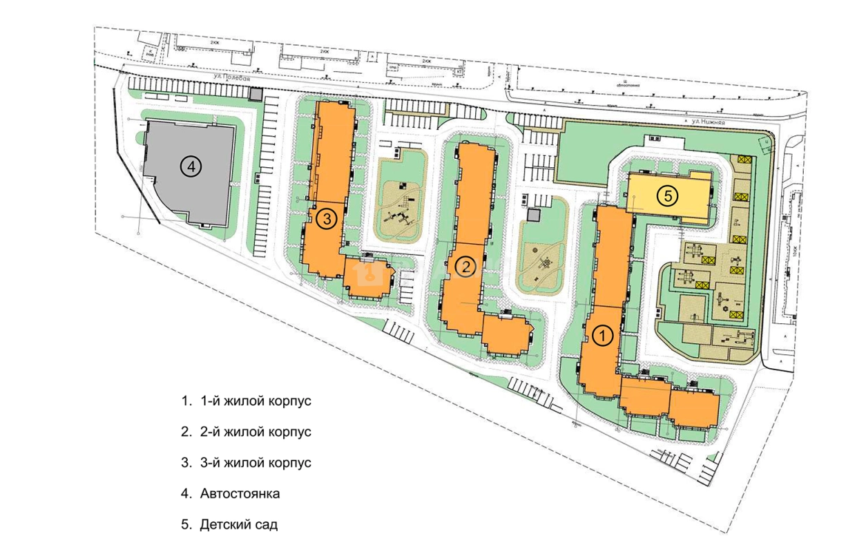
В жилом комплексе «Ювента» представлен широкий ассортимент квартир: просторные рациональные планировки студий и квартир классического типа от 1 до 3 комнат. Сдаются они без отделки. Высота потолков достигает 2,76 метра.
Территория ЖК «Ювента» благоустроена. Во дворах расположены детские и спортивные площадки. На первых этажах находятся коммерческие помещения. В проект входит свой детский сад. Для владельцев автомобилей продуман паркинг.
В пяти минутах транспортом работают крупные торгово-развлекательные центры: «Северный молл», «Гранд-Каньон», а также ТРЦ «МЕГА Парнас», «Ашан», «OBI» и «IKEA». В пешей доступности находится гипермаркет «Лента». Выезд на КАД расположен в трех минутах транспортом, станция метро «Девяткино» – в 10 минутах.
О жилом комплексе
Расположение
Россия, Ленинградская область, Всеволожский район, Бугры, Нижняя улица, 5к3
Девяткино
10 мин.
Ипотечный калькулятор
Заполните 1 анкету — получите предложения от десятков банков на специальных условиях
Программа ипотеки
Стоимость жилья, ₽
Первый взнос, ₽
Срок кредита
от 5.75%
Ставка
от 29 254 ₽
Платеж в месяц
Расчёт носит информационный характер и не является публичной офертой
Другие ЖК рядом







































