Купить дом у метро Парнас на улице Юрочкин переулок в Ленинградской области
Россия, Ленинградская область, Всеволожский район, Бугровское городское поселение, деревня Мистолово, Юрочкин переулок, 13Г
Парнас
12 мин.
179.9 м²
Площадь дома
8 сот
Площадь участка
Газобетонный блок
Материал постройки
2
Этажей
Описание
- современный дом из газобетона с дополнительным утеплением фасада
- самая близкая локация к городу
- 100% ИЖС (индивидуальная жилая застройка)
- отличная планировка и метраж
Для вас уже готовы:
Двухэтажный дом, общей площадью 179,9 м.кв. с закрытым теплым контуром на участке 8 сот. (ИЖС)
Выполнена внутренняя планировка помещений, при этом, на сегодняшнем этапе её можно доработать по своему усмотрению.
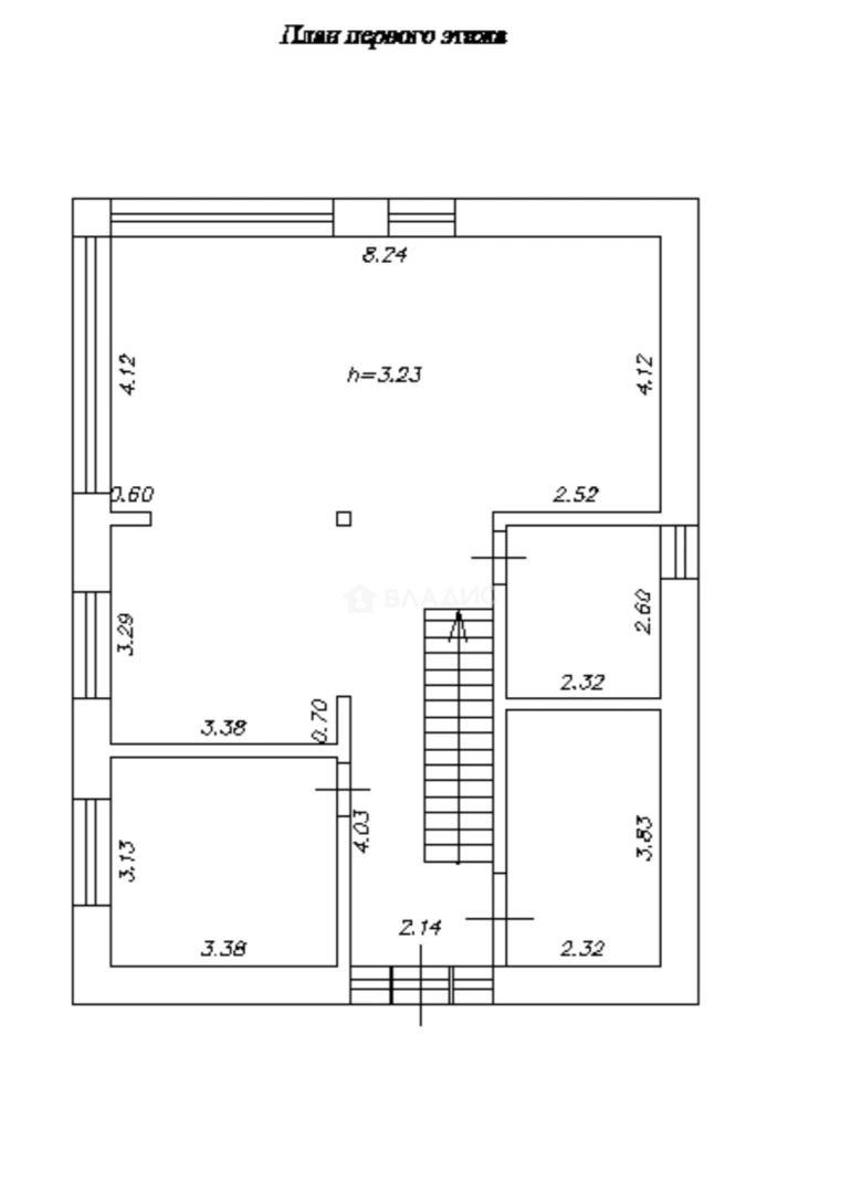
На первом этаже расположены:
- просторная кухня-гостиная с панорамным остеклением и выделенной зоной для кухни 61,7 кв.м.
- помещение для санузла/сауны 6,4 кв.м.
- котельная 8,9 кв.м.
- отдельная комната для гостевой спальни или кабинета 11 кв.м.
На втором этаже по проекту расположены:
- мастер-спальня 25 кв.м. с сан-узлом 10,2 кв.м.
- две отдельные спальни по 12 кв.м. с возможностью перепланировки под собственное решение,
- отдельный с/у 11 кв.м.
- гардеробная 5,08 кв.м.
Участок разработан, сохранен естественный ландшафт и часть лесного массива (березы и ели). Ведутся работы по благоустройству территории.
К дому ведет асфальтированная дорога, на въезде установлен автоматический шлагбаум с дистанционным управлением.
О качестве строительства:
Фундамент выполнен из монолитной плиты толщиной 35 см, что обеспечивает надежность и долговечность.
Стены из газобетонных плит с утеплителем гарантируют тепло и комфорт в любое время года.
Фасад отделан кирпичом, а межэтажные перекрытия выполнены из бетонных плит толщиной 20 см, что обеспечивает отличную звукоизоляцию.
В доме установлено панорамное остекление из высококачественных пластиковых энергосберегающих окон, что позволяет наслаждаться природными пейзажами и наполняет пространство светом.
Инженерные сети и коммуникации:
Водоснабжение обеспечивается собственной скважиной
Канализация — станция биологической очистки.
Электричество мощностью 15 кВт
Газ по границе участка.
Расположение дома также не оставит вас равнодушным: от севера города (ст.м. Парнас) 15 минут на автомобиле, до КАД - 5-7 минут, осуществляется движение общественного транспорта.
Поселок представляет собой отдельные участки ИЖС вдали от шумных трасс. Дом расположен в тихом и уединенном месте, в самой дальней части небольшого переулка, сквозного проезда нет.
Развитая инфраструктура: в непосредственной близости находятся горнолыжный курорт "Охта Парк", СПА центры, банные комплексы премиум класса, конный клуб, торговый комплекс "Мега Парнас", а также сетевые магазины, аптеки, школы и детские сады, как частные, так и государственные.
Удобная транспортная доступность делает этот дом идеальным вариантом для постоянного проживания!
ЗУ и дом зарегистрированы в ЕГРН, один взрослый собственник, документы готовы, быстрый выход на сделку.
Рассрочка на покупку до 12 мес.
Не упустите шанс стать владельцем этого уникального дома! Звоните прямо сейчас для организации просмотра!
О доме
Год постройки
2024
Этажей в доме
2
Общая площадь
179.9 м²
Жилая площадь
60 м²
Площадь кухни
61.7 м²
Площадь комнат
11+25+12+12 м²
Материал постройки
Газобетонный блок
Материал перекрытий
Монолитные
Материал кровли
Металлочерепица
Совмещенных санузлов
2
Об участке
Площадь участка
8 сот.
Статус участка
Индивидуальное жилищное строительство
Электричество
Есть
Газ
Есть
Водоснабжение
Есть
Канализация
Есть
Без благоустройства участка
Есть
Подъезд к участку
Асфальт
Расположение
Россия, Ленинградская область, Всеволожский район, Бугровское городское поселение, деревня Мистолово, Юрочкин переулок, 13Г
Парнас
12 мин.
Девяткино
12 мин.
Проспект Просвещения
14 мин.
Гражданский проспект
15 мин.
Озерки
17 мин.
Академическая
19 мин.
Политехническая
20 мин.
Удельная
20 мин.
Ипотечный калькулятор
Заполните 1 анкету — получите предложения от десятков банков на специальных условиях
Программа ипотеки
Стоимость жилья, ₽
Первый взнос, ₽
Срок кредита
от 5.75%
Ставка
от 119 531 ₽
Платеж в месяц
Расчёт носит информационный характер и не является публичной офертой
Предложите свою цену
19 000 000 ₽
105 614 ₽/м²

















