Купить дом у метро Парнас на улице Дальняя в Ленинградской области
Россия, Ленинградская область, Всеволожский район, Бугровское городское поселение, деревня Мистолово, Дальняя улица
Парнас
12 мин.
211 м²
Площадь дома
8 сот
Площадь участка
Газобетонный блок
Материал постройки
1
Этажей
Описание
Дом построен в 2024 году из качественных газобетонных блоков, перекрытия выполнены из железобетонных плит, кровля покрыта металлочерепицей.
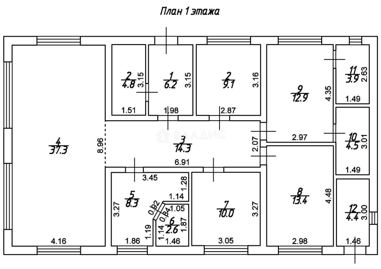
Общая площадь дома составляет 211 кв. м, из которых жилая площадь — 45,3 кв. м. В доме четыре комнаты, два совмещённых санузла, ванная комната с сауной, просторная кухня площадью 37,3 кв. м.
Дом подключён ко всем необходимым коммуникациям: электричество, водоснабжение, газ, канализация. Отопление обеспечивается индивидуальным электрическим котлом, газ подведен по границе участка.
Участок площадью 8 соток имеет статус индивидуального жилищного строительства, подъезд к участку асфальтирован. Дом идеально подходит для круглогодичного проживания.
White box ремонт даёт возможность новым владельцам воплотить свои дизайнерские идеи и создать уютное пространство по своему вкусу.
Не упустите шанс стать владельцем этого прекрасного дома в живописном районе! Звоните нам прямо сейчас, чтобы узнать больше и записаться на просмотр.
Мы гарантируем безопасную сделку и юридическую поддержку нашим Клиентам. Поможем одобрить ипотеку с сниженной ставкой.
О доме
Год постройки
2024
Этажей в доме
1
Общая площадь
211 м²
Жилая площадь
45.3 м²
Площадь кухни
37.3 м²
Площадь комнат
13,4+12,9+10+9 м²
Материал постройки
Газобетонный блок
Материал перекрытий
Ж/б плиты
Материал кровли
Металлочерепица
Совмещенных санузлов
2
Об участке
Площадь участка
8 сот.
Статус участка
Индивидуальное жилищное строительство
Электричество
Есть
Газ
Есть
Водоснабжение
Есть
Канализация
Есть
Без благоустройства участка
Есть
Подъезд к участку
Асфальт
Расположение
Россия, Ленинградская область, Всеволожский район, Бугровское городское поселение, деревня Мистолово, Дальняя улица
Парнас
12 мин.
Девяткино
14 мин.
Проспект Просвещения
15 мин.
Гражданский проспект
16 мин.
Озерки
17 мин.
Академическая
20 мин.
Удельная
21 мин.
Политехническая
21 мин.
Ипотечный калькулятор
Заполните 1 анкету — получите предложения от десятков банков на специальных условиях
Программа ипотеки
Стоимость жилья, ₽
Первый взнос, ₽
Срок кредита
от 5.75%
Ставка
от 144 066 ₽
Платеж в месяц
Расчёт носит информационный характер и не является публичной офертой
Предложите свою цену
22 900 000 ₽
108 531 ₽/м²









































































