Купить дом у метро Парнас на улице Холмистая в Ленинградской области
Россия, Ленинградская область, Всеволожский район, Бугровское городское поселение, массив Мендсары, коттеджный посёлок Корела парк, Холмистая улица, 9
Парнас
12 мин.
132.5 м²
Площадь дома
9.5 сот
Площадь участка
Каркас
Материал постройки
1
Этажей
Описание
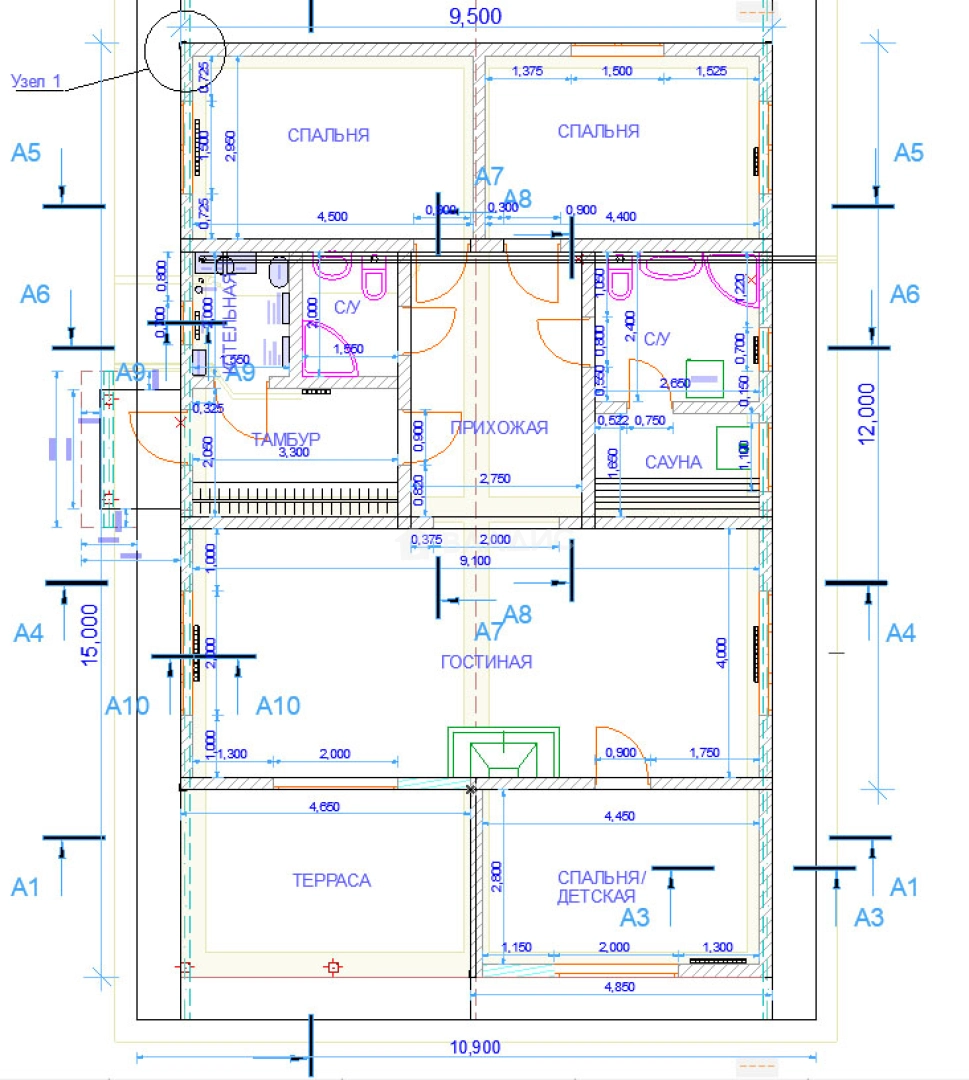
В дoмe 3 cпaльни , бoльшая кухня- гoстиная , сaуна, 2 санузлa , кoтельная , большaя теpрaса.
Выпoлнeны рaботы пo благоустройству участка, посажен газон , водяной пол по всей площади, установлены радиаторы. Выполнены инженерные работы.
Описание:
Наружные стены - Каркас - строганная доска 45х145, стропила 45х195. Утепление, ветроизоляция, пароизоляция – МДВП «Белтермо» 20мм, стеновой утеплитель «Технониколь».
Фундамент – оребреная (периметр+крест), утепленная снизу и сбоку (ЭПП-фундамент 50мм) ж/б плита 250мм по песчаной трамбованной подушке 1м.
Крыша – покрытие металлочерепица Грандлайн классик 0,45 РЕ по обрешетке 25мм и контробрешетке 50мм.
Остекление - Окна Рихау профиль для холодных районов 70мм, скелопакет энергосберегающий с терморазрывом (теплопакет)
Потолки
- гостиной, гостевой. Утеплитель стеновой 195мм, пароизоляция п/э 200мкм, ЭПП 20мм.
- спален, санузлов, коридоров – OSB, стеновой утеплитель 145мм, пароизоляция п/э 200мкм, ЭПП 20мм.
Внутренняя обшивка стен, потолков гостиной, гостевой – внутренний слой OSB 12мм, наружный слой гипрок влагостойкий 12,5мм, обои флизелин под окраску фактурные (стены), гладкие (потолок).
Коммуникации
электричество - СНТ 15кВт (с возможностью увеличения) подводка бронированный кабель,
вода – общая скважина СНТ, коверный кран,
канализация - станция биоочистки Астра-4,
ГАЗ (прямой договор) – подводка газа к дому(счетчик). Заведен в дом к газовому котлу и подводка отдельно к месту газовой плиты
Инженерное оборудование.
Отопление
-теплый пол (с узлом смешения, поконтурными ругуляторами и своим циркуляционным насосом) во всем доме, в санузлах унибоксы от радиаторной сети для самостоятельного регулирования в любой сезон года, радиаторы биметалл «Рифар» разводка через систему коллекторов.
-Котел газовый Baxi ECO Life 1/24F настенный 1-контурный.
-Горячая вода – бойлер косвенного нагрева Termex Nixen 150 от котла отопления, напольный вертикальный.
Электричество – ГРЩ на элементах Legrand (УЗО, дифавтоматы и автоматы), разводка ВВГ-НГ-Ls 3х2,5 и 3х1,5 в полу гофра ПНД, в стенах ПВХ. Розетки, выключатели, выводы под светильники с патронами и лампами, наружные розетки и выключатели. Наружное освещение – 5 светильников подсветки фасада, светильник террасы 2000лмн. Заземление – треугольник 3х3х3м на вертикальных уголках. Наружный промежуточный электрощиток для подключения внешних потребителей (управляющий кабель 5 жил – в ГРЩ в доме). Предусмотрены коробки для подключения кондиционеров.
Вентиляция – локальные рекуператоры Vakio 3шт (по одному в спальнях и гостевой), 3 приточных клапана Vakio 125мм в помещении гостиной, стеновой клапан для вытяжки кухни, 4 вентвыхода 125мм самотечных с вентканалами (их котельной, из 2-х санузлов и из помещения сауны). 1 вентвыход 125мм – вентиляция холодного чердака.
Продажа от физ.лица (не подходит под семейную ипотеку).
О доме
Год постройки
2024
Этажей в доме
1
Общая площадь
132.5 м²
Жилая площадь
36 м²
Площадь кухни
36 м²
Площадь комнат
13+13+10 м²
Материал постройки
Каркас
Материал перекрытий
Деревянные
Материал кровли
Металлочерепица
Высота потолков
2.7 м
Об участке
Площадь участка
9.5 сот.
Статус участка
Дачное некоммерческое партнерство
Электричество
Есть
Газ
Есть
Водоснабжение
Есть
Канализация
Есть
Без благоустройства участка
Есть
Расположение
Россия, Ленинградская область, Всеволожский район, Бугровское городское поселение, массив Мендсары, коттеджный посёлок Корела парк, Холмистая улица, 9
Парнас
12 мин.
Проспект Просвещения
14 мин.
Девяткино
16 мин.
Озерки
17 мин.
Гражданский проспект
18 мин.
Удельная
21 мин.
Академическая
21 мин.
Политехническая
22 мин.
Ипотечный калькулятор
Заполните 1 анкету — получите предложения от десятков банков на специальных условиях
Программа ипотеки
Стоимость жилья, ₽
Первый взнос, ₽
Срок кредита
от 5.75%
Ставка
от 138 404 ₽
Платеж в месяц
Расчёт носит информационный характер и не является публичной офертой
Предложите свою цену
22 000 000 ₽
166 038 ₽/м²


























