Купить дом на улице Ключевая в Ленинградской области
Россия, Ленинградская область, Ломоносовский район, Ропшинское сельское поселение, коттеджный посёлок На речке, Ключевая улица, 26
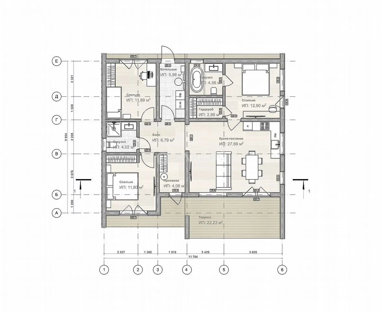
143 м²
Площадь дома
10 сот
Площадь участка
Брус
Материал постройки
1
Этажей
Описание
✨ Площадь: 143 кв. м.
🌳 Участок: 10 соток
Одноэтажный дом, постройка в современном стиле!
Дом находится в поселке коттеджном посёлке Ропшинская долина.
- Фундамент: утепленный финский фундамент с разводкой всех коммуникаций. Это очень технологичный и ТЁПЛЫЙ фундамент, который включает в себя придомовой дренаж, ливневую систему, разведение канализации воды и теплого пола по всей площади, частичную электрическую проводку.
- Бетон марки В25, намывной песок, утеплитель ТехноНиколь, трубы воды и теплого pex-a, трубы канализации ostendorf.
- Стены: выполнены по каркасной технологии из сухой строганной древесины.
- Кровля: Металлочерепица GrandLine в матовом покрытии Drap, металлическая водосточная система GrandLine
- Террасная доска: лиственница пропитанная маслом на производстве
- Окна : двухкамерный мультифункциональный стеклопакет с напылением от перегрева помещений и выгорания текстиля, профиль, покрашенный в цвет антрацит, Рехау Грацио 70мм.
- Электрика: провода ГОСТ Ввг-нг-ls в гофре, розетки и выключатели Schneider Electric Atlasdesign цвет антрацит.
- Полный инженерный пакет с готовой котельной
- Отопление
- Тёплый пол
- Внутренняя отделка пола: керамогранит с теплым полом
- Внутренняя отделка стен: комбинированная
🔑 В доме вас ждут:
🍽 Уютная кухня-гостиная с панорамными окнами и выходом на террасу, идеальная для вечерних посиделок с семьей и друзьями
💧 Помещение под бойлерную/постирочную для вашего удобства, где вы можете легко контролировать процессы работы дома
🛏 4 комнаты, дна из которых включает в себя просторную мастер спальню (собственный санузел и гардеробная), где вы сможете расслабиться после продуктивного дня
🌟 Удобства:
-Септик Астра для полноценной автономии
-Дом газифицирован, проведено электричество 15 кВт
-Профессионально уложен газон для прогулок на свежем воздухе
-Собственная скважина (современными системами фильтрации)
🚗 Парковка на 2 машины — место всегда найдется!
Не упустите свой шанс стать владельцем этого комфортного дома, идеального для жизни на природе!
О доме
Год постройки
2025
Этажей в доме
1
Общая площадь
143 м²
Жилая площадь
36.59 м²
Площадь кухни
27.69 м²
Материал постройки
Брус
Материал перекрытий
Смешанные
Материал кровли
Металлочерепица
Высота потолков
2.8 м
Совмещенных санузлов
2
Об участке
Площадь участка
10 сот.
Статус участка
Индивидуальное жилищное строительство
Электричество
Есть
Газ
Есть
Водоснабжение
Есть
Канализация
Есть
Без благоустройства участка
Есть
Подъезд к участку
Асфальт
Расположение
Россия, Ленинградская область, Ломоносовский район, Ропшинское сельское поселение, коттеджный посёлок На речке, Ключевая улица, 26
Ипотечный калькулятор
Заполните 1 анкету — получите предложения от десятков банков на специальных условиях
Программа ипотеки
Стоимость жилья, ₽
Первый взнос, ₽
Срок кредита
от 5.75%
Ставка
от 84 930 ₽
Платеж в месяц
Расчёт носит информационный характер и не является публичной офертой
Похожие объекты








































Дом, 143 м², 10 сот.
Предложите свою цену
13 500 000 ₽
94 406 ₽/м²






















































































































