Купить дом у метро Улица Дыбенко на улице Николаевская в Ленинградской области
Россия, Ленинградская область, Всеволожский район, Колтушское городское поселение, коттеджный посёлок Колтуши-2, Николаевская улица, 111
Улица Дыбенко
14 мин.
118 м²
Площадь дома
8 сот
Площадь участка
Пеноблок
Материал постройки
1
Этажей
Описание
Цена: 14 500 000р
⸻
📍 Расположение
Всеволожский район, п. Колтуши — тихое, зелёное место с развитой инфраструктурой и удобным выездом в город.
Газ проходит по границе участка.
⸻
🏗 Характеристики дома
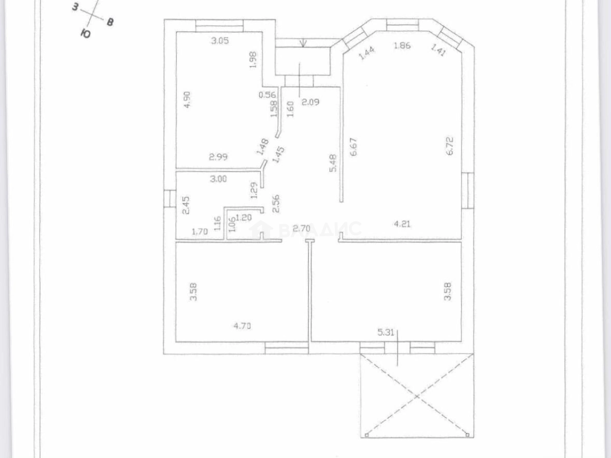
• Общая площадь: 118 м²
• Участок: 8 соток
• Фундамент: монолитная плита 45 см
• Стены: пенобетон 400, облицовка кирпичом
• Утепление: пеноплекс, с тепловым зазором
• Электричество: 15 кВт
⸻
🛋 Внутреннее оснащение
• Коттедж продаётся со всей мебелью — полностью готов к проживанию!
• На 1 этаже установлена выдвижная сборная лестница на 2 этаж
• Есть возможность сделать полноценный второй этаж площадью около 80 м²
⸻
🌿 Преимущества
✅ Качественное строительство и надёжные материалы
✅ Просторный, ухоженный участок
✅ Возможность расширения — второй этаж
✅ Удобное местоположение: рядом магазины, школы, остановки
✅ Газ — по границе участка
⸻
📞 Звоните прямо сейчас!
Дом полностью готов к проживанию — заезжай и живи!
О доме
Год постройки
2021
Этажей в доме
1
Общая площадь
118 м²
Жилая площадь
51 м²
Площадь кухни
30 м²
Площадь комнат
19+17+15 м²
Материал постройки
Пеноблок
Материал перекрытий
Деревянные
Материал кровли
Металлочерепица
Совмещенных санузлов
1
Об участке
Площадь участка
8 сот.
Статус участка
Сельское хозяйство
Электричество
Есть
Водоснабжение
Есть
Канализация
Есть
Без благоустройства участка
Есть
Подъезд к участку
Грунтовка
Расположение
Россия, Ленинградская область, Всеволожский район, Колтушское городское поселение, коттеджный посёлок Колтуши-2, Николаевская улица, 111
Улица Дыбенко
14 мин.
Проспект Большевиков
16 мин.
Ладожская
18 мин.
Пролетарская
18 мин.
Ломоносовская
19 мин.
Елизаровская
20 мин.
Рыбацкое
20 мин.
Новочеркасская
21 мин.
Ипотечный калькулятор
Заполните 1 анкету — получите предложения от десятков банков на специальных условиях
Программа ипотеки
Стоимость жилья, ₽
Первый взнос, ₽
Срок кредита
от 5.75%
Ставка
от 91 221 ₽
Платеж в месяц
Расчёт носит информационный характер и не является публичной офертой
Предложите свою цену
14 500 000 ₽
122 881 ₽/м²


























