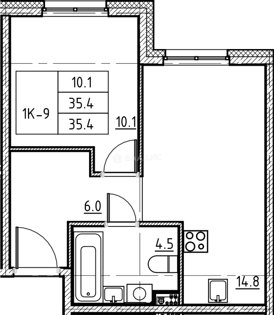
Продается 1-комн. квартира, 35.4 м²
Россия, Ленинградская область, Ломоносовский район, Аннинское городское поселение, городской посёлок Новоселье, Петропавловская улица, 13
Проспект Ветеранов
14 мин.
35.4 м²
Общая площадь
10.1 м²
Жилая площадь
14.8 м²
Площадь кухни
1 из 12
Этаж
Описание
В проекте «Ветер Перемен 2» предложено множество планировочных решений классического типа. Сдаются они без отделки и высотой потолков 2,6 метра.
В ЖК «Ветер Перемен 2» на закрытой территории, реализованной по концепции «двор без машин», оборудованы современные детские и спортивные площадки, спроектированы пешеходный бульвар и площадка для выгула собак. Для владельцев автомобилей предусмотрены подземный паркинг и открытые стоянки.
Проект «Ветер Перемен 2» расположен в Ломоносовском районе. В пешей доступности находятся магазины, школа, детские сады, салон красоты. До метро «Проспект Ветеранов» 15 минут транспортом.
О квартире
Общая площадь
35.4 м²
Жилая площадь
10.1 м²
Площадь кухни
14.8 м²
Площадь комнат
10.1 м²
Высота потолков
3.6 м
Подъезд
6
Этаж
1
Окна выходят
На улицу
О доме
Год постройки
2024
Этажность
12
Материал постройки
Панельный
Материал перекрытий
Монолитные
Отопление
Центральное
Пассажирских лифтов
1
Грузовых лифтов
1
Парковка
Наземная
Расположение
Россия, Ленинградская область, Ломоносовский район, Аннинское городское поселение, городской посёлок Новоселье, Петропавловская улица, 13
Проспект Ветеранов
14 мин.
Ленинский проспект
16 мин.
Автово
17 мин.
Кировский завод
19 мин.
Московская
20 мин.
Парк Победы
22 мин.
Звёздная
22 мин.
Нарвская
22 мин.
Ипотечный калькулятор
Заполните 1 анкету — получите предложения от десятков банков на специальных условиях
Программа ипотеки
Стоимость жилья, ₽
Первый взнос, ₽
Срок кредита
от 5.75%
Ставка
от 28 310 ₽
Платеж в месяц
Расчёт носит информационный характер и не является публичной офертой
Похожие объекты








1-комн. квартира, 36,5 м², 1/12 эт.
Проспект Ветеранов
14 мин.








1-комн. квартира, 36,5 м², 1/12 эт.
Проспект Ветеранов
14 мин.








1-комн. квартира, 35,4 м², 1/12 эт.
Проспект Ветеранов
14 мин.
Консультант по новостройкам
4 500 000 ₽
127 119 ₽/м²









