Продается 1-комн. квартира, 32.86 м²
Россия, Ленинградская область, Ломоносовский район, Аннинское городское поселение, городской посёлок Новоселье, Центральная улица, 30к1
Проспект Ветеранов
18 мин.
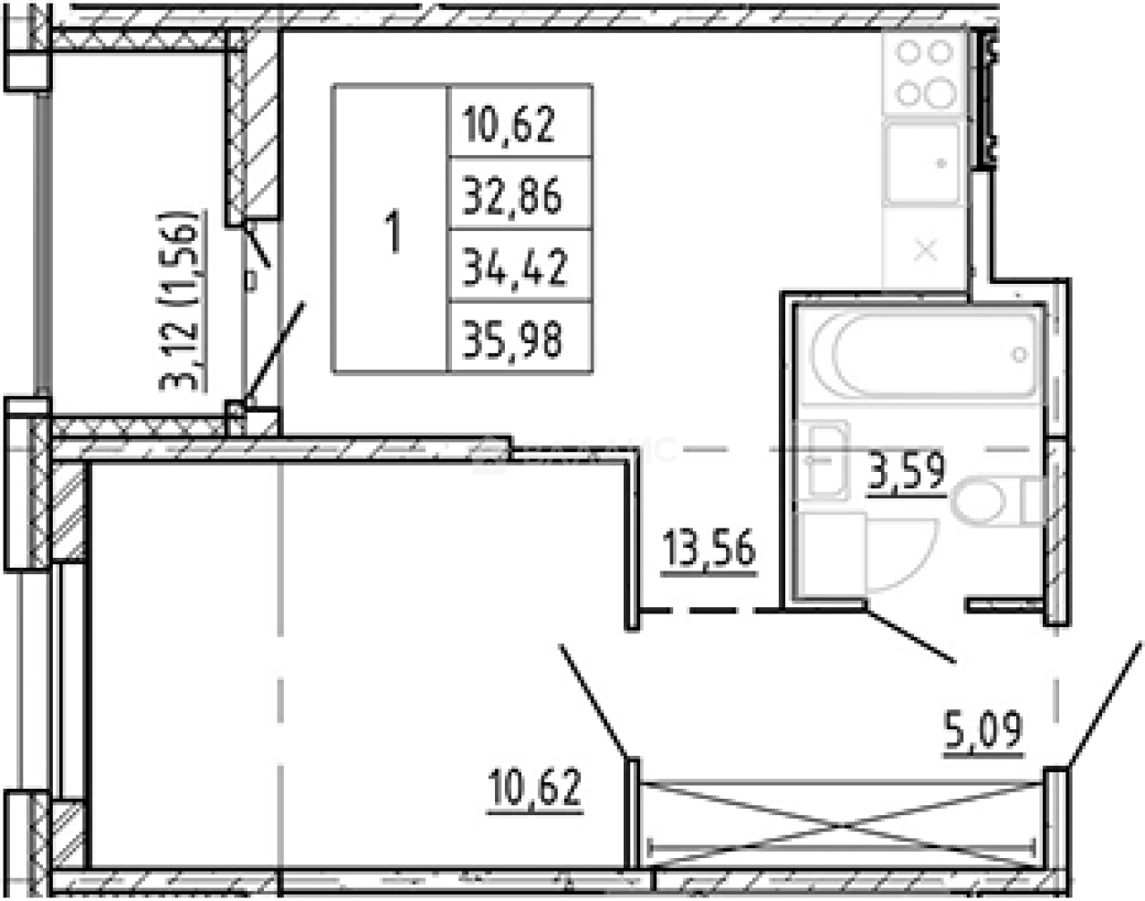
32.86 м²
Общая площадь
10.62 м²
Жилая площадь
13.56 м²
Площадь кухни
10 из 12
Этаж
Описание
В ЖК «Полис Новоселье» предложено множество планировочных решений: в наличии квартиры, как классического типа, так и европланировки. Сдаются они с высотой потолков 2,73 метра, чистовой и подчистовой отделкой.
В каждом корпусе «Полис Новоселье» на первых этажах предусмотрены коммерческие помещения для магазинов и сервисов. Во внутренних дворах запроектированы детские площадки с игровым оборудованием для разных возрастов и места для занятий спортом на свежем воздухе. Между корпусами предусмотрена просторная пешеходная зона с большой детской площадкой, столы для игры в теннис, места для отдыха с перголами и шезлонгами. Также в проекте предусмотрена беговая дорожка. В озеленении используются живые изгороди из различных кустарников, деревья высотой 4-5 метров аллейной посадки, многолетние травянистые и цветущие растения. Дворы, свободные от машин, огорожены и защищены системой контроля доступа и видеонаблюдением.
ЖК «Полис Новоселье» располагается в зеленом экологичном районе, недалеко от Шунгеровского лесопарка. Хорошая транспортная доступность обеспечена за счет близости выезда на КАД и ЗСД. Поблизости исторические окрестности: Стрельна, Петергоф, Ломоносов, Финский залив. Удобно добираться до аэропорта Пулково. Дорога до центра города займет около 45 минут. Рядом с комплексом расположена развитая сеть социальной и коммерческой инфраструктуры: детские сады, школы, аптеки и поликлиника, магазины, ледовая арена ICE RINK, фитнес центры и салоны красоты.
О квартире
Общая площадь
32.86 м²
Жилая площадь
10.62 м²
Площадь кухни
13.56 м²
Площадь комнат
10.62 м²
Высота потолков
2.73 м
Этаж
10
Окна выходят
На улицу
О доме
Год постройки
2025
Этажность
12
Материал постройки
Монолитный
Материал перекрытий
Монолитные
Отопление
Центральное
Пассажирских лифтов
1
Грузовых лифтов
1
Парковка
Многоуровневая
Расположение
Россия, Ленинградская область, Ломоносовский район, Аннинское городское поселение, городской посёлок Новоселье, Центральная улица, 30к1
Проспект Ветеранов
18 мин.
Ленинский проспект
20 мин.
Автово
21 мин.
Кировский завод
22 мин.
Нарвская
25 мин.
Горный институт
28 мин.
Приморская
28 мин.
Василеостровская
30 мин.
Ипотечный калькулятор
Заполните 1 анкету — получите предложения от десятков банков на специальных условиях
Программа ипотеки
Стоимость жилья, ₽
Первый взнос, ₽
Срок кредита
от 5.75%
Ставка
от 36 670 ₽
Платеж в месяц
Расчёт носит информационный характер и не является публичной офертой
Похожие объекты









2-комн. квартира, 36,9 м², 11/12 эт.
Проспект Ветеранов
18 мин.










2-комн. квартира, 35,4 м², 4/12 эт.
Проспект Ветеранов
18 мин.










2-комн. квартира, 35,1 м², 2/12 эт.
Проспект Ветеранов
18 мин.









2-комн. квартира, 32,3 м², 8/12 эт.
Проспект Ветеранов
18 мин.
Консультант по новостройкам
5 828 888 ₽
177 386 ₽/м²








