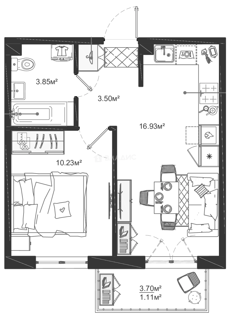
Продается 2-комн. квартира, 34.51 м²
Россия, Ленинградская область, Ломоносовский район, Аннинское городское поселение, городской посёлок Новоселье, Большая Балтийская улица, 10к1
Проспект Ветеранов
18 мин.
34.51 м²
Общая площадь
10.23 м²
Жилая площадь
16.93 м²
Площадь кухни
7 из 12
Этаж
Описание
В жилом комплексе «ЛесART» предложено множество планировочных решений: в наличии квартиры, как классического типа, так и европланировки. Сдаются они с чистовой отделкой и установленной системой «Умный дом».
В проекте «ЛесART» предусматривается благоустройство территории: проезды с асфальтобетонным покрытием и пешеходные тротуары, детские и спортивные площадки, места для отдыха, дорожки с набивным покрытием. На придомовой территории выполнено эффективное озеленение территории: посадка различных пород деревьев и кустарников, формирование различных «мини-ландшафтных» территорий, используя декоративные качества зеленых насаждений.
О квартире
Общая площадь
34.51 м²
Жилая площадь
10.23 м²
Площадь кухни
16.93 м²
Площадь комнат
10.23 м²
Высота потолков
2.67 м
Подъезд
12
Этаж
7
Окна выходят
На улицу
О доме
Год постройки
2023
Этажность
12
Материал постройки
Панельный
Материал перекрытий
Монолитные
Отопление
Центральное
Пассажирских лифтов
1
Грузовых лифтов
1
Парковка
Наземная
Расположение
Россия, Ленинградская область, Ломоносовский район, Аннинское городское поселение, городской посёлок Новоселье, Большая Балтийская улица, 10к1
Проспект Ветеранов
18 мин.
Ленинский проспект
20 мин.
Автово
20 мин.
Кировский завод
22 мин.
Нарвская
25 мин.
Балтийская
27 мин.
Горный институт
28 мин.
Приморская
29 мин.
Ипотечный калькулятор
Заполните 1 анкету — получите предложения от десятков банков на специальных условиях
Программа ипотеки
Стоимость жилья, ₽
Первый взнос, ₽
Срок кредита
от 5.75%
Ставка
от 56 461 ₽
Платеж в месяц
Расчёт носит информационный характер и не является публичной офертой
Похожие объекты




2-комн. квартира, 37,2 м², 8/12 эт.
Проспект Ветеранов
18 мин.




1-комн. квартира, 37,3 м², 2/12 эт.
Проспект Ветеранов
18 мин.




1-комн. квартира, 37,3 м², 8/12 эт.
Проспект Ветеранов
18 мин.




2-комн. квартира, 34,5 м², 7/12 эт.
Проспект Ветеранов
18 мин.
Консультант по новостройкам
8 974 637 ₽
260 060 ₽/м²





