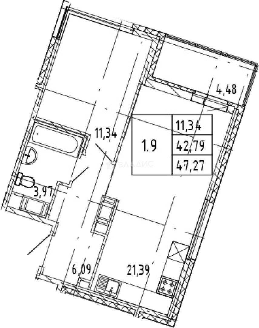
Продается 2-комн. квартира, 42.79 м²
Россия, Ленинградская область, Всеволожский район, Бугры, Тихая улица, 5к2
Девяткино
5 мин.
42.79 м²
Общая площадь
11.34 м²
Жилая площадь
21.39 м²
Площадь кухни
16 из 10
Этаж
Описание
Эргономичные планировки квартир представлены как классическими, так и европланировками. Они передаются дольщикам с чистовой или подчистовой отделкой и без отделки. Квартиры спроектированы по концепции БК-Стандарт или Базовый комфорт: такой формат включает в себя полное техническое оснащение, коллекторную разводку отопления, установку импортных лифтов и немецкой стяжки, а также индивидуальный стиль и дизайн мест общего пользования.
Объект включает в себя 3 детских сада и школу на 1375 мест и коммерческие помещения на первых этажах. Придомовая территория благоустроена пешеходными тротуарами, зелеными зонами и местами для отдыха. Расположение корпусов образует закрытые дворы, где установлены детские и спортивные площадки и уличные тренажеры. На территории ЖК работает служба консьержей и охраны.
ЖК Новые горизонты расположен во Всеволожском районе. В пешей доступности работают продуктовые магазины, отделения почты и банков. В 15 минутах курорт Охта-парк. В радиусе пяти километров расположены метро Парнас, Проспект Просвещения, Гражданский проспект и Девяткино. Выезд на КАД в пяти минутах транспортом.
О квартире
Общая площадь
42.79 м²
Жилая площадь
11.34 м²
Площадь кухни
21.39 м²
Площадь комнат
11.34 м²
Высота потолков
2.6 м
Этаж
16
Окна выходят
На улицу
О доме
Год постройки
2025
Этажность
10
Материал постройки
Кирпичный
Материал перекрытий
Ж/б плиты
Отопление
Центральное
Парковка
Многоуровневая
Расположение
Россия, Ленинградская область, Всеволожский район, Бугры, Тихая улица, 5к2
Девяткино
5 мин.
Парнас
7 мин.
Гражданский проспект
7 мин.
Проспект Просвещения
8 мин.
Озерки
10 мин.
Академическая
11 мин.
Политехническая
12 мин.
Удельная
13 мин.
Ипотечный калькулятор
Заполните 1 анкету — получите предложения от десятков банков на специальных условиях
Программа ипотеки
Стоимость жилья, ₽
Первый взнос, ₽
Срок кредита
от 5.75%
Ставка
от 47 924 ₽
Платеж в месяц
Расчёт носит информационный характер и не является публичной офертой
Похожие объекты





1-комн. квартира, 36,9 м², 12/18 эт.
Девяткино
30 мин.


2-комн. квартира, 41,7 м², 7/18 эт.
Девяткино
30 мин.


2-комн. квартира, 41,7 м², 6/18 эт.
Девяткино
30 мин.



2-комн. квартира, 40,8 м², 8/18 эт.
Девяткино
30 мин.
Консультант по новостройкам
7 617 737 ₽
178 027 ₽/м²










