Продается 2-комн. квартира, 36.26 м²
Россия, Ленинградская область, Ломоносовский район, Аннинское городское поселение, посёлок Аннино, ЖК Аннино Сити
Проспект Ветеранов
22 мин.
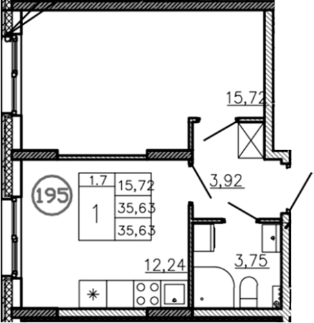
36.26 м²
Общая площадь
12.51 м²
Жилая площадь
13.33 м²
Площадь кухни
2 из 4
Этаж
Описание
В комплексе представлены современные, продуманные планировки студий, а также одно- и двухкомнатных квартир для удобной жизни. Первые этажи предназначены под магазины, офисы, салоны красоты, кафе, пекарни, аптеки и детские досуговые центры.
Место для строительства ЖК «Аннино Сити» было выбрано не случайно. Посёлок Аннино отличается развитой инфраструктурой, близостью к городу, хорошей транспортной доступностью и наличием различного общественного транспорта.
В посёлке Аннино есть школа, детский сад, супермаркеты, кафе, Дом культуры, почта и отделение Сбербанка. Для занятий спортом — теннисный корт и площадка для скейтеров, современный новый бассейн и спортивный центр. Также доступны фитнес-студии, салоны красоты, кофейни и пекарни, множество детских площадок, супермаркеты. Недалеко от Аннино находятся исторические достопримечательности — Петергоф, Стрельна, Ораниенбаум.
О квартире
Общая площадь
36.26 м²
Жилая площадь
12.51 м²
Площадь кухни
13.33 м²
Площадь комнат
12.51 м²
Высота потолков
2.7800000000000002 м
Этаж
2
Окна выходят
На улицу
О доме
Год постройки
2025
Этажность
4
Материал постройки
Монолитный
Отопление
Центральное
Парковка
Наземная
Расположение
Россия, Ленинградская область, Ломоносовский район, Аннинское городское поселение, посёлок Аннино, ЖК Аннино Сити
Проспект Ветеранов
22 мин.
Ленинский проспект
24 мин.
Автово
25 мин.
Кировский завод
27 мин.
Нарвская
30 мин.
Ипотечный калькулятор
Заполните 1 анкету — получите предложения от десятков банков на специальных условиях
Программа ипотеки
Стоимость жилья, ₽
Первый взнос, ₽
Срок кредита
от 5.75%
Ставка
от 27 060 ₽
Платеж в месяц
Расчёт носит информационный характер и не является публичной офертой
Похожие объекты





1-комн. квартира, 36,8 м², 1/4 эт.
Проспект Ветеранов
22 мин.





2-комн. квартира, 41,5 м², 1/4 эт.
Проспект Ветеранов
22 мин.





1-комн. квартира, 34,6 м², 1/4 эт.
Проспект Ветеранов
22 мин.



2-комн. квартира, 34,2 м², 1/4 эт.
Проспект Ветеранов
22 мин.
Консультант по новостройкам
4 301 200 ₽
118 622 ₽/м²




