Продается 3-комн. квартира, 56.39 м²
Россия, Ленинградская область, Всеволожский район, Романовское сельское поселение, посёлок Романовка, ЖК Всевгород
Девяткино
21 мин.
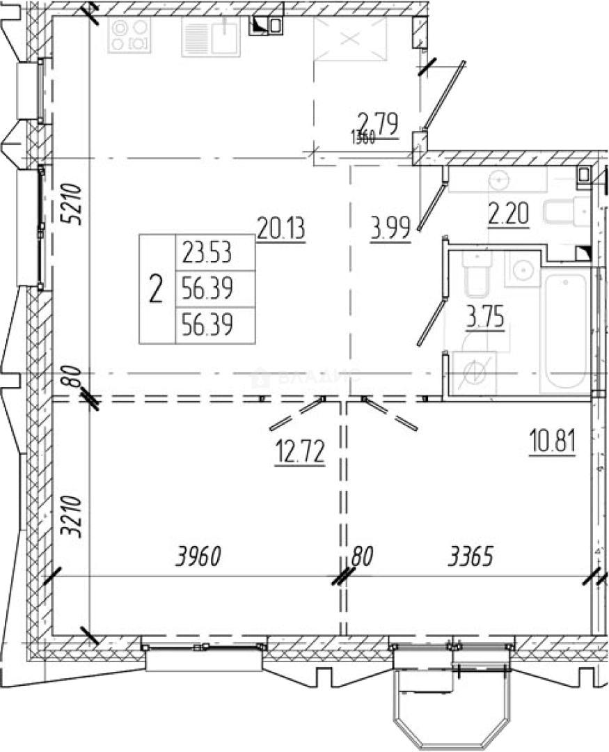
56.39 м²
Общая площадь
23.53 м²
Жилая площадь
20.13 м²
Площадь кухни
2 из 4
Этаж
Описание
В проекте представлены студии и квартиры с 1–3 комнатами, в том числе европланировки. В помещениях выполнена подчистовая отделка, а высота потолков составляет 2,85 м. В квартирах установлены увеличенные окна, на нижних этажах предусмотрены просторные террасы, где можно отдохнуть на свежем воздухе.
Территория комплекса благоустроена и озеленена, оборудованы детские площадки с горками, качелями, песочницами, а также воркаут-зоны. Для спокойного отдыха есть скамейки и беседки. Двор свободен от машин — парковка организована по периметру. На территории предусмотрены детские сады, школа и магазины. Установлено круглосуточное видеонаблюдение. В зданиях оборудованы помещения для хранения колясок и спортивного инвентаря.
Проект расположен во Всеволожском районе Ленинградской области, в 30 минутах транспортом от станции метро Ладожская. До центра Санкт-Петербурга можно добраться за 1 час 15 минут транспортом, а до КАД и ближайшего пляжа — за 25 минут. В пределах 10–15 минут транспортом находятся школы, детские сады, поликлиника и парк. Остановка общественного транспорта Новоладожская улица расположена в 5 минутах пешком.
О квартире
Общая площадь
56.39 м²
Жилая площадь
23.53 м²
Площадь кухни
20.13 м²
Площадь комнат
10.81+12.72 м²
Высота потолков
2.85 м
Этаж
2
Окна выходят
На улицу
О доме
Год постройки
2027
Этажность
4
Материал постройки
Кирпично-монолитный
Парковка
Наземная
Расположение
Россия, Ленинградская область, Всеволожский район, Романовское сельское поселение, посёлок Романовка, ЖК Всевгород
Девяткино
21 мин.
Проспект Большевиков
27 мин.
Ладожская
28 мин.
Улица Дыбенко
28 мин.
Ипотечный калькулятор
Заполните 1 анкету — получите предложения от десятков банков на специальных условиях
Программа ипотеки
Стоимость жилья, ₽
Первый взнос, ₽
Срок кредита
от 5.75%
Ставка
от 56 176 ₽
Платеж в месяц
Расчёт носит информационный характер и не является публичной офертой
Похожие объекты






2-комн. квартира, 56,7 м², 2/4 эт.
Девяткино
21 мин.






3-комн. квартира, 56,2 м², 4/4 эт.
Девяткино
21 мин.






2-комн. квартира, 57,5 м², 4/4 эт.
Девяткино
21 мин.






2-комн. квартира, 57,8 м², 3/4 эт.
Девяткино
21 мин.
Консультант по новостройкам
8 929 357 ₽
158 351 ₽/м²







