Продается 1-комн. квартира, 31.35 м²
Россия, Ленинградская область, Всеволожский район, деревня Новое Девяткино, Лесная улица, 19
Девяткино
23 мин.
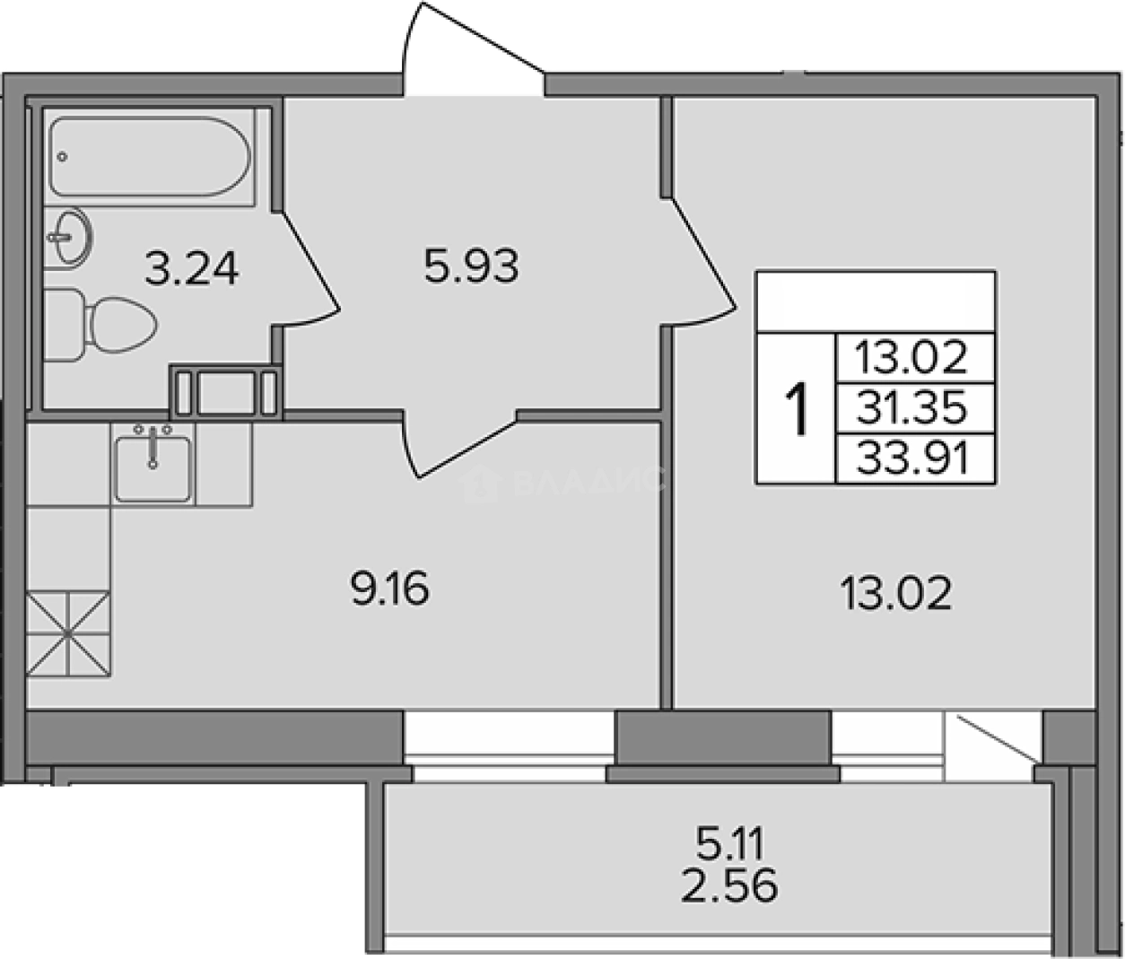
31.35 м²
Общая площадь
13.02 м²
Жилая площадь
9.16 м²
Площадь кухни
8 из 9
Этаж
Описание
В жилом комплексе предложено множество планировочных решений классического типа. Сдаются они с подчистовой отделкой и высотой потолков 2,6 метра.
На придомовой территории ЖК организованы детская и спортивная площадки, обустроены зоны отдыха. Для владельцев автомобилей предусмотрена стоянка.
Жилой комплекс находится во Всеволожском районе. В радиусе до 1,5 км от комплекса работают школа, детские сады, центр дошкольного образования «Эрудит», поликлиника, ТК «Дeвяткинo», ТК «Главный», продуктовые магазины, студия растяжки и фитнеса, центр фитнеса и спорта. В 20 минутах езды расположены горнолыжные курорты «Охта парк» и «Кавголово». КАД проходит в 3 км. В 2 минутах пешком расположен Капральев парк.
О квартире
Общая площадь
31.35 м²
Жилая площадь
13.02 м²
Площадь кухни
9.16 м²
Площадь комнат
13.02 м²
Высота потолков
2.6 м
Этаж
8
Окна выходят
На улицу
О доме
Год постройки
2025
Этажность
9
Материал постройки
Кирпично-монолитный
Материал перекрытий
Монолитные
Отопление
Центральное
Расположение
Россия, Ленинградская область, Всеволожский район, деревня Новое Девяткино, Лесная улица, 19
Девяткино
23 мин.
Гражданский проспект
6 мин.
Академическая
10 мин.
Политехническая
12 мин.
Проспект Просвещения
12 мин.
Парнас
12 мин.
Площадь Мужества
13 мин.
Озерки
13 мин.
Ипотечный калькулятор
Заполните 1 анкету — получите предложения от десятков банков на специальных условиях
Программа ипотеки
Стоимость жилья, ₽
Первый взнос, ₽
Срок кредита
от 5.75%
Ставка
от 35 413 ₽
Платеж в месяц
Расчёт носит информационный характер и не является публичной офертой
Похожие объекты






1-комн. квартира, 27,9 м², 6/25 эт.
Девяткино
18 мин.






1-комн. квартира, 27,9 м², 6/25 эт.
Девяткино
18 мин.





Студия, 28,8 м², 8/18 эт.
Девяткино
30 мин.





Студия, 27,4 м², 8/18 эт.
Девяткино
30 мин.
Консультант по новостройкам
5 629 060 ₽
179 556 ₽/м²











