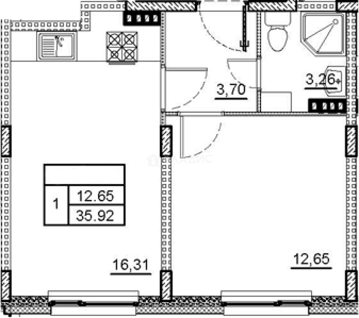
Продается 2-комн. квартира, 35.92 м²
Россия, Ленинградская область, Гатчинский муниципальный округ, деревня Малое Верево, улица Кутышева, 9к2
35.92 м²
Общая площадь
12.65 м²
Жилая площадь
16.31 м²
Площадь кухни
4 из 4
Этаж
Описание
О квартире
Общая площадь
35.92 м²
Жилая площадь
12.65 м²
Площадь кухни
16.31 м²
Площадь комнат
12.65 м²
Высота потолков
2.76 м
Подъезд
9
Этаж
4
Окна выходят
На улицу
О доме
Год постройки
2022
Этажность
4
Материал постройки
Кирпично-монолитный
Материал перекрытий
Монолитные
Отопление
Центральное
Парковка
Наземная
Расположение
Россия, Ленинградская область, Гатчинский муниципальный округ, деревня Малое Верево, улица Кутышева, 9к2
Ипотечный калькулятор
Заполните 1 анкету — получите предложения от десятков банков на специальных условиях
Программа ипотеки
Стоимость жилья, ₽
Первый взнос, ₽
Срок кредита
от 5.75%
Ставка
от 32 113 ₽
Платеж в месяц
Расчёт носит информационный характер и не является публичной офертой
Похожие объекты





1-комн. квартира, 37,2 м², 1/4 эт.





1-комн. квартира, 37,2 м², 1/4 эт.





1-комн. квартира, 37,2 м², 1/4 эт.





2-комн. квартира, 35,6 м², 1/4 эт.
Консультант по новостройкам
5 104 540 ₽
142 109 ₽/м²










