Продается 1-комн. квартира, 40.4 м²
Россия, Ленинградская область, Гатчинский муниципальный округ, деревня Малое Верево, улица Кутышева, 9к1
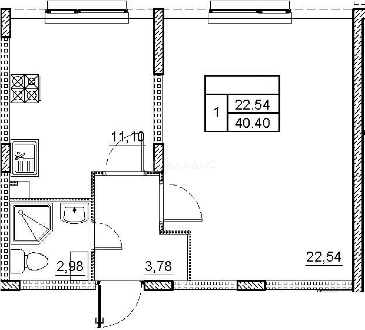
40.4 м²
Общая площадь
22.54 м²
Жилая площадь
11.1 м²
Площадь кухни
1 из 4
Этаж
Описание
В комплексе предложено множество планировочных решений: в наличии квартиры, как классического типа, так и европланировки. В части помещениях предусмотрены кладовые, гардеробные и лоджии.
Территория комплекса благоустроена — спроектированы детские и спортивные площадки, площадки для отдыха и места для выгула животных. Внутренние дворы закрыты от случайных прохожих. На первых этажах предусмотрены коммерческие помещения. В пешей доступности спроектированы торговый комплекс и фитнес-центр.
ЖК «ВЕРЕВО-СИТИ» расположен в 22 км от Санкт-Петербурга и в 3 км от Гатчины рядом с деревней Малое Верево. Метро «Московская», «Проспект Ветеранов» и «Купчино» расположены в 25 минутах транспортом.
О квартире
Общая площадь
40.4 м²
Жилая площадь
22.54 м²
Площадь кухни
11.1 м²
Площадь комнат
22.54 м²
Высота потолков
3.36 м
Подъезд
3
Этаж
1
Окна выходят
На улицу
О доме
Год постройки
2022
Этажность
4
Материал постройки
Кирпично-монолитный
Материал перекрытий
Монолитные
Отопление
Центральное
Парковка
Наземная
Расположение
Россия, Ленинградская область, Гатчинский муниципальный округ, деревня Малое Верево, улица Кутышева, 9к1
Ипотечный калькулятор
Заполните 1 анкету — получите предложения от десятков банков на специальных условиях
Программа ипотеки
Стоимость жилья, ₽
Первый взнос, ₽
Срок кредита
от 5.75%
Ставка
от 26 181 ₽
Платеж в месяц
Расчёт носит информационный характер и не является публичной офертой
Похожие объекты
Консультант по новостройкам
4 161 600 ₽
103 010 ₽/м²















